Villa via Tramia, Garlasco
€ 285.000NUOVE VILLETTE INDIPENDENTI CON GIARDINO
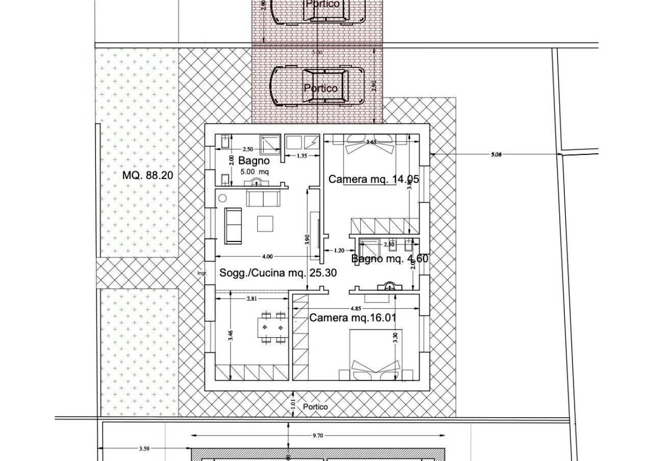
Nel cuore di Garlasco, in posizione comoda a tutti i servizi, proponiamo nuovo complesso residenziale di villette indipendenti sviluppate su un unico piano, progettate per garantire comfort abitativo, efficienza energetica e massima funzionalità degli spazi. Una delle unità è attualmente in fase di costruzione e rappresenta la soluzione ideale per chi desidera una casa moderna con spazi ben distribuiti e giardino privato. L’abitazione si sviluppa su una superficie di circa 88 mq ed è composta da: - Luminoso soggiorno; - Cucina; - 2 camere da letto; - 2 bagni; - Giardino privato: - Posto auto coperto. La soluzione, completamente indipendente e disposta su un unico livello, è perfetta per famiglie, coppie o per chi cerca la comodità di una casa senza scale, con spazi esterni privati. Il progetto prevede finiture moderne e possibilità di personalizzazione degli interni nelle fasi di costruzione. Per maggiori informazioni, planimetrie o per fissare un appuntamento in ufficio, contattaci. Vieni a personalizzare casa tua, segui il cantiere passo dopo passo. Vieni a conoscere il costruttore. Punti di forza dell'immobile: - unico piano - classe a4 - disegnata su misura per te L'asilo per bambini più vicino è SCUOLA DELL'INFANZIA UMBERTO I (490 m). Stai pensando di vendere o affittare casa? Con RockAgent puoi vendere o affittare il tuo immobile assicurandoti un servizio eccellente, garantito da agenti immobiliari selezionati supportati da un team tecnico, marketing e legale di altissimo livello. Visita il sito RockAgent.it e ottieni una valutazione gratuita del tuo immobile.
Dati principali
| Riferimento | 184560 - 10/04/2026 |
| Data annuncio | 25/03/2026 |
| Contratto | Vendita |
| Tipologia | Villa |
| Superficie | 88 m2 |
| Locali | 4 (2 camere da letto, 2 altro), 2 bagni, cucina abitabile |
| Piano | 1 totali |
| Tipo di costruzione | Media |
| Numero posti auto | 1 |
| Arredamento | Assente |
Caratteristiche
Costi
| Prezzo | 285.000 € |
| Prezzo al m2 | 3.239 €/m2 |
Efficienza energetica
| Anno costruzione | 2025 |
| Stato | Nuovo |
| Riscaldamento | Autonomo |
| Classe energetica | A+ |
| Indice di prestazione energetica (IPE) | 175 kWh/m2 anno |
Planimetrie
Indirizzo e mappa
via Tramia, Garlasco
Calcolo mutuo
Prezzo di vendita:
Anticipo
20,00
Mutuo
80,00
Tasso: -+
Rata: 815 al mese
I risultati sono una stima indicativa basata sui dati inseriti e non costituiscono un’offerta finanziaria.
Inserzionista

RockAgent
Via di Santa Costanza 21, Roma
Mostra Telefono
Chiama
CONTATTA

