Stabile - Palazzo via Principe di Napoli, 31, Carmiano
€ 295.000IMMOBILE CON DUE APPARTAMENTI, ALTRI VANI, SPAZI SCOPERTI
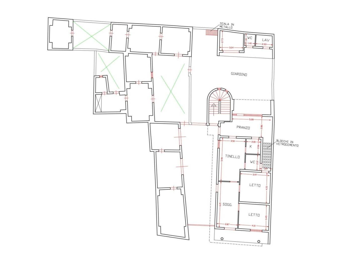
Situato in Via Principe di Napoli a Carmiano, questo complesso edilizio si trova in una posizione strategica che offre un contesto tranquillo e riservato, ideale per chi cerca una soluzione abitativa spaziosa e indipendente. La proprietà è libera su tre lati, garantendo così una buona esposizione alla luce naturale e una piacevole ventilazione. La zona è ben servita e facilmente accessibile, rendendo questo immobile una scelta interessante per chi desidera vivere in un ambiente sereno senza rinunciare alla comodità dei servizi cittadini. Il complesso edilizio è composto da un fabbricato di recente costruzione, di due piani fuori terra, con due appartamenti indipendenti, uno per piano. L'appartamento del piano terra comprende l'ingresso che conduce a una cucina abitabile, perfetta per chi ama cucinare e trascorrere momenti conviviali in famiglia, una zona giorno, arricchita dalla presenza di un camino, che aggiunge un tocco di calore e accoglienza, due camere da letto ed il bagno offrono ampi spazi per il riposo e la privacy. Lateralmente all'appartamento del piano terra vi è un ampio spazio scoperto di esclusiva pertinenza, dove è inserito un corpo di fabbrica comprendente un deposito, il wc e la lavanderia. L'appartamento del primo piano dispone di ingresso indipendente cui si accede a mezzo di scala anch'essa di pertinenza esclusiva, realizzata con marmi di elevata qualità. Per il resto l'appartamento del primo piano rispecchia le caratteristiche tipologiche di quello del p.t. con la differenza dei doppi servizi, per garantire maggior confort, uno dei quali dotato di vasca idromassaggio. Questo fabbricato, comprendente i due appartamenti, è in buono stato e presenta caratteristiche moderne come infissi esterni in doppio vetro e metallo, un impianto di allarme e un cancello elettrico per una maggiore sicurezza. Il riscaldamento è autonomo, alimentato a gas e distribuito tramite radiatori, mentre il climatizzatore autonomo assicura un ambiente fresco durante i mesi estivi. Del complesso fanno parte altre unità immobiliari contigue, comprendenti un totale di 8 vani di antica costruzione, con volte a stella e spazi scoperti, destinati ad abitazione e laboratori. La superficie commerciale dell'intero complesso è di circa 502 metri quadrati. Questa proprietà rappresenta un'opportunità unica per chi cerca una residenza plurifamiliare, offrendo contestualmente la possibilità di disporre di locali per svolgere attività commerciali, artigianali o professionali, tenuto conto degli ampi spazi disponibili e dell'ubicazione centrale che la rende ben collegata ai trasporti ed ai maggiori centri commerciali e servizi. Punti di forza dell'immobile: - Ubicazione centrale rispetto a servizi e collegamenti cittadini - Struttura adatta a destinazioni: residenziali, commerciali ed altro Gli asili per bambini nelle vicinanze dell'immobile sono GIOIOSA SOCIETA' COOPERATIVA SOCIALE (170 m), SANTA CATERINA e altri 3 asili entro il raggio di 430 m. Parlando di scuole, l'immobile è vicino all'istituto SCUOLA PRIMARIA A. LECCISO (340 m). Stai pensando di vendere o affittare casa? Con RockAgent puoi vendere o affittare il tuo immobile assicurandoti un servizio eccellente, garantito da agenti immobiliari selezionati supportati da un team tecnico, marketing e legale di altissimo livello. Visita il sito RockAgent.it e ottieni una valutazione gratuita del tuo immobile.
Dati principali
| Riferimento | 139420 - 10/04/2026 |
| Data annuncio | 05/03/2026 |
| Contratto | Vendita |
| Tipologia | Stabile - Palazzo |
| Superficie | 502 m2 |
| Locali | 4 bagni |
| Piano | 2 totali |
| Tipo di costruzione | Media |
Caratteristiche
Costi
| Prezzo | 295.000 € |
| Prezzo al m2 | 588 €/m2 |
Efficienza energetica
| Anno costruzione | 1970 |
| Stato | Buono |
| Riscaldamento | Autonomo |
| Classe energetica | Immobile esente da certificazione energetica |
Planimetrie
Indirizzo e mappa
via Principe di Napoli, 31, Carmiano
Calcolo mutuo
Prezzo di vendita:
Anticipo
20,00
Mutuo
80,00
Tasso: -+
Rata: 844 al mese
I risultati sono una stima indicativa basata sui dati inseriti e non costituiscono un’offerta finanziaria.
Inserzionista

RockAgent
Via di Santa Costanza 21, Roma
Mostra Telefono
Chiama
CONTATTA

