Trilocale Via Monsignor G. Grisetti, Trezzo sull'Adda
€ 193.000Trilocale in vendita
--- VISITABILE DAL 5 GIUGNO ---
TREZZO SULL’ADDA zona residenziale – In area abitativa tranquilla, a pochi minuti a piedi dal centro del paese e nelle vicinanze di scuole, servizi primari, fermate della linea Bus e comodi collegamenti stradali.
All’interno di un curato contesto condominiale dei primi anni 2000, con verde comune, l’Agenzia Immobiliare Tecnocasa propone in vendita luminoso trilocale con giardino di oltre 100 mq sviluppato su due lati. La porzione anteriore di giardino è delimitata da una siepe in photinia che garantisce un’ottima privacy, mentre il giardino sul retro è piantumato con alberi da frutto.
L’abitazione vanta di un’ottima distribuzione degli spazi interni e gode di doppia esposizione Est-Ovest, che garantisce luce naturale per tutta la giornata.
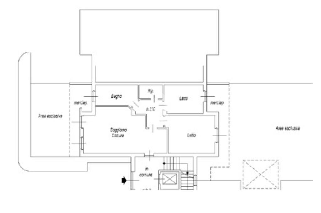
L’appartamento si apre su uno spazioso soggiorno con angolo cottura e con un affaccio diretto sul primo giardino. Il disimpegno conduce alla zona notte con bagno con vasca e doccia, ripostiglio adibito a lavanderia e due camere matrimoniali, entrambe con accesso diretto alla seconda porzione di giardino retrostante.
La soluzione presenta riscaldamento autonomo, serramenti in legno con doppi vetri, impianto di allarme e predisposizione per aria condizionata in ogni ambiente.
Completa la proprietà ampio box singolo di 23 mq, disponibile con richiesta a parte.
---------------------------------------------------------------
La presente descrizione e le immagini riportate hanno valore puramente indicativo e non costituiscono elemento contrattuale.
TREZZO SULL’ADDA zona residenziale – In area abitativa tranquilla, a pochi minuti a piedi dal centro del paese e nelle vicinanze di scuole, servizi primari, fermate della linea Bus e comodi collegamenti stradali.
All’interno di un curato contesto condominiale dei primi anni 2000, con verde comune, l’Agenzia Immobiliare Tecnocasa propone in vendita luminoso trilocale con giardino di oltre 100 mq sviluppato su due lati. La porzione anteriore di giardino è delimitata da una siepe in photinia che garantisce un’ottima privacy, mentre il giardino sul retro è piantumato con alberi da frutto.
L’abitazione vanta di un’ottima distribuzione degli spazi interni e gode di doppia esposizione Est-Ovest, che garantisce luce naturale per tutta la giornata.
L’appartamento si apre su uno spazioso soggiorno con angolo cottura e con un affaccio diretto sul primo giardino. Il disimpegno conduce alla zona notte con bagno con vasca e doccia, ripostiglio adibito a lavanderia e due camere matrimoniali, entrambe con accesso diretto alla seconda porzione di giardino retrostante.
La soluzione presenta riscaldamento autonomo, serramenti in legno con doppi vetri, impianto di allarme e predisposizione per aria condizionata in ogni ambiente.
Completa la proprietà ampio box singolo di 23 mq, disponibile con richiesta a parte.
---------------------------------------------------------------
La presente descrizione e le immagini riportate hanno valore puramente indicativo e non costituiscono elemento contrattuale.
Dati principali
| Riferimento | 61204202 |
| Data annuncio | 11/04/2026 |
| Contratto | Vendita |
| Tipologia | Appartamento |
| Superficie | 113 m2 |
| Locali | 3 (3 altro), 1 bagno |
| Piano | 3 totali |
Costi
| Prezzo | 193.000 € |
| Prezzo al m2 | 1.708 €/m2 |
| Spese condominiali | € 108,00/mese |
Efficienza energetica
| Anno costruzione | 2003 |
| Riscaldamento | Autonomo |
| Tipo Alimentazione Riscaldamento | Metano |
| Classe energetica | E |
| Indice di prestazione energetica (EP GL, NREN) | 175 kWh/m3 anno |
Planimetrie
Video
Indirizzo e mappa
Via Monsignor G. Grisetti, Trezzo sull'Adda
Calcolo mutuo
Prezzo di vendita:
Anticipo
20,00
Mutuo
80,00
Tasso: -+
Rata: 552 al mese
I risultati sono una stima indicativa basata sui dati inseriti e non costituiscono un’offerta finanziaria.
Inserzionista
Chiama
CONTATTA

