Villa Via Manfredonia, Ravenna (zona Fosso Ghiaia)
€ 215.000Villa singola in vendita
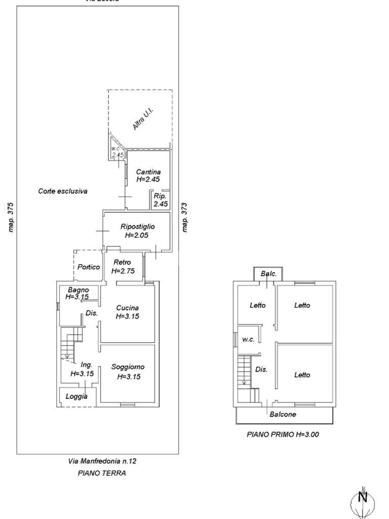
FOSSO GHIAIA: Villa indipendente situata in zona tranquilla, disposta su due livelli.
Al piano terra troviamo un disimpegno che da accesso al soggiorno, ad oggi adibita a terza camera da letto, cucinotto con con sala da pranzo e bagno ristrutturato con box doccia. Al primo piano abbiamo la zona notte con due camere matrimoniali, uno studio o guardaroba e un secondo bagno da rimodernare. Presenti due balconi come sfogo esterno delle camere.
Sono presenti poi comodi servizi nel retro della casa, tra cui una tavernetta con camino collegata al cucinotto,un garage e un'ulteriore ripostiglio.
Ampia corte che circonda la casa su quattro lati con possibilità d'accesso anche da via lucera.
Impianto della luce certificato.
CHIAMA E FISSA APPUNTAMENTO AL : 05441800813
Al piano terra troviamo un disimpegno che da accesso al soggiorno, ad oggi adibita a terza camera da letto, cucinotto con con sala da pranzo e bagno ristrutturato con box doccia. Al primo piano abbiamo la zona notte con due camere matrimoniali, uno studio o guardaroba e un secondo bagno da rimodernare. Presenti due balconi come sfogo esterno delle camere.
Sono presenti poi comodi servizi nel retro della casa, tra cui una tavernetta con camino collegata al cucinotto,un garage e un'ulteriore ripostiglio.
Ampia corte che circonda la casa su quattro lati con possibilità d'accesso anche da via lucera.
Impianto della luce certificato.
CHIAMA E FISSA APPUNTAMENTO AL : 05441800813
Dati principali
| Riferimento | 61204149 |
| Data annuncio | 11/04/2026 |
| Contratto | Vendita |
| Tipologia | Villa |
| Superficie | 168 m2 |
| Locali | più di 5 (6 altro), 2 bagni |
| Piano | 2 di 2 totali |
| Numero posti auto | 1 |
Costi
| Prezzo | 215.000 € |
| Prezzo al m2 | 1.280 €/m2 |
Efficienza energetica
| Anno costruzione | 1980 |
| Riscaldamento | Autonomo |
| Tipo Alimentazione Riscaldamento | Metano |
| Classe energetica | Immobile esente da certificazione energetica |
Planimetrie
Indirizzo e mappa
Via Manfredonia, Ravenna - quartiere Fosso Ghiaia
Calcolo mutuo
Prezzo di vendita:
Anticipo
20,00
Mutuo
80,00
Tasso: -+
Rata: 615 al mese
I risultati sono una stima indicativa basata sui dati inseriti e non costituiscono un’offerta finanziaria.
Inserzionista
Chiama
CONTATTA

