Trilocale Via Asiago, Torino (zona Pozzo Strada)
€ 179.000Trilocale in vendita
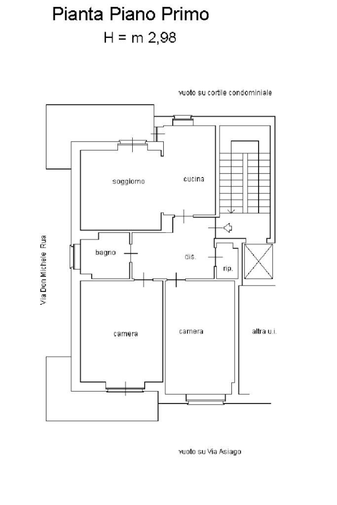
Nel cuore della località Aeronautica a Torino, comodo ai molteplici servizi della zona, proponiamo appartamento completamente ristrutturato nel 2017 offrendo un ambiente moderno e funzionale. L'immobile è situato al primo piano di uno stabile ristrutturato nelle parti comuni e dotato di ascensore. E' composto di ingresso che separa la zona giorno dalla zona notte, soggiorno molto luminoso con cucina a vista ideale per chi ama vivere momenti conviviali. Le due camere da letto sono spaziose e ben distribuite, il bagno con finiture contemporanee è dotato di doccia. La pavimentazione è in grès porcellanato e conferisce eleganza e praticità. Gli infissi esterni sono in pvc con doppi vetri, e la porta di ingresso è blindata. Ogni ambiente è dotato di aria condizionata, per un comfort ottimale in ogni stagione. Dotata di un comodo ripostiglio, utile per organizzare al meglio gli spazi. Dotato di due ampi balconi, l'alloggio è disposto su tre arie. Completa la proprietà la cantina di pertinenza.
Dati principali
| Riferimento | 61199915 |
| Data annuncio | 11/04/2026 |
| Contratto | Vendita |
| Tipologia | Appartamento |
| Superficie | 85 m2 |
| Locali | 3 (3 altro), 1 bagno |
| Piano | 1 di 5 totali |
Costi
| Prezzo | 179.000 € |
| Prezzo al m2 | 2.106 €/m2 |
Efficienza energetica
| Anno costruzione | 1960 |
| Riscaldamento | Centralizzato |
| Tipo Alimentazione Riscaldamento | Metano |
| Classe energetica | C |
| Indice di prestazione energetica (EP GL, REN) | 114.67 kWh/m3 anno |
| Indice di prestazione energetica (EP GL, NREN) | 114.67 kWh/m3 anno |
Planimetrie
Indirizzo e mappa
Via Asiago, Torino - quartiere Pozzo Strada
Calcolo mutuo
Prezzo di vendita:
Anticipo
20,00
Mutuo
80,00
Tasso: -+
Rata: 512 al mese
I risultati sono una stima indicativa basata sui dati inseriti e non costituiscono un’offerta finanziaria.
Inserzionista
Chiama
CONTATTA

