Ufficio Viale della Repubblica, Villorba
€ 700 al mese
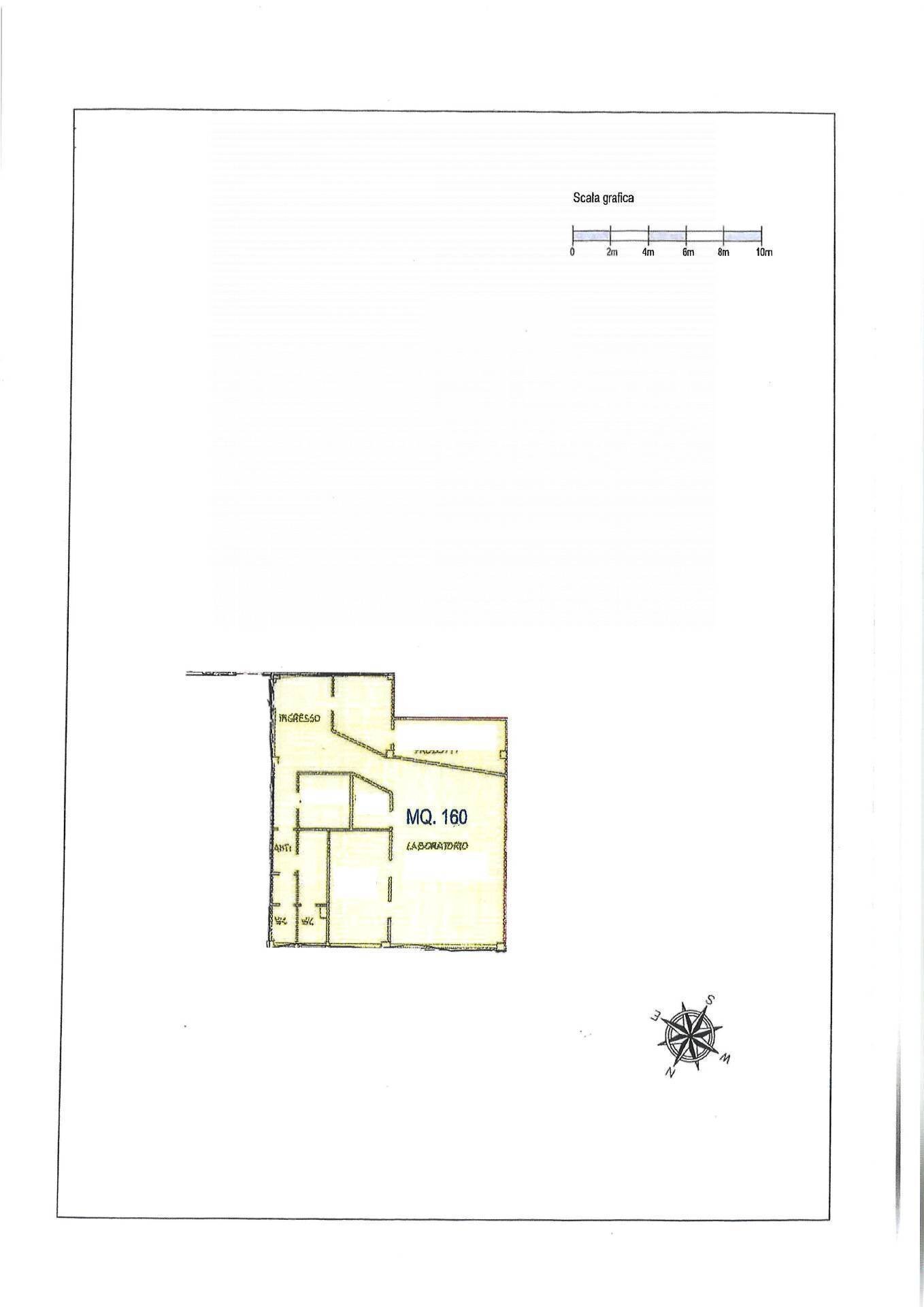
Ufficio di ampia metratura a Villorba, in prossimità di Viale della Repubblica. Proponiamo in locazione ufficio di 160 mq. al primo ed ultimo piano, in un palazzo direzionale, ubicato in posizione strategica, facilmente raggiungibile grazie alla vicinanza di Viale della Repubblica e allo svincolo per l'autostrada Treviso nord. La disposizione degli spazi è funzionale tale da ottimizzare al massimo l'utilizzo degli ambienti a disposizione. L'ufficio è dotato di buone finiture e di impianti moderni come l'aria condizionata ed il riscaldamento autonomo che garantiscono un ambiente confortevole e adatto ad ogni esigenza lavorativa. Sono presenti 2 bagni di cui uno finestrato, con antibagno. L' immobile dispone di un ampio parcheggio. Non ci sono spese condominiali e la disponibilità è immediata. Classe energetica "E" Il canone di locazione mensile è pari ad 700,00 oltre IVA. Per maggiori informazioni e/o per fissare un appuntamento per visionare l'immobile in locazione, potete contattare impREsa, sede del Quartiere latino, telefonando allo 0422 1784050 citando il riferimento I/PD758.
Dati principali
| Riferimento | I/PD758 |
| Data annuncio | 11/04/2026 |
| Contratto | Affitto |
| Tipologia | Ufficio |
| Superficie | 160 m2 |
| Locali | 2 bagni, cucina non presente |
| Piano | Ultimo piano, 1 totali |
| Occupato | Libero |
| Box auto | Assente |
| Arredamento | Assente |
Costi
| Prezzo | 700 € al mese |
Efficienza energetica
| Stato | Buono |
| Riscaldamento | Autonomo |
| Tipo Impianto Di Riscaldamento | ad aria |
| Tipo Alimentazione Riscaldamento | Elettrico |
| Classe energetica | E |
| Indice di prestazione energetica (IPE) | 228 kWh/m2 anno |
Planimetrie
Indirizzo e mappa
Viale della Repubblica, Villorba
Annuncio senza mappa,
prova a chiedere la posizione all'inserzionista
prova a chiedere la posizione all'inserzionista
Inserzionista

impREsa Treviso Quartiere Latino
Piazza del Quartiere Latino, 14, Treviso
Mostra Telefono
De Pellegrin Patrizia
Mostra Telefono
Chiama
CONTATTA

