Casa indipendente Via Roma 99, Alezio
€ 58.000
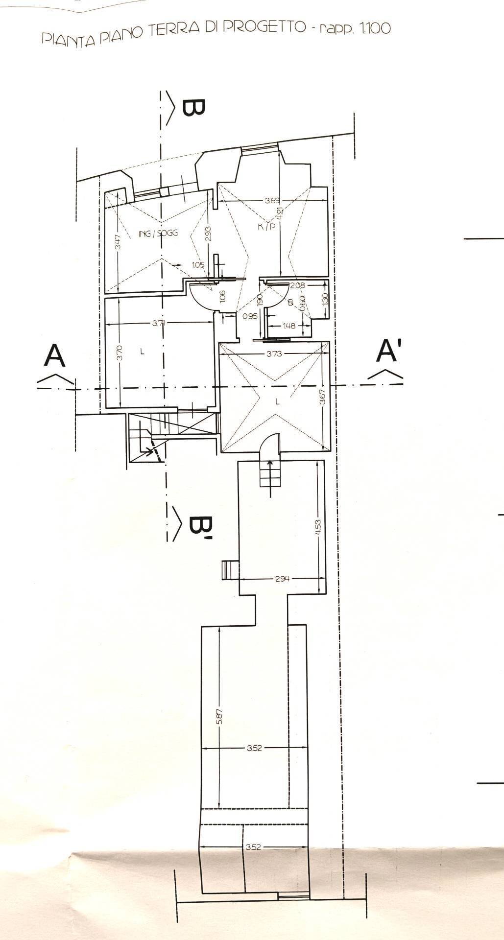
Ad Alezio, a pochi passi dai principali punti di interesse, disponibile graziosa abitazione indipendente con caratteristiche volte a stella. L'immobile, della superficie di circa 105 mq coperti e disposta tutta al piano terra, è infase di ristrutturazione e si compone di un ingresso, una zona giorno con ampiem finestre, due camere da letto, un bagno e una cantina scavata nella roccia che consente di realizzare una zona relax unica o un secondo bagno. Al piano superiore troviamo una bellissima terrazza che offre la possibilità di realizzare delle zone confortevoli. Questo immobile, essendo stato costruito nel 1940, è dotato di una solida struttura e di una buona qualità costruttiva. Questa soluzione abitativa è ideale per chi cerca una casa singola in un'area tranquilla e residenziale, ma allo stesso tempo comoda per raggiungere i servizi e i negozi del centro cittadino. LE PRESENTI INFORMAZIONI E PLANIMETRIE SONO MERAMENTE INDICATIVE E NON COSTITUISCONO ELEMENTI CONTRATTUALI. CENNI STORICI E CURIOSITA' Situato in una zona di lievi alture calcaree, vengono fatte risalire al periodo messapico. Infatti moltissimi reperti, venuti alla luce durante diverse campagne di scavi, ci fanno presumere che lantica Alexsias messapica, oppure Alytia dal nome della madre patria nella regione dellAcarnania, doveva avere una certa importanza tanto che, successivamente, scrittori come Strabone che ci parla di Aletium e Plinio il vecchio che ci parla del popolo aletino fanno pensare ad un paese colto, ricco e popoloso dedito allagricoltura e al commercio. Queste prerogative crebbero di importanza quando si costruì la via Traiana, proseguimento salentino della Appia che finiva a Brindisi. La strada traianea mise in contatto Brindisi con Otranto-Castrum Minervae, il promontorio iapigio (Leuca), Veretum, Ausentum, Anxa (Gallipoli), Aletium, Neretum, Taranto congiungendo lestremo Salento a Roma contribuendo ad aumentare i traffici commerciali. Patrona di Alezio è la Madonna dellAssunta che si festeggia il 15 agosto. Nello stesso periodo si svolge una importante fiera che fu istituita il 25 luglio 1810 da Gioacchino Napoleone allora re delle Due Sicilie, che tolse dazi e gabelle per gli otto giorni in cui si svolgeva la fiera. Un tempo era diffuso tra le donne che rendevano omaggio alla Vergine lusanza di giungere a piedi camminando sulle ginocchia dallingresso del paese fino alla chiesa. Ancora si rinnova la consuetudine di annunciare per tutta la novena lavvicinarsi della festa con il suono di un fischietto e di un tamburo. Una tradizione antichissima vuole che, in passato sino alla fine dell800, si accompagnasse cantando la tiara canto popolare religioso in onore dellAssunta. La Lizziceddha Oltre alla festa del 15 agosto vi è una celebrazione minore ma non meno importante per gli aletini la cosidetta Lizziceddha che si svolge il 27 dello stesso mese per ricordare, secondo la tradizione popolare, la patrona che fu artefice di un miracoloso evento, accaduto il 27 Agosto 1886. La sera di quel giorno Alezio venne colpita da un terremoto di tale intensità e durata da far temere la distruzione del paese; nonostante fosse stato così impetuoso non ci furono danni alle costruzioni e neppure nessuna vittima e i danni furono di lieve entità. Tra la popolazione avvenne il riconoscimento che il miracolo dello scampato pericolo fosse avvenuto per intercessione dellAssunta patrona del paese. In segno di ringraziamento si organizzarono solenni festeggiamenti, divenuti da quellanno una tradizione molto sentita , appunto la Lizziceddha. Inoltre si racconta che la stessa vergine Assunta mentre lasciava Alezio, dopo averla liberata dal terremoto, giunta sulla strada per Gallipoli, si fermò in un podere a riposare, chiamato appunto Croce te la Lizza, che era probabilmente un segnale di confine di proprietà. Da questo episodio realmente avvenuto la leggenda ha tramandato che quella stele...
Dati principali
| Riferimento | 193 |
| Data annuncio | 11/04/2026 |
| Contratto | Vendita |
| Tipologia | Casa indipendente |
| Superficie | 115 m2 |
| Locali | 4 (2 camere da letto, 2 altro), 1 bagno, cucina abitabile |
| Piano | Terra, 1 totali |
| Occupato | Libero |
| Arredamento | Assente |
Caratteristiche
Costi
| Prezzo | 58.000 € |
| Prezzo al m2 | 504 €/m2 |
Efficienza energetica
| Stato | Da ristrutturare |
| Riscaldamento | Assente |
| Tipo Alimentazione Riscaldamento | Altro |
| Classe energetica | G |
| Indice di prestazione energetica (IPE) | - |
Planimetrie
Indirizzo e mappa
Via Roma
99, Alezio
Annuncio senza mappa,
prova a chiedere la posizione all'inserzionista
prova a chiedere la posizione all'inserzionista
Calcolo mutuo
Prezzo di vendita:
Anticipo
20,00
Mutuo
80,00
Tasso: -+
Rata: 166 al mese
I risultati sono una stima indicativa basata sui dati inseriti e non costituiscono un’offerta finanziaria.
Inserzionista
Tommaso Provenzano IMMOBILIARE
Via Kennedy 1, Gallipoli
Mostra Cellulare
Tommaso Provenzano IMMOBILIARE
Mostra Telefono
Chiama
CONTATTA

