Villa Via Del Palazzo Dei Diavoli 67, Firenze
€ 949.000
Sei alla ricerca di una grande abitazione a Firenze? e magari con giardino? Vuoi strafare e addirittura la cerchi indipendente e magari totalmente ristrutturata? E poi?Follia, introvabile ti risponderanno molti agenti immobiliari, ma non noi! Abbiamo appena messo in vendita ciò che stai cercando, proveremo a descrivertelo, ma tu vieni a vederlo perchè leggere l'annuncio non ti sarà sufficiente. Stiamo parlando di un terratetto indipendente di quasi 200 metri quadrati disposto su due livelli. Si accede ad un grandissimo soggiorno, che impegna quasi tutto il piano; una prima zona è destinata al relax, ampia, luminosa e divanta, l'altra al pranzo e all'angolo cucina, elegante e defilato. Un grande bagno finestrato garantisce agli abitanti e/o agli ospiti di non dover salire ai piani superiori. Dal soggiorno si può accedere all'ampio giardino, ma di quello parleremo dopo. Salendo al piano superiore troviamo tre camere, una delle quali con bagno "en suite" e cabina armadio, un ulteriore bagno a servizio del piano ed un grande ripostiglio, addirittura finestrato. Ritornando al piano inferiore, ricordate che potevamo anche scegliere di uscire in giardino? Esattamente, siamo a Firenze eppure abbiamo il giardino e non un'aiuola eh, ben 300 metri quadrati. La frescura, il relax e il barbecue sono assicurati, così come la possibilità di dilettarsi con il giardinaggio per i fortunati dotati di pollice verde. Non mancano anche gli accessori poichè ci sono anche due locali esterni molto utili: un vano tecnico nel quale è stata ricavata anche una funzionale lavanderia ed un altro ampio spazio che può ricoprire svariati utilizzi: sala hobby, magazzino, studio o la destinazione che preferisci. Il parcheggio? Certo, oltre al portone di casa, infatti, c'è un ampio portone carrabile che conduce al giardino e che garantisce di poter ricoverare un'automobile addirittura in spazio coperto. Non ci dilungheremo sulle finiture dell'immobile, sui materiali utilizzati, sulla ristrutturazione eccellente, sul riscaldamento a pavimento, sugli infissi di utlima generazione, gli impianti nuovi etc. Il fortunato futuro acquirente non si dovrà annoiare con una ristrutturazione, al massimo potrà cambiare i colori delle stanze, se non di suo gradimento. Cosa aspetti, chiamaci e riservati un posto al prossimo open house.
Dati principali
| Riferimento | 37751019-FI128 |
| Data annuncio | 11/04/2026 |
| Contratto | Vendita |
| Tipologia | Villa |
| Superficie | 250 m2 |
| Locali | più di 5 (3 camere da letto, 3 altro), 3 bagni, cucina a vista |
| Piano | Su più livelli |
| Occupato | Libero |
| Box auto | Singolo |
| Numero posti auto | 1 |
Caratteristiche
Costi
| Prezzo | 949.000 € |
| Prezzo al m2 | 3.796 €/m2 |
Efficienza energetica
| Stato | Parzialmente ristrutturato |
| Riscaldamento | Autonomo |
| Classe energetica | G |
| Indice di prestazione energetica (IPE) | - |
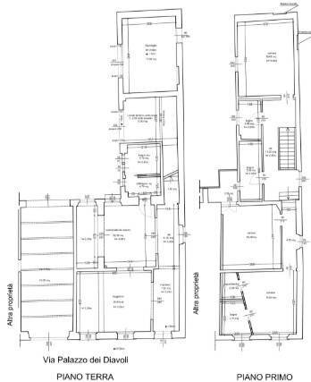
Planimetrie
Indirizzo e mappa
Via Del Palazzo Dei Diavoli
67, Firenze
Annuncio senza mappa,
prova a chiedere la posizione all'inserzionista
prova a chiedere la posizione all'inserzionista
Calcolo mutuo
Prezzo di vendita:
Anticipo
20,00
Mutuo
80,00
Tasso: -+
Rata: 2.714 al mese
I risultati sono una stima indicativa basata sui dati inseriti e non costituiscono un’offerta finanziaria.
Inserzionista

Medicea Immobiliare
Via Santo Spirito, 11/Palazzo dei Marchesi Dè Frescobaldi, Firenze
Mostra Telefono
Mostra Cellulare
Chiama
CONTATTA

