Casa semi indipendente Borgata Pomeano, Pramollo
€ 29.000Casa semindipendente in vendita
Nel caratteristico contesto di Borgata Pomeano, a circa 1.000 metri di altitudine, proponiamo in vendita una casa semi-indipendente disposta su tre livelli, ideale per chi è alla ricerca di tranquillità e contatto con la natura.
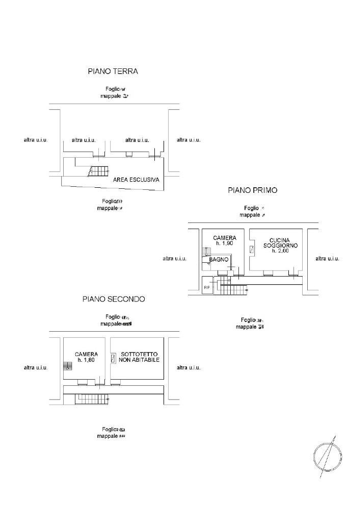
Al piano terra si trovano due suggestive cantine con tipiche volte a botte in pietra, perfette come spazi di deposito o per essere valorizzate secondo le proprie esigenze.
L’abitazione si sviluppa al primo piano, dove troviamo una cucina abitabile, un locale adibito a studio e un bagno finestrato completo di box doccia.
Attraverso una scala interna in legno si accede al secondo piano, dedicato alla zona notte, composta da una camera da letto matrimoniale e un locale sgombero con accesso diretto al balcone.
Il riscaldamento è garantito da una stufa a legna, mentre l’approvvigionamento dell’acqua potabile è gestito da un consorzio privato.
La proprietà gode di un’ottima esposizione al sole e di una piacevole vista aperta sulla valle, rendendola la soluzione ideale come seconda casa per momenti di relax lontano dal caos cittadino.
Al piano terra si trovano due suggestive cantine con tipiche volte a botte in pietra, perfette come spazi di deposito o per essere valorizzate secondo le proprie esigenze.
L’abitazione si sviluppa al primo piano, dove troviamo una cucina abitabile, un locale adibito a studio e un bagno finestrato completo di box doccia.
Attraverso una scala interna in legno si accede al secondo piano, dedicato alla zona notte, composta da una camera da letto matrimoniale e un locale sgombero con accesso diretto al balcone.
Il riscaldamento è garantito da una stufa a legna, mentre l’approvvigionamento dell’acqua potabile è gestito da un consorzio privato.
La proprietà gode di un’ottima esposizione al sole e di una piacevole vista aperta sulla valle, rendendola la soluzione ideale come seconda casa per momenti di relax lontano dal caos cittadino.
Dati principali
| Riferimento | 61203021 |
| Data annuncio | 10/04/2026 |
| Contratto | Vendita |
| Tipologia | Casa semi indipendente |
| Superficie | 74 m2 |
| Locali | 3 (3 altro), 1 bagno |
| Piano | 2 di 2 totali |
Costi
| Prezzo | 29.000 € |
| Prezzo al m2 | 392 €/m2 |
Efficienza energetica
| Anno costruzione | 1800 |
| Riscaldamento | Autonomo |
| Tipo Alimentazione Riscaldamento | Altro |
| Classe energetica | G |
| Indice di prestazione energetica (EP GL, NREN) | 450.44 kWh/m3 anno |
Planimetrie
Indirizzo e mappa
Borgata Pomeano, Pramollo
Calcolo mutuo
Prezzo di vendita:
Anticipo
20,00
Mutuo
80,00
Tasso: -+
Rata: 83 al mese
I risultati sono una stima indicativa basata sui dati inseriti e non costituiscono un’offerta finanziaria.
Inserzionista
Chiama
CONTATTA

