Casa indipendente San Vito dei Normanni
€ 390.000Indipendente - Trullo a San Vito dei Normanni
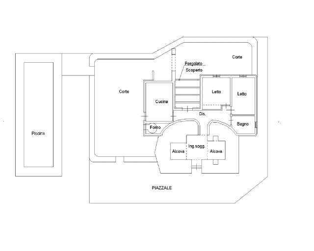
Si propone in vendita un esclusivo complesso di trulli e lamie storici, immerso nella quiete della splendida campagna pugliese. Questa straordinaria proprietà, che si estende su circa 10000 mq, è composta da un trullo principale con 2 alcove e caratteristiche lamie per un totale di 90 mq di fascino e autenticità. La villa si compone di una zona giorno, 2 camere da letto, un bagno e soprattutto il favoloso trullo che può divenire una terza camera da letto o un ingresso grazioso da cui accogliere l’ospite. L’abitazione è servita da riscaldamento con pompa di calore, una capiente cisterna per l'acqua, un pozzo artesiano e un accogliente pergolato per godere dei pomeriggi estivi all’ombra. All'esterno, la proprietà è un’oasi di verde con un invito alla proprietà costituito da una lunga stradina sterrata contornata da un incantevole uliveto(gli alberi sono stati attentamente curati attraverso 3 trattamenti antixilella) . Al centro del giardino, un ampio piazzale in pietra naturale è perfetto per momenti di relax, mentre una splendida piscina di 40 mq invita a rinfrescarsi, circondata dalla quiete della campagna. Questa proprietà unica offre infinite possibilità: perfetta come residenza privata di charme o come esclusivo bed & breakfast, grazie alla posizione privilegiata e all’atmosfera senza tempo che la pervade. Un’opportunità irripetibile per chi cerca un investimento dal carattere autentico e di grande fascino. We offer for sale an exclusive complex of historic trulli and lamia, immersed in the tranquillity of the beautiful Apulian countryside. This extraordinary property, which extends over approximately 10000 sqm, consists of a main trullo with 2 alcoves and characteristic lamia for a total of 90 sqm of charm and authenticity. The villa consists of a living area, 2 bedrooms, a bathroom and, above all, the fabulous trullo that can become a third bedroom or a charming entrance hall to welcome guests. The house is served by heating with a heat pump, a capacious water tank, an artesian well and a cosy pergola to enjoy the summer afternoons in the shade. Outside, the property is an oasis of greenery with an invitation to the property consisting of a long dirt track bordered by a charming olive grove (the trees have been carefully cared for through 3 anti-xylella treatments) . In the centre of the garden, a large natural stone forecourt is perfect for moments of relaxation, while a splendid 40 m² swimming pool invites you to cool off, surrounded by the quietness of the countryside. This unique property offers endless possibilities: perfect as a charming private residence or as an exclusive bed & breakfast, thanks to its privileged location and the timeless atmosphere that pervades it. An unrepeatable opportunity for those seeking an investment with authentic character and great charm. Nous proposons à la vente un complexe exclusif de trulli et de lamia historiques, immergés dans la tranquillité de la belle campagne des Pouilles. Cette extraordinaire propriété, qui s'étend sur environ 10000 m², se compose d'un trullo principal avec 2 alcôves et des lamia caractéristiques pour un total de 90 m² de charme et d'authenticité. La villa se compose d'un espace de vie, de 2 chambres, d'une salle de bain et surtout du fabuleux trullo qui peut devenir une troisième chambre ou un charmant hall d'entrée pour accueillir les invités. La maison est équipée d'un chauffage par pompe à chaleur, d'un grand réservoir d'eau, d'un puits artésien et d'une pergola confortable pour profiter des après-midi d'été à l'ombre. À l'extérieur, la propriété est une oasis de verdure avec une invitation à la propriété constituée d'un long chemin de terre bordé d'une charmante oliveraie (les arbres ont été soigneusement entretenus par 3 traitements anti-xylella). Au centre du jardin, un grand parvis en pierre naturelle est parfait pour les moments de détente, tandis qu'une splendide piscine de 40 m² vous invite à vous rafraîchir, entouré par la tranquillité de la campagne. Cette propriété unique offre des possibilités infinies : parfaite comme résidence privée de charme ou comme chambres d'hôtes exclusives, grâce à sa situation privilégiée et à l'atmosphère intemporelle qui l'imprègne. Une occasion unique pour ceux qui recherchent un investissement avec un caractère authentique et un grand charme.
Dati principali
| Riferimento | 1772 |
| Data annuncio | 09/04/2026 |
| Contratto | Vendita |
| Tipologia | Casa indipendente |
| Superficie | 120 m2 |
| Locali | 4 (2 camere da letto, 2 altro), 1 bagno |
| Piano | 1 totali |
Costi
| Prezzo | 390.000 € |
| Prezzo al m2 | 3.250 €/m2 |
Efficienza energetica
| Classe energetica | In fase di calcolo |
Planimetrie
Indirizzo e mappa
San Vito dei Normanni
Annuncio senza mappa,
prova a chiedere la posizione all'inserzionista
prova a chiedere la posizione all'inserzionista
Calcolo mutuo
Prezzo di vendita:
Anticipo
20,00
Mutuo
80,00
Tasso: -+
Rata: 1.115 al mese
I risultati sono una stima indicativa basata sui dati inseriti e non costituiscono un’offerta finanziaria.
Inserzionista
Casamia S.r.l.
Corso Umberto n. 39, Francavilla Fontana
Mostra Cellulare
Chiama
CONTATTA

