Bilocale via Camillo Benso di Cavour, Rosate
€ 125.000Classe Energetica A1 - In Centro Storico - con box e cantina
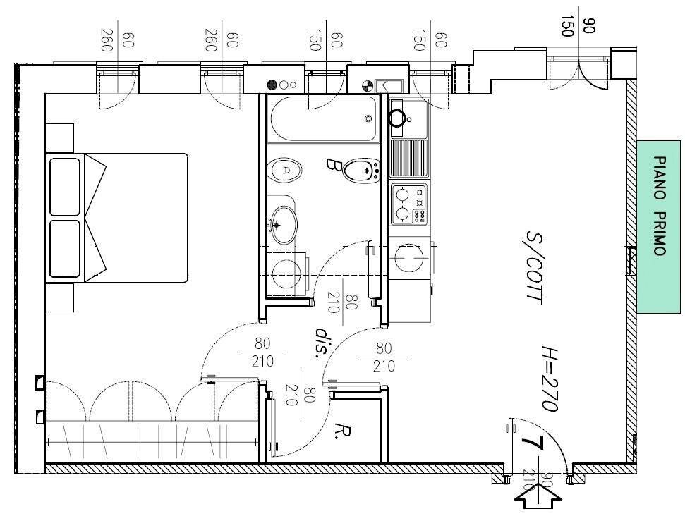
Se siete alla ricerca di un appartamento ideale per coppia o single in centro storico a Rosate, comodissimo con mezzi pubblici (Bus da e per Milano a soli 100 metri), servizi commerciali, scolastici e sociali, vi proponiamo questo appartamento in Classe Energetica A1 nel contesto di in un piccolo condominio del 2015 dotato di cappotto termico esterno, serramenti a basso emissivo e caldaia autonoma a condensazione; CON BASSE SPESE CONDOMINIALI. L'appartamento si trova al primo piano senza ascensore e si compone di: ingresso direttamente nella zona giorno con angolo cottura a vista, disimpegno, bagno finestrato con doccia, ripostiglio e camera da letto, il tutto in ottime condizioni. Completano la proprietà la cantina e il box autorimessa interno al complesso al piano terreno, compresi nel prezzo. La classe Energetica A1 permette con diversi istituti di credito, di accedere a tassi di mutuo inferiori e particolarmente vantaggiosi. VALUTAZIONE GRATUITA DEL VOSTRO IMMOBILE Per maggiori informazioni e visite potete contattarci con le seguenti modalità : tel. 349 6210183 - 02 90834376 mail: [email protected] www.corradocalvi.it
Dati principali
| Riferimento | ID3020452 |
| Data annuncio | 15/12/2025 |
| Contratto | Vendita |
| Tipologia | Appartamento |
| Superficie | 58 m2 |
| Locali | 2 (1 camera da letto, 1 altro), 1 bagno, cucina a vista |
| Piano | 1 di 3 totali |
| Tipo di costruzione | Signorile |
| Box auto | Singolo |
| Arredamento | Assente |
Caratteristiche
Costi
| Prezzo | 125.000 € |
| Prezzo al m2 | 2.155 €/m2 |
| Spese condominiali | € 42,00/mese |
Efficienza energetica
| Anno costruzione | 2015 |
| Stato | Ottimo |
| Riscaldamento | Autonomo |
| Classe energetica | A+ |
| Indice di prestazione energetica (IPE) | 38.99 kWh/m2 anno |
Planimetrie
Indirizzo e mappa
via Camillo Benso di Cavour, Rosate
Calcolo mutuo
Prezzo di vendita:
Anticipo
20,00
Mutuo
80,00
Tasso: -+
Rata: 357 al mese
I risultati sono una stima indicativa basata sui dati inseriti e non costituiscono un’offerta finanziaria.
Inserzionista

Corrado G. Calvi
Via G. Daccò 25, Rosate
Mostra Telefono
Chiama
CONTATTA

