Porzione di casa via dugliolo, Molinella
€ 239.000Porzione di quadrifamiliare in vendita
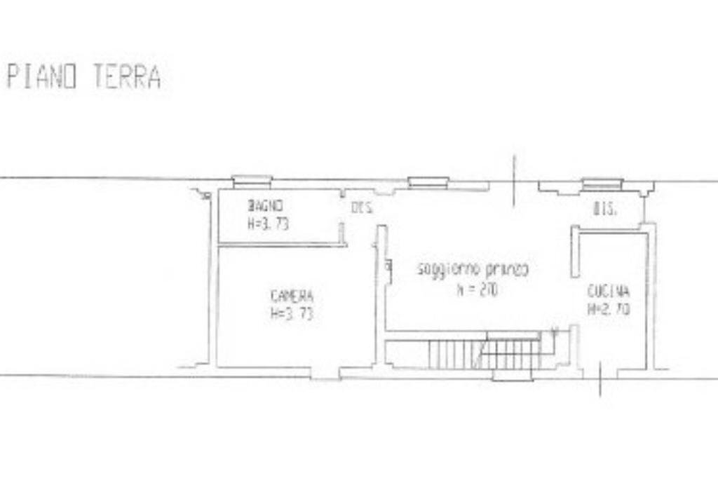
Nel cuore di Dugliolo, tranquilla frazione del Comune di Budrio, proponiamo in vendita una splendida villetta a schiera di testa, ideale per chi desidera indipendenza, comfort e tecnologie all’avanguardia in un contesto riservato e immerso nella quiete. L’abitazione, costruita nel 2007, si distingue per gli spazi generosi e per una distribuzione interna estremamente funzionale. L’ingresso si apre su un ampio e luminoso soggiorno impreziosito dal camino e dalle eleganti travi a vista, un ambiente caldo e accogliente pensato per vivere momenti di relax in famiglia. La cucina è abitabile e ben organizzata, perfetta per chi ama gli spazi conviviali. Sempre al piano terra troviamo un comodo bagno e una spaziosa camera matrimoniale dotata di cabina armadio, soluzione ideale anche per chi desidera la comodità di una zona notte principale sullo stesso livello della zona giorno. Al piano superiore si sviluppa la zona notte con tre ulteriori camere, due matrimoniali dalle dimensioni generose ed una singola, oltre a un secondo bagno che serve il piano. Gli ambienti sono valorizzati dalla presenza di infissi in legno con doppio vetro, scuri esterni, inferriate al piano terra e zanzariere in tutta la casa, dettagli che garantiscono comfort e sicurezza. All’esterno la proprietà è arricchita da un giardino privato con portico, spazio ideale per pranzi all’aperto e momenti di relax nella bella stagione. Il garage, collegato direttamente all’abitazione, offre massima praticità nella vita punto di vista energetico l’immobile è dotato di impianto fotovoltaico da 6 kW con tre batterie di accumulo da 10,60 kW, oltre a caldaia ibrida, caratteristiche che assicurano efficienza, risparmio e attenzione alla sostenibilità. Una soluzione completa, moderna e pronta da abitare, perfetta per famiglie che cercano spazio, indipendenza e qualità costruttiva in una posizione tranquilla ma comoda ai servizi.
Contattaci per fissare un appuntamento.
Contattaci per fissare un appuntamento.
Dati principali
| Riferimento | 61186365 |
| Data annuncio | 10/04/2026 |
| Contratto | Vendita |
| Tipologia | Porzione di casa |
| Superficie | 170 m2 |
| Locali | 5 (5 altro), 2 bagni |
| Piano | 2 di 2 totali |
| Numero posti auto | 1 |
Costi
| Prezzo | 239.000 € |
| Prezzo al m2 | 1.406 €/m2 |
Efficienza energetica
| Anno costruzione | 2007 |
| Riscaldamento | Autonomo |
| Tipo Alimentazione Riscaldamento | Metano |
| Classe energetica | F |
| Indice di prestazione energetica (EP GL, REN) | 0.2 kWh/m3 anno |
| Indice di prestazione energetica (EP GL, NREN) | 120 kWh/m3 anno |
Planimetrie
Indirizzo e mappa
via dugliolo, Molinella
Calcolo mutuo
Prezzo di vendita:
Anticipo
20,00
Mutuo
80,00
Tasso: -+
Rata: 684 al mese
I risultati sono una stima indicativa basata sui dati inseriti e non costituiscono un’offerta finanziaria.
Inserzionista
Agenzia Tecnocasa Azienda.net Srl
Via Mazzini, 185, Molinella
Mostra Telefono
Chiama
CONTATTA

