Ufficio Pisa

€ 110.000
1 locali 25 m2 1 bagni
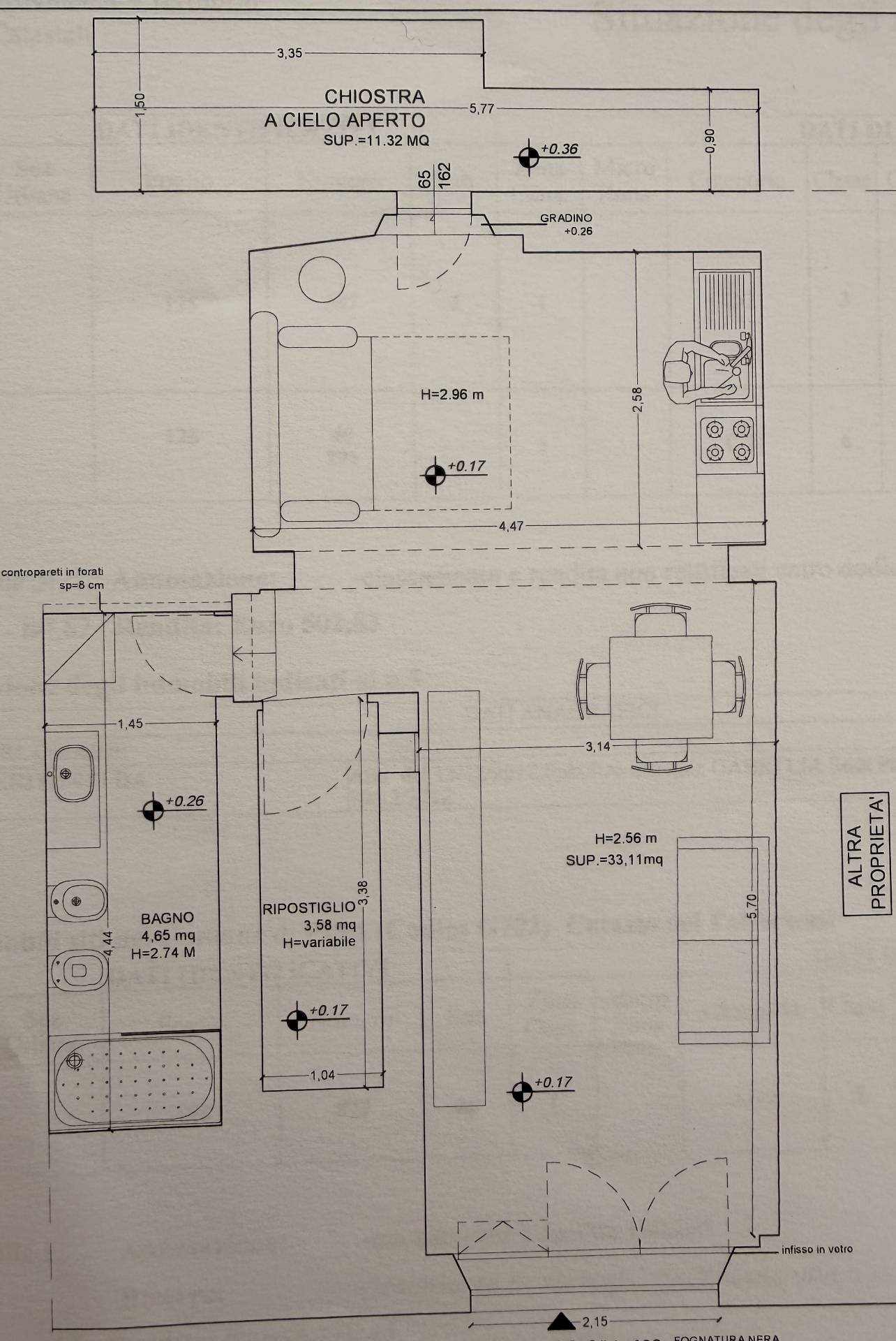
Pisa Centro : Disponibile fondo ad uso magazzino ristrutturato ad appartamento composto da zona giorno con angolo cottura , bagno - wc , ripostiglio e piccola chiostra. Soluzione ideale da mettere a reddito . Per info e visite Andrea 3391878399. Pisa City Center: Available warehouse space, renovated into an apartment comprising a living area with kitchenette, bathroom/WC, and a small courtyard. Ideal for renting. For information and viewings, call Andrea 3391878399.
Dati principali
Riferimento a3492
Data annuncio 10/04/2026
Contratto Vendita
Tipologia Ufficio
Superficie 25 m2
Locali 1 (1 camera da letto), 1 bagno
Tipo di costruzione Signorile
Occupato Libero
Arredamento Completo
Costi
Prezzo 110.000 €
Prezzo al m2 4.400 €/m2
Efficienza energetica
Tipo Alimentazione Riscaldamento Altro
Classe energetica G
Indice di prestazione energetica (IPE) -
Immobiliare Italia
Corso Italia n64, Pisa
 Mostra Telefono +39 050 503028
Visualizza altri annunci di

uffici in vendita a Pisa


Comune di Pisa

:
Vendita uffici Pisa
Vendita commerciali Pisa
Agenzie immobiliari Pisa

Provincia di Pisa

:
Uffici in vendita provincia Pisa
Vendita commerciali provincia Pisa
Indirizzo e mappa
Pisa
Annuncio senza mappa,
prova a chiedere la posizione all'inserzionista
Calcolo mutuo
Prezzo di vendita: 
Anticipo
20,00
Mutuo
80,00
Tasso: -+
Rata: 315 al mese
I risultati sono una stima indicativa basata sui dati inseriti e non costituiscono un’offerta finanziaria.