Trilocale Via San Domenico, Firenze
€ 1.200 al meseAppartamento - Trilocale a Campo di Marte, Firenze
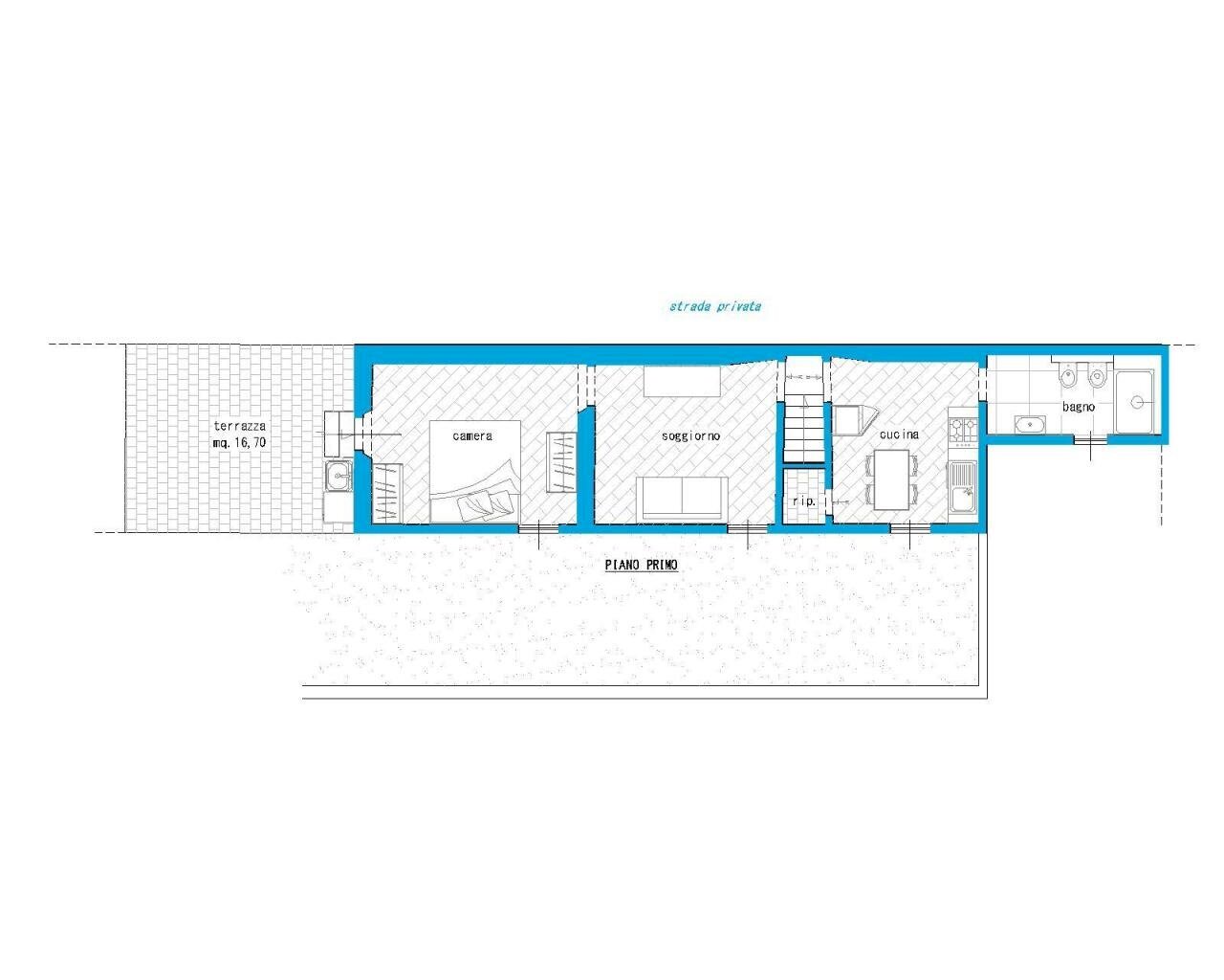
a26141 - Firenze/Campo di Marte - Via San Domenico In strada interna e silenziosa, nei pressi di Piazza Edison e di tutti i principali servizi, IMMOBILIARE BELVEDERE propone in affitto luminoso appartamento (53 mq ca) situato al primo ed ultimo piano composto da: ingresso, soggiorno, cucina abitabile, camera da letto matrimoniale con servizio finestrato oltre a pratico ripostiglio e ampia terrazza abitabile. L'immobile si presenta in ottime condizioni generali, è stato recentemente ristrutturato, gode di doppia esposizione ed è dotato di doppi infissi e predisposizione per l'aria condizionata. Termosingolo classe energetica G. Contratto proposto transitorio 12 mesi, richieste massime garanzie. La proprietà accetta solo studenti muniti di regolare libretto universitario o manager d'azienda.
Dati principali
| Riferimento | a26141 |
| Data annuncio | 08/04/2026 |
| Contratto | Affitto |
| Tipologia | Appartamento |
| Superficie | 53 m2 |
| Locali | 3 (1 camera da letto, 2 altro), 1 bagno |
| Piano | 1 totali |
| Numero di terrazzi | 1 |
| Arredamento | Completo |
Costi
| Prezzo | 1.200 € al mese |
| Spese condominiali | € 50,00/mese |
Efficienza energetica
| Anno costruzione | 1970 |
| Classe energetica | G |
Planimetrie
Indirizzo e mappa
Via San Domenico, Firenze
Inserzionista
Immobiliare Belvedere
Via Il Prato 61r, Firenze
Mostra Telefono
Chiama
CONTATTA

