Hotel via Traspontino, 1, Ragusa
€ 780.000PALAZZO CENTRO STORICO RAGUSA
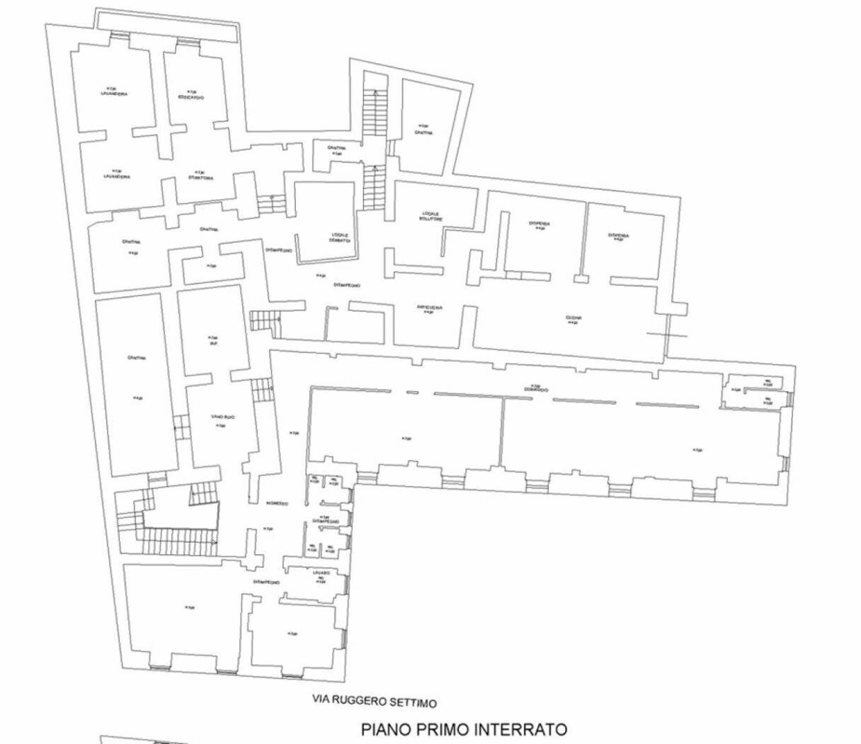
Nel cuore del centro storico, a 400 metri dalla Cattedrale di Ragusa e da Corso Italia, curiamo la vendita di un edificio storico situato in via Traspontino, con vista panoramica sulla Vallata Santa Domenica e su Ponte Vecchio, il più antico dei ponti di Ragusa datato 1837. Il palazzo risalente ai primi decenni del XX secolo è distribuito su 5 livelli, due sottostrada e tre sopra elevati. L'ingresso primario è da via Traspontino 1, dove è ubicata anche la scala interna principale che collega tutti i piani, lo spazio potrebbe essere occupato anche da future installazioni di ascensori. L'ala dell'edificio che si affaccia su via Ruggiero Settimo ha i piani collegati tra loro da una scala minore secondaria. La vista già dal piano primo è molto suggestiva: Ponte Vecchio, la cupola della Cattedrale, la Vallata a strapiombo con le antiche cave, e sullo sfondo verso sud Ragusa IBLA con il DUOMO di San Giorgio. La destinazione d'uso è D/2 appropriata per ospitare una struttura turistica ricettiva, hotel, pensione, ecc. con oltre 60 camere, per un totale di circa 4000 mq, così suddivisi: - piano S2 sottostrada 418 mq; - piano S1 sottostrada 922 mq; - piano terra 908 mq; - piano 1° ammezzato 224 mq (altezza 2 metri); - piano 2° 908 mq; - piano 3° 665 mq oltre terrazza a livello 200 mq. L'edificio necessita di un integrale e sostanziale intervento di ristrutturazione. L'immobile è situato a pochi metri dalla stazione di RAGUSA (460 m). Le linee autobus più vicine sono P.ZA CAPPUCCINI (100 m), FERMATA BUS e altre 6 fermate nel raggio di 400 m. Gli asili per bambini nelle vicinanze dell'immobile sono RAGUSA EX GIARDINO D'INFANZIA (220 m) e VIA M.COFFA (250 m). Inoltre, i servizi scolastici comprendono gli istituti: I.T.G. PARITARIO DANTE ALIGHIERI (40 m), C.BATTISTI e altre 4 scuole nel raggio di 300 m. È presente nelle vicinanze dell'immobile il servizio sanitario CIVILE M.P. AREZZO (400 m). Stai pensando di vendere o affittare il tuo locale commerciale? Con RockAgent puoi vendere o affittare il tuo immobile assicurandoti un servizio eccellente, garantito da agenti immobiliari selezionati supportati da un team tecnico, marketing e legale di altissimo livello. Visita il sito RockAgent.it e ottieni una valutazione gratuita del tuo immobile.
Dati principali
| Riferimento | 180740 - 07/04/2026 |
| Data annuncio | 04/03/2026 |
| Contratto | Vendita |
| Tipologia | Hotel |
| Superficie | 4000 m2 |
| Piano | 5 totali |
Costi
| Prezzo | 780.000 € |
| Prezzo al m2 | 195 €/m2 |
Efficienza energetica
| Riscaldamento | Assente |
| Classe energetica | Immobile esente da certificazione energetica |
Planimetrie
Indirizzo e mappa
via Traspontino, 1, Ragusa
Calcolo mutuo
Prezzo di vendita:
Anticipo
20,00
Mutuo
80,00
Tasso: -+
Rata: 2.231 al mese
I risultati sono una stima indicativa basata sui dati inseriti e non costituiscono un’offerta finanziaria.
Inserzionista

RockAgent
Via di Santa Costanza 21, Roma
Mostra Telefono
Chiama
CONTATTA

