Appartamento Via Portacatena 24, Salerno
€ 1.280.000
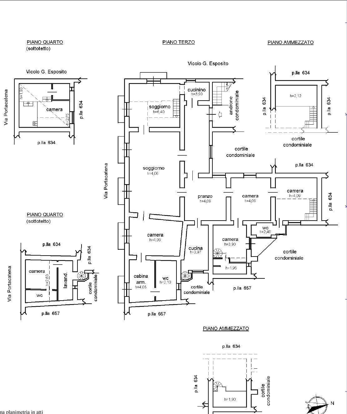
Dimora Nobiliare del XVII Secolo nel centro storico di Salerno Nel cuore pulsante della Salerno storica, in Via Portacatena, proponiamo in vendita una residenza di rara bellezza situata in un prestigioso palazzo nobiliare in stile barocco (XVI-XVII secolo). A pochi passi dalla Villa Comunale, dal Lungomare e dalla vibrante Via Roma, questa proprietà rappresenta un pezzo di storia dell'architettura cittadina. Lappartamento si sviluppa su una superficie di circa 360 mq calpestabili, distribuiti tra il terzo e il quarto piano, comodamente serviti da ascensore. Caratteristiche Principali: Salone di Rappresentanza: Un ambiente maestoso caratterizzato da un camino antico e pareti adornate da pitture originali dellepoca. Dettagli d'Epoca: Soffitti con travi antiche decorate, finiture di pregio e unatmosfera autentica che riporta al fascino del barocco. Luminosità e Affacci: L'immobile gode di una straordinaria luce naturale grazie ai 7 balconi che offrono scorci suggestivi sul centro storico. Layout: Ampia zona giorno, cucina abitabile, numerose camere padronali e servizi, ideali per chi cerca una residenza di alta rappresentanza o una soluzione abitativa esclusiva. Una dimora dal fascino intramontabile, perfetta per chi desidera vivere leleganza del passato con i comfort moderni. Contattaci per maggiori informazioni
Dati principali
| Riferimento | CBI189-2897-38 |
| Data annuncio | 09/04/2026 |
| Contratto | Vendita |
| Tipologia | Appartamento |
| Superficie | 410 m2 |
| Locali | più di 5 (6 camere da letto, 8 altro), 4 bagni, cucina abitabile |
| Piano | Su più livelli, 4 totali |
| Occupato | Libero |
| Box auto | Assente |
| Arredamento | Assente |
Caratteristiche
Costi
| Prezzo | 1.280.000 € |
| Prezzo al m2 | 3.122 €/m2 |
Efficienza energetica
| Stato | Buono |
| Riscaldamento | Autonomo |
| Classe energetica | G |
| Indice di prestazione energetica (IPE) | - |
Planimetrie
Indirizzo e mappa
Via Portacatena
24, Salerno
Annuncio senza mappa,
prova a chiedere la posizione all'inserzionista
prova a chiedere la posizione all'inserzionista
Calcolo mutuo
Prezzo di vendita:
Anticipo
20,00
Mutuo
80,00
Tasso: -+
Rata: 3.661 al mese
I risultati sono una stima indicativa basata sui dati inseriti e non costituiscono un’offerta finanziaria.
Inserzionista

Coldwell Banker Alessia Di Majo Real Estate
Via Angelo Papio 12/C, Salerno
Mostra Cellulare
Coldwell Banker Alessia Di Majo Real Estate
Mostra Telefono
Chiama
CONTATTA

