Trilocale Via Arduino, Ivrea
€ 125.000Trilocale in vendita
IVREA - Nel suggestivo centro storico di Ivrea, proponiamo in vendita un appartamento totalmente ristrutturato situato al primo piano di una palazzina di cui hanno recentemente rifatto la facciata, valorizzandone l’aspetto esterno.
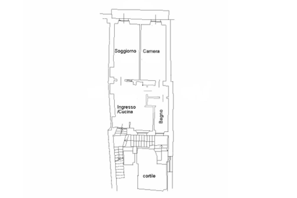
L’ingresso si apre direttamente su una cucina abitabile, perfetta per pranzi in famiglia o cene con amici, mentre il soggiorno separato gode di una piacevole esposizione con accesso diretto su un balcone che si affaccia sulla via del centro, ideale per godere della vita cittadina.
Il corridoio conduce alla zona notte, composta da una camera da letto matrimoniale e da un bagno finestrato, che garantisce luce naturale e ventilazione.
Completa la proprietà un'ampia cantina, utile per deposito o come spazio aggiuntivo.
Questo appartamento rappresenta un’occasione unica per chi desidera vivere nel cuore storico della città, a pochi passi da negozi, caffè e servizi, con il comfort di spazi ben distribuiti, luminosi e una palazzina esteticamente rinnovata. Viene venduto con il mobilio già presente, rendendolo pronto per essere abitato da subito.
L’ingresso si apre direttamente su una cucina abitabile, perfetta per pranzi in famiglia o cene con amici, mentre il soggiorno separato gode di una piacevole esposizione con accesso diretto su un balcone che si affaccia sulla via del centro, ideale per godere della vita cittadina.
Il corridoio conduce alla zona notte, composta da una camera da letto matrimoniale e da un bagno finestrato, che garantisce luce naturale e ventilazione.
Completa la proprietà un'ampia cantina, utile per deposito o come spazio aggiuntivo.
Questo appartamento rappresenta un’occasione unica per chi desidera vivere nel cuore storico della città, a pochi passi da negozi, caffè e servizi, con il comfort di spazi ben distribuiti, luminosi e una palazzina esteticamente rinnovata. Viene venduto con il mobilio già presente, rendendolo pronto per essere abitato da subito.
Dati principali
| Riferimento | 61202716 |
| Data annuncio | 08/04/2026 |
| Contratto | Vendita |
| Tipologia | Appartamento |
| Superficie | 66 m2 |
| Locali | 3 (3 altro), 1 bagno |
| Piano | 1 di 3 totali |
Costi
| Prezzo | 125.000 € |
| Prezzo al m2 | 1.894 €/m2 |
| Spese condominiali | € 50,00/mese |
Efficienza energetica
| Anno costruzione | 1890 |
| Riscaldamento | Autonomo |
| Tipo Alimentazione Riscaldamento | Metano |
| Classe energetica | D |
| Indice di prestazione energetica (EP GL, REN) | 5.23 kWh/m3 anno |
| Indice di prestazione energetica (EP GL, NREN) | 79.89 kWh/m3 anno |
Planimetrie
Video
Indirizzo e mappa
Via Arduino, Ivrea
Calcolo mutuo
Prezzo di vendita:
Anticipo
20,00
Mutuo
80,00
Tasso: -+
Rata: 357 al mese
I risultati sono una stima indicativa basata sui dati inseriti e non costituiscono un’offerta finanziaria.
Inserzionista
Agenzia Tecnorete Studio Ivrea Due Sas
Via Torino, 112, Ivrea
Mostra Telefono
Chiama
CONTATTA

