Trilocale Via Maranesi, Modena (zona Sacca)
€ 270.000Trilocale in vendita
SANT'ANNA
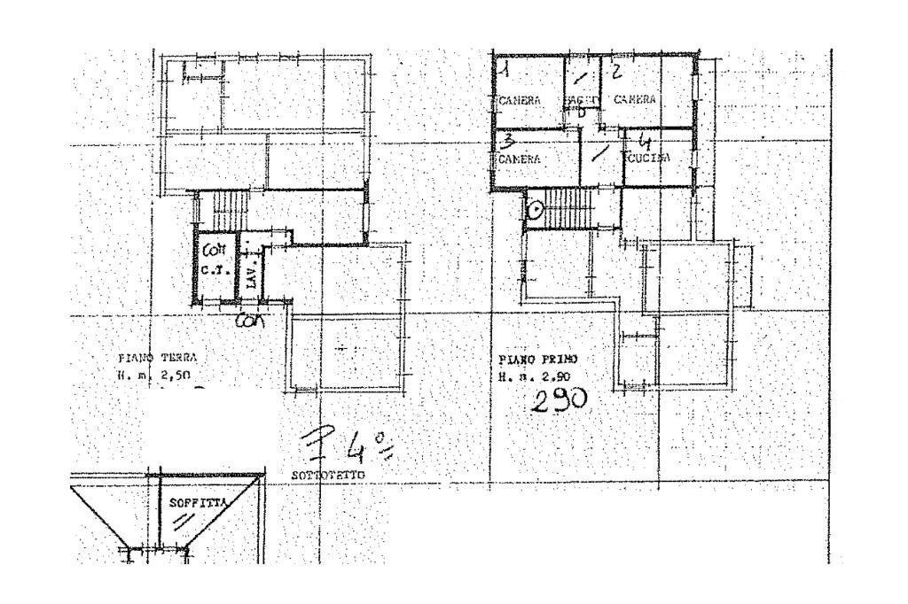
Nel cuore della località Sant'anna a Modena, proponiamo un appartamento in vendita di 102 mq, situato al piano primo di un edificio residenziale.
L'immobile offre una disposizione funzionale degli spazi, ideale per chi cerca comfort e praticità. L'appartamento si compone di tre locali: due ampie camere da letto, un soggiorno luminoso e una cucina abitabile. Il bagno è ben posizionato per servire comodamente tutte le stanze. Un balcone serve la zona giorno e offre uno spazio esterno privato, perfetto per momenti di relax.
Completa la proprietà un garage di 50 metri quadrati, con annesso bagno e un posto auto, garantendo comodità per il parcheggio.
La zona dell'immobile assicura un contesto tranquillo e ben servito, con tutte le comodità a portata di mano.
E' presente anche un area cortiliva condominiale per gli appassionati del pollice verde.
Questa soluzione abitativa rappresenta un'opportunità interessante per chi desidera vivere in una zona ben collegata e ricca di servizi.
Per info, il consulente risponde al 335 6616389.
Nel cuore della località Sant'anna a Modena, proponiamo un appartamento in vendita di 102 mq, situato al piano primo di un edificio residenziale.
L'immobile offre una disposizione funzionale degli spazi, ideale per chi cerca comfort e praticità. L'appartamento si compone di tre locali: due ampie camere da letto, un soggiorno luminoso e una cucina abitabile. Il bagno è ben posizionato per servire comodamente tutte le stanze. Un balcone serve la zona giorno e offre uno spazio esterno privato, perfetto per momenti di relax.
Completa la proprietà un garage di 50 metri quadrati, con annesso bagno e un posto auto, garantendo comodità per il parcheggio.
La zona dell'immobile assicura un contesto tranquillo e ben servito, con tutte le comodità a portata di mano.
E' presente anche un area cortiliva condominiale per gli appassionati del pollice verde.
Questa soluzione abitativa rappresenta un'opportunità interessante per chi desidera vivere in una zona ben collegata e ricca di servizi.
Per info, il consulente risponde al 335 6616389.
Dati principali
| Riferimento | 61202290 |
| Data annuncio | 04/04/2026 |
| Contratto | Vendita |
| Tipologia | Appartamento |
| Superficie | 102 m2 |
| Locali | 3 (3 altro), 1 bagno |
| Piano | 1 di 3 totali |
| Numero posti auto | 1 |
Costi
| Prezzo | 270.000 € |
| Prezzo al m2 | 2.647 €/m2 |
| Spese condominiali | € 75,00/mese |
Efficienza energetica
| Anno costruzione | 1974 |
| Riscaldamento | Autonomo |
| Tipo Alimentazione Riscaldamento | Metano |
| Classe energetica | E |
| Indice di prestazione energetica (EP GL, NREN) | 244.17 kWh/m3 anno |
Planimetrie
Indirizzo e mappa
Via Maranesi, Modena - quartiere Sacca
Calcolo mutuo
Prezzo di vendita:
Anticipo
20,00
Mutuo
80,00
Tasso: -+
Rata: 772 al mese
I risultati sono una stima indicativa basata sui dati inseriti e non costituiscono un’offerta finanziaria.
Inserzionista
Chiama
CONTATTA

