Quadrilocale Via Sant'Angelo, Firenze
€ 355.000Appartamento - Quadrilocale a Legnaia, Firenze
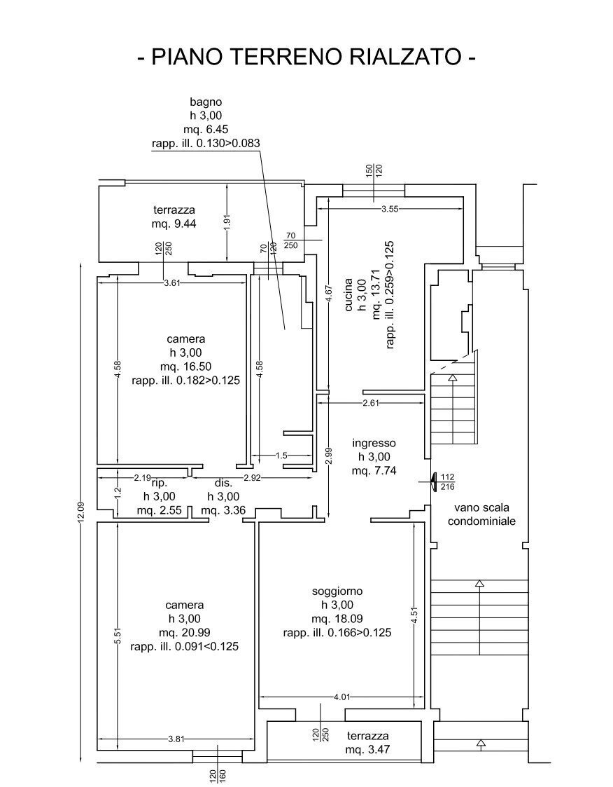
a26132 - LEGNAIA/ VIA SANT'ANGELO: In zona ben servita data la vicinanza al centro commerciale, alle poste ed alla fermata della tranvia, IMMOBILIARE BELVEDERE propone in vendita ampio e luminoso appartamento (100mq ca) situato al piano terreno rialzato e composto da: ingresso, soggiorno, cucina abitabile, due camere da letto entrambi matrimoniali con servizio finestrato e ripostiglio oltre balcone e terrazza abitabile con affacci interni. L'immobile è stato recentemente ristrutturato ed è dotato di aria condizionata. Riscaldamento termocentrale con termovalvole. Classe Energetica G
Dati principali
| Riferimento | a26132 |
| Data annuncio | 03/04/2026 |
| Contratto | Vendita |
| Tipologia | Appartamento |
| Superficie | 100 m2 |
| Locali | 4 (2 camere da letto, 2 altro), 1 bagno |
| Piano | 1 totali |
| Numero di terrazzi | 1 |
| Numero di balconi | 1 |
Costi
| Prezzo | 355.000 € |
| Prezzo al m2 | 3.550 €/m2 |
| Spese condominiali | € 135,00/mese |
Efficienza energetica
| Anno costruzione | 1965 |
| Classe energetica | G |
Planimetrie
Indirizzo e mappa
Via Sant'Angelo, Firenze
Calcolo mutuo
Prezzo di vendita:
Anticipo
20,00
Mutuo
80,00
Tasso: -+
Rata: 1.015 al mese
I risultati sono una stima indicativa basata sui dati inseriti e non costituiscono un’offerta finanziaria.
Inserzionista
Immobiliare Belvedere
Via Il Prato 61r, Firenze
Mostra Telefono
Chiama
CONTATTA

