Appartamento via Martiri della Libertà, Campomorone
€ 17.031
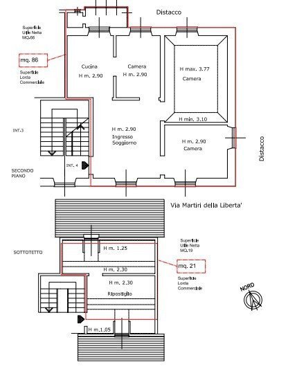
PROPONIAMO CONSULENZA TECNICA E LEGALE PER ACQUISTO IN ASTA GIUDIZIARIA PER INFO 340 8515467 In Via Martiri della Libertà, a soli mt 500 dal centro storico di Campomorone e comodo a tutti i servizi, proponiamo appartamento di mq 86 posto al secondo piano, composto da soggiorno d'ingresso, cucina, 3 camere e bagno. Completa l'appartamento una soffitta ad uso ripostiglio di mq 21. L'immobile viene venduto dal Tribunale tramite asta giudiziaria ed il prezzo indicato si riferisce all’offerta minima. Acquista in asta giudiziaria affidandoti a professionisti del settore: con la massima tranquillità e trasparenza ti offriremo un servizio completo chiavi in mano. MONDO CASA E' LA STRUTTURA CON SEDE IN GENOVA CHE CON ESPERIENZA ULTRADECENNALE SI OCCUPA A 360° DI CONSULENZA TECNICA E LEGALE PER ACQUISTI DI IMMOBILI IN ASTA GIUDIZIARIA.
Dati principali
| Riferimento | Campomorone |
| Data annuncio | 04/07/2022 |
| Contratto | Vendita |
| Tipologia | Appartamento |
| Superficie | 104 m2 |
| Locali | 4 (3 camere da letto, 1 altro), 1 bagno, cucina abitabile |
| Piano | 1 di 3 totali |
| Tipo di costruzione | Popolare |
| Box auto | Assente |
| Arredamento | Assente |
Costi
| Prezzo | 17.031 € |
| Prezzo al m2 | 164 €/m2 |
Efficienza energetica
| Anno costruzione | 1900 |
| Stato | Buono |
| Riscaldamento | Autonomo |
| Classe energetica | G |
| Indice di prestazione energetica (IPE) | 175 kWh/m2 anno |
Planimetrie
Indirizzo e mappa
via Martiri della Libertà, Campomorone
Calcolo mutuo
Prezzo di vendita:
Anticipo
20,00
Mutuo
80,00
Tasso: -+
Rata: 49 al mese
I risultati sono una stima indicativa basata sui dati inseriti e non costituiscono un’offerta finanziaria.
Inserzionista

Mondo Casa
Via Oreste De Gaspari 1/2, Genova
Mostra Cellulare
Chiama
CONTATTA

