Casa semi indipendente Collina 14, Tolentino
€ 350.000
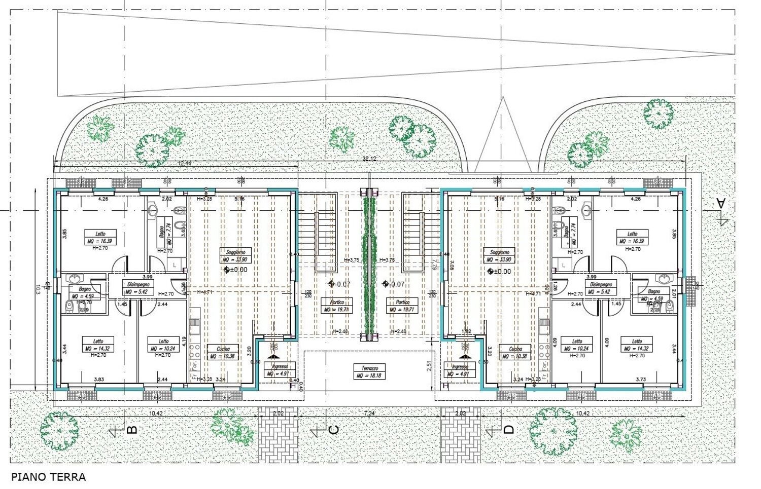
Rif. V031: In posizione strategica con vista panoramica a 360 gradi, a pochi passi dal centro di Tolentino e dal Comune di San Severino Marche, proponiamo in vendita una villetta bifamiliare di nuova costruzione, realizzata secondo le più moderne normative antisismiche ed energetiche. Un comodo porticato conduce all'abitazione, distribuita principalmente su un unico livello: il piano terra. Qui si apre un'ampia e luminosa zona giorno con cucina abitabile e salone, due camere matrimoniali, una camera doppia e due bagni spaziosi, entrambi dotati di doccia. Gli interni sono curati con materiali esclusivi e raffinati, come infissi in PVC con sistema anti-ribaltamento, pavimenti in gres dai toni neutri e travi in legno a vista che conferiscono calore e comfort agli ambienti. Il riscaldamento a pavimento è integrato da pannelli fotovoltaici e pompa di calore. Al piano seminterrato si trova un box auto di oltre 70 mq e diversi locali accessori, ideali per uno studio, una palestra domestica, una zona relax o una taverna. I lavori sono in fase di completamento!
Dati principali
| Riferimento | V031 |
| Data annuncio | 04/04/2026 |
| Contratto | Vendita |
| Tipologia | Casa semi indipendente |
| Superficie | 295 m2 |
| Locali | più di 5 (3 camere da letto, 6 altro), 2 bagni |
| Piano | 1 totali |
| Tipo di costruzione | Signorile |
| Box auto | Doppio |
| Arredamento | Assente |
Caratteristiche
Costi
| Prezzo | 350.000 € |
| Prezzo al m2 | 1.186 €/m2 |
Efficienza energetica
| Stato | Ottimo |
| Riscaldamento | Autonomo |
| Tipo Impianto Di Riscaldamento | a pavimento |
| Tipo Alimentazione Riscaldamento | Fotovoltaico |
| Classe energetica | A4 |
Planimetrie
Indirizzo e mappa
Collina
14, Tolentino
Annuncio senza mappa,
prova a chiedere la posizione all'inserzionista
prova a chiedere la posizione all'inserzionista
Calcolo mutuo
Prezzo di vendita:
Anticipo
20,00
Mutuo
80,00
Tasso: -+
Rata: 1.001 al mese
I risultati sono una stima indicativa basata sui dati inseriti e non costituiscono un’offerta finanziaria.
Inserzionista

Infinito Casa srl
via Roma, Tolentino
Mostra Telefono
Mostra Cellulare
Chiama
CONTATTA

