Villa Bifamiliare Carlo Santini 5, Tolentino
€ 190.000
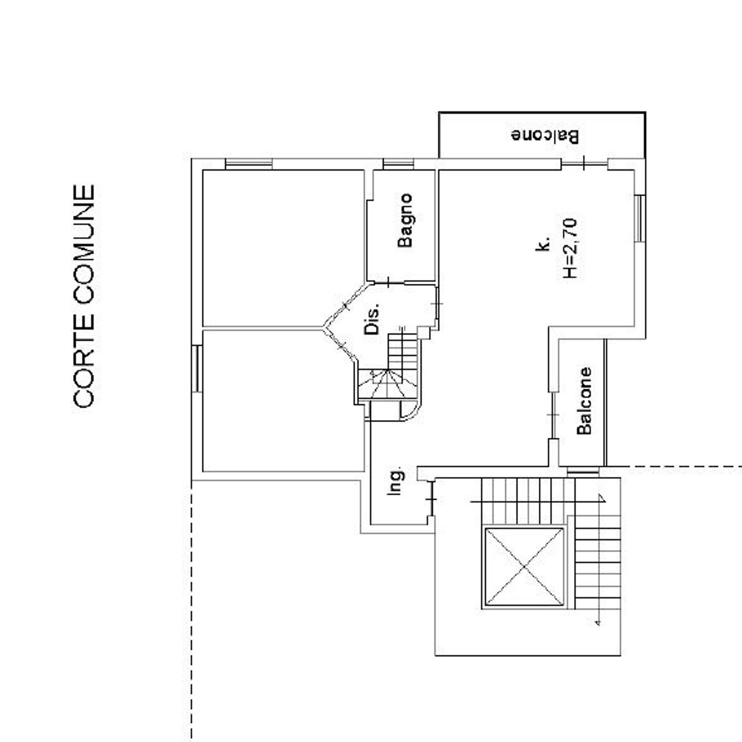
Rif. A178: Situato in via Carlo Santini, ad un passo da tutti i servizi cittadini e dal centro storico proponiamo in vendita appartamento di nuova costruzione con fine dei lavori prevista per giugno 2026. L'abitazione conta una superficie di 90 mq. commerciali, è posta al 4° piano raggiungibile tramite scala ed ascensore oltre ad avere una tripla esposizione verso est, sud ed ovest che grazie all'ampiezza della superficie finestrata dona abbondante luminosità ed ariosità all'immobile. Internamente composta da ingresso, cucina abitabile ed ampio soggiorno serviti da 2 comodi balconi, n. 2 camere da letto ed un bagno. Grazie ad una scala interna si raggiunge la mansarda (h. max. m. 2,40) di circa 45 mq. dove insiste un locale lavanderia finestrato. La palazzina vanta l'utilizzo delle più recenti normative antisismiche ed è dotata di numerosi comfort tra i quali portoncino d'ingresso blindato, videocitofono, predisposizione aria condizionata (caldo/freddo), infissi in PVC, serrandine in PVC elettriche, porte interne laccate di bianco effetto legno, impianto fotovoltaico 2,1 kw/h, impianto di riscaldamento radiante a pavimento, pompa di calore e serbatoio di accumulo 190 lt. , centralina di termo regolarizzazione e cappotto termico.
Dati principali
| Riferimento | A178 |
| Data annuncio | 04/04/2026 |
| Contratto | Vendita |
| Tipologia | Villa Bifamiliare |
| Superficie | 135 m2 |
| Locali | 5 (5 altro), 1 bagno |
| Piano | 4 |
Caratteristiche
Costi
| Prezzo | 190.000 € |
| Prezzo al m2 | 1.407 €/m2 |
Efficienza energetica
| Stato | Parzialmente ristrutturato |
| Riscaldamento | Autonomo |
| Classe energetica | Immobile esente da certificazione energetica |
Planimetrie
Indirizzo e mappa
Carlo Santini
5, Tolentino
Annuncio senza mappa,
prova a chiedere la posizione all'inserzionista
prova a chiedere la posizione all'inserzionista
Calcolo mutuo
Prezzo di vendita:
Anticipo
20,00
Mutuo
80,00
Tasso: -+
Rata: 543 al mese
I risultati sono una stima indicativa basata sui dati inseriti e non costituiscono un’offerta finanziaria.
Inserzionista

Infinito Casa srl
via Roma, Tolentino
Mostra Telefono
Mostra Cellulare
Chiama
CONTATTA

