Attico 8 Marzo, Tolentino
€ 199.000
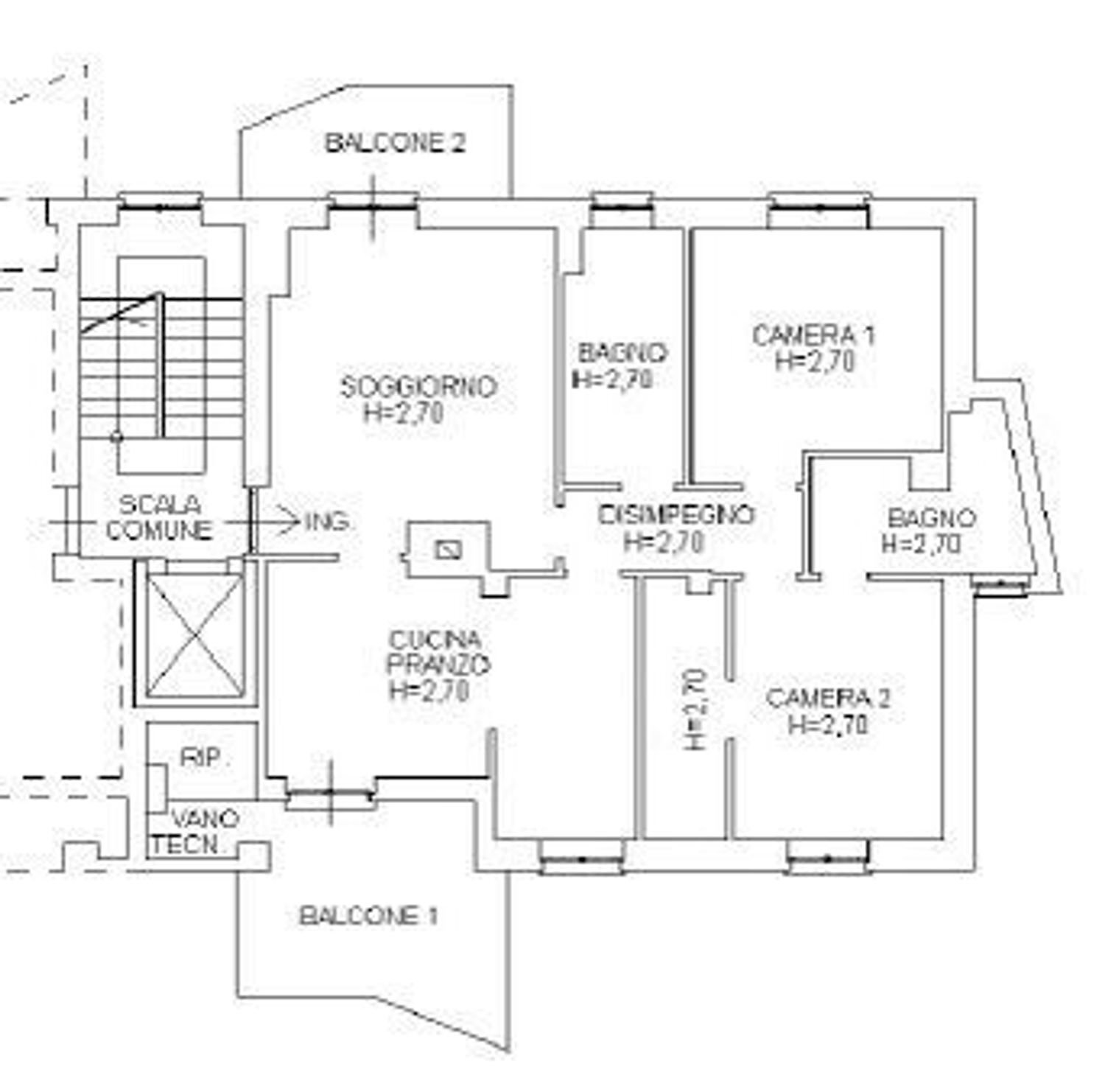
Rif. A132: A Tolentino in Zona Oasi, proponiamo in vendita appartamento di 104 mq. posto al 3° piano servito da ascensore, sito in palazzina di sole sei famiglie e composto da ingresso, cucina, ampio salone, due camere matrimoniali, una camera singola, due bagni e due terrazzi oltre a un garage di 33 mq, e un posto auto scoperto. La palazzina è del 2009, e non necessita di alcun tipo di intervento di manutenzione. L'appartamento molto luminoso, dispone di finiture di pregio, abbiamo il parquet nella zona notte, il quarzo nella zona giorno, mentre nei bagni il pavimento è di marmo. Il riscaldamento è autonomo, con radiatori in alluminio, gli infissi con il legno con vetro termico dotati anche di zanzariere. Il portone è blindato e l'appartamento dispone dell'impianto d'allarme. Ottima soluzione sia per famiglie numerose sia come investimento! Prezzo richiesto 209.000 euro.
Dati principali
| Riferimento | A132 |
| Data annuncio | 04/04/2026 |
| Contratto | Vendita |
| Tipologia | Attico |
| Superficie | 104 m2 |
| Locali | 5 (5 altro), 2 bagni |
| Piano | 3 |
| Numero posti auto | 1 |
Caratteristiche
Costi
| Prezzo | 199.000 € |
| Prezzo al m2 | 1.913 €/m2 |
Efficienza energetica
| Stato | Parzialmente ristrutturato |
| Tipo Alimentazione Riscaldamento | Altro |
| Classe energetica | C |
| Indice di prestazione energetica (IPE) | - |
Planimetrie
Indirizzo e mappa
8 Marzo, Tolentino
Annuncio senza mappa,
prova a chiedere la posizione all'inserzionista
prova a chiedere la posizione all'inserzionista
Calcolo mutuo
Prezzo di vendita:
Anticipo
20,00
Mutuo
80,00
Tasso: -+
Rata: 569 al mese
I risultati sono una stima indicativa basata sui dati inseriti e non costituiscono un’offerta finanziaria.
Inserzionista

Infinito Casa srl
via Roma, Tolentino
Mostra Telefono
Mostra Cellulare
Chiama
CONTATTA

