Rustico Morti dell'Astore, Castiglione delle Stiviere
€ 125.000
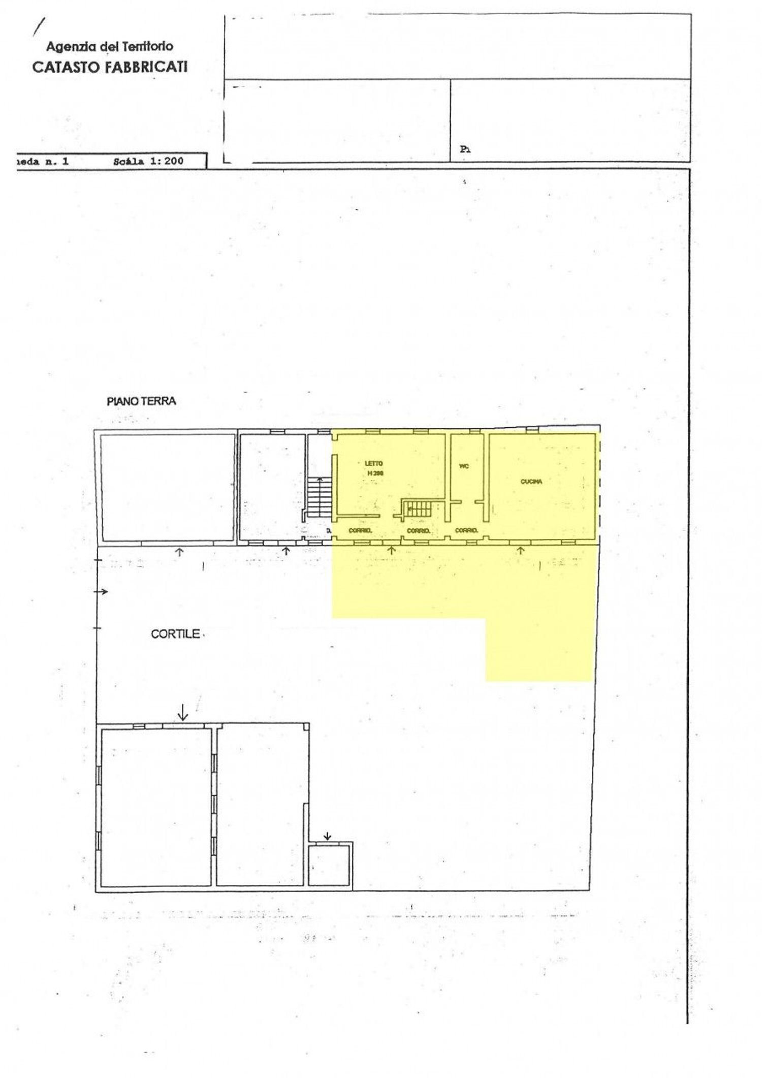
Scopri un'opportunità unica nel cuore di Castiglione delle Stiviere, nella tranquilla zona Astore. Proponiamo in vendita un rustico cascina indipendente su due livelli, immerso nelle colline che portano verso il lago. Con una superficie totale di 140 mq, questa affascinante proprietà è composta da tre ampie stanze al piano terra e uno spazio equivalente al piano superiore. La casa si trova all'interno di una corte privata con posti auto disponibili, garantendo privacy e tranquillità. L'immobile presenta muri e solette in buone condizioni strutturali; tuttavia, necessita di ristrutturazione per quanto riguarda gli impianti elettrici e idraulici, i pavimenti, i bagni, i serramenti ed il tetto. Questa è l'occasione perfetta per personalizzare la tua nuova casa secondo il tuo gusto personale! La posizione strategica offre facile accesso ai servizi locali mentre ti permette di godere della bellezza naturale circostante. Il borghetto conserva un'atmosfera autentica ed è ideale per chi cerca pace e relax lontano dal caos cittadino. Non perdere questa opportunità! Contatta ci subito al per ulteriori informazioni o per fissare una visita alla proprietà. "Dati e immagini hanno valore indicativo e saranno confermati in sede di appuntamento. Le foto possono includere render illustrativi; l'indirizzo indica la zona e non l'ubicazione precisa. ".
Dati principali
| Riferimento | 2635 |
| Data annuncio | 04/04/2026 |
| Contratto | Vendita |
| Tipologia | Rustico |
| Superficie | 140 m2 |
| Locali | 4 (2 camere da letto, 2 altro), 1 bagno, cucina abitabile |
| Piano | Su più livelli, 2 totali |
| Occupato | Libero |
| Box auto | Assente |
| Numero posti auto | 2 |
| Arredamento | Assente |
Costi
| Prezzo | 125.000 € |
| Prezzo al m2 | 893 €/m2 |
Efficienza energetica
| Stato | Da ristrutturare |
| Riscaldamento | Assente |
| Tipo Alimentazione Riscaldamento | Altro |
| Classe energetica | G |
| Indice di prestazione energetica (IPE) | 175 kWh/m2 anno |
Planimetrie
Virtual tour
Video
Indirizzo e mappa
Morti dell'Astore, Castiglione delle Stiviere
Annuncio senza mappa,
prova a chiedere la posizione all'inserzionista
prova a chiedere la posizione all'inserzionista
Calcolo mutuo
Prezzo di vendita:
Anticipo
20,00
Mutuo
80,00
Tasso: -+
Rata: 357 al mese
I risultati sono una stima indicativa basata sui dati inseriti e non costituiscono un’offerta finanziaria.
Inserzionista
Network immobiliare
Corso Giuseppe Garibaldi 64, Lonato del Garda
Mostra Telefono
Mostra Cellulare
Chiama
CONTATTA

