Rustico Morti dell'Astore, Castiglione delle Stiviere
€ 350.000
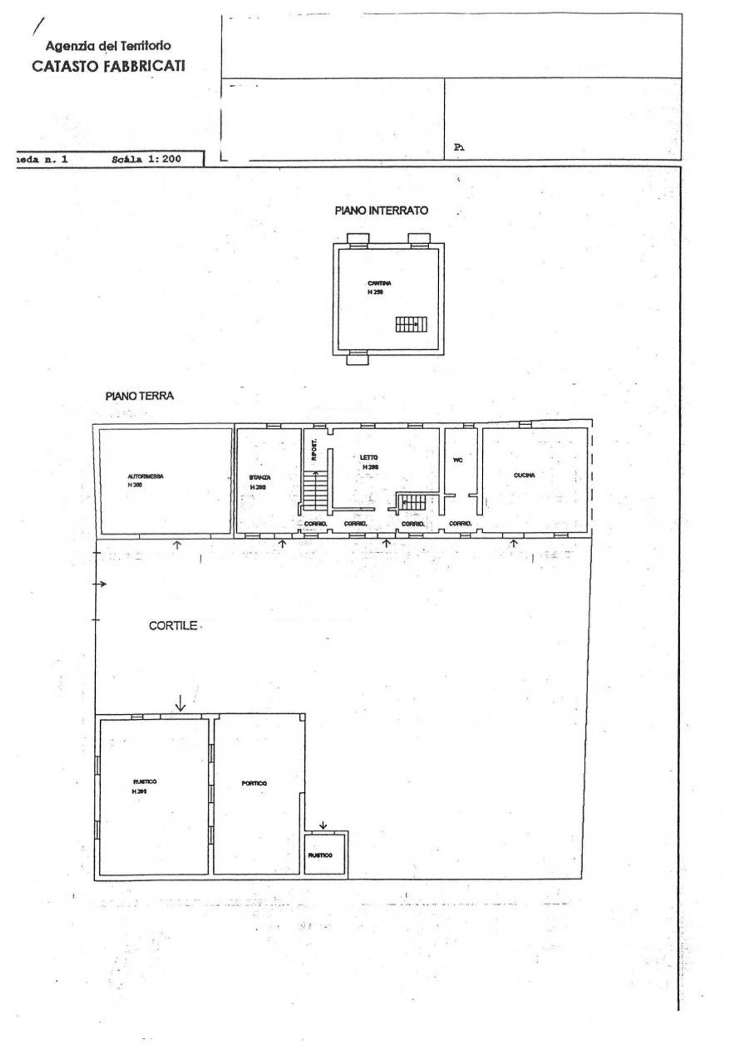
Scopri questo affascinante rustico cascina situato nel pittoresco comune di Castiglione delle Stiviere, nella zona Astore. Con una metratura generosa di ben 700 mq coperti, questa proprietà rappresenta un'opportunità unica per gli amanti della natura e del design rurale. Immerso nelle colline che collegano Castiglione e Desenzano, il casale dispone di una vasta corte interna che offre un'atmosfera serena e tranquilla. L'immobile si sviluppa su tre corpi di fabbrica: l'abitazione principale supera i 140 mq ed è affiancata da uno stabile laterale con porticato e fienili spaziosi. Questi elementi ti permetteranno di personalizzare lo spazio secondo le tue esigenze. È importante notare che la struttura necessita di ristrutturazione completa ad eccezione dei muri esterni; tuttavia, ciò rappresenta anche un'opportunità imperdibile per creare la tua residenza ideale o magari trasformarla in uno splendido B&B. La posizione strategica permette facilmente di raggiungere il lago in soli 15 minuti d'auto. Il borghetto antico circostante regala charme storico e tranquillità, immerso nelle verdi campagne castiglionesi. Questo casale è perfetto non solo per più famiglie alla ricerca della loro oasi privata ma anche come B&B grazie alle sue generose dimensioni. Non perdere questa incredibile occasione! Contattaci al oggi stesso per maggiori informazioni o per organizzare una visita. "Dati e immagini hanno valore indicativo e saranno confermati in sede di appuntamento. Le foto possono includere render illustrativi; l'indirizzo indica la zona e non l'ubicazione precisa. ".
Dati principali
| Riferimento | 2634 |
| Data annuncio | 04/04/2026 |
| Contratto | Vendita |
| Tipologia | Rustico |
| Superficie | 700 m2 |
| Locali | più di 5 (2 camere da letto, 8 altro), 1 bagno, cucina abitabile |
| Piano | Su più livelli, 3 totali |
| Occupato | Libero |
| Box auto | Doppio |
| Numero posti auto | 4 |
Caratteristiche
Costi
| Prezzo | 350.000 € |
| Prezzo al m2 | 500 €/m2 |
Efficienza energetica
| Stato | Da ristrutturare |
| Riscaldamento | Assente |
| Tipo Alimentazione Riscaldamento | Altro |
| Classe energetica | G |
| Indice di prestazione energetica (IPE) | 175 kWh/m2 anno |
Planimetrie
Virtual tour
Indirizzo e mappa
Morti dell'Astore, Castiglione delle Stiviere
Annuncio senza mappa,
prova a chiedere la posizione all'inserzionista
prova a chiedere la posizione all'inserzionista
Calcolo mutuo
Prezzo di vendita:
Anticipo
20,00
Mutuo
80,00
Tasso: -+
Rata: 1.001 al mese
I risultati sono una stima indicativa basata sui dati inseriti e non costituiscono un’offerta finanziaria.
Inserzionista
Network immobiliare
Corso Giuseppe Garibaldi 64, Lonato del Garda
Mostra Telefono
Mostra Cellulare
Chiama
CONTATTA

