Capannone Via Prenestina Nuova 307/A, Palestrina
€ 1.800.000
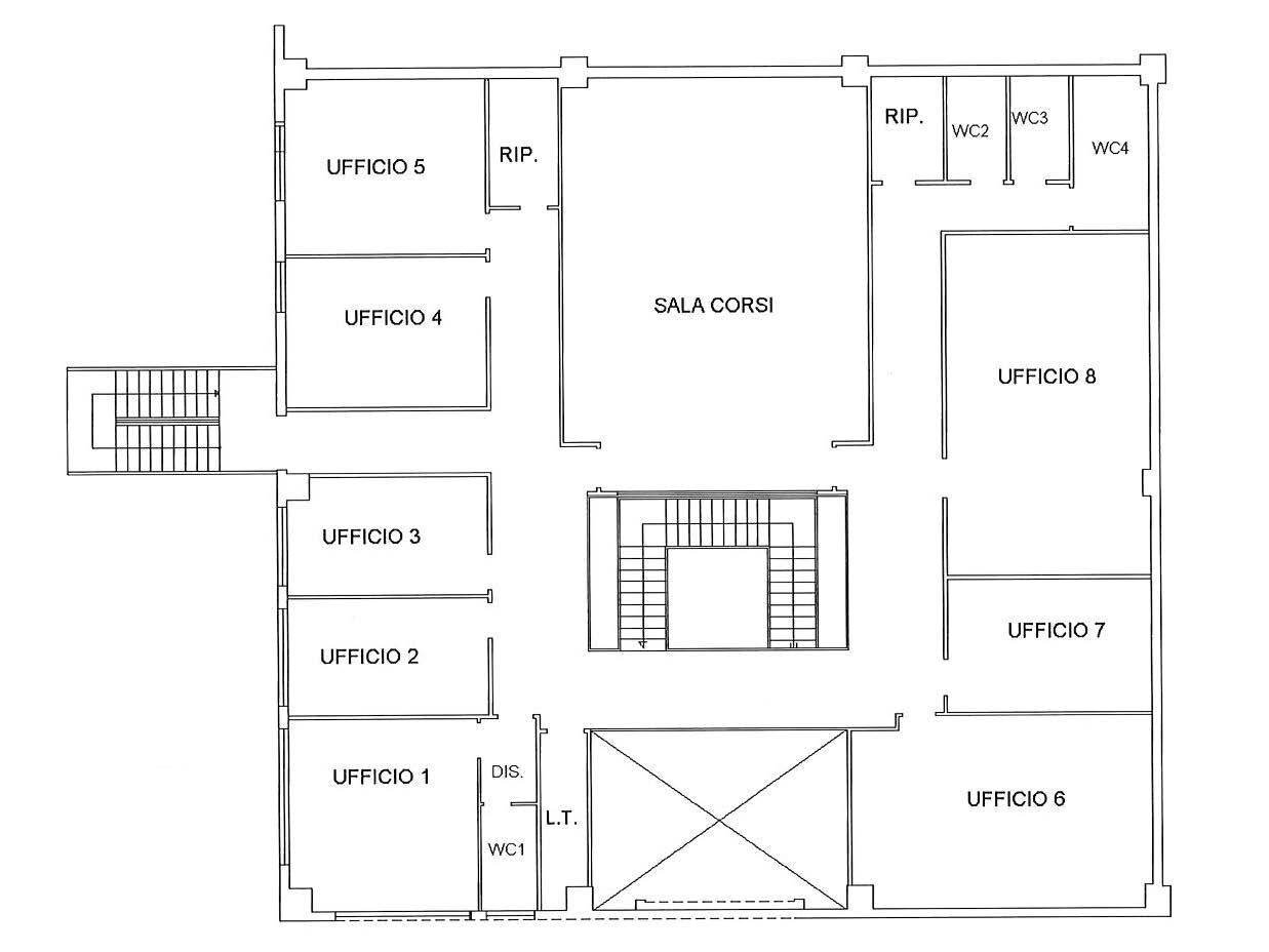
Proponiamo in vendita un interessante compendio immobiliare a destinazione industriale/commerciale situato nell'area industriale di Palestrina, Città Metropolitana di Roma, in posizione strategica e facilmente accessibile. L'immobile si sviluppa su due livelli per una distribuzione degli spazi funzionale e versatile. Al piano terra troviamo una comoda area reception, servizi igienici, un ampio magazzino di circa 300 mq con altezza interna di 4,20 metri, ideale per attività di stoccaggio e logistica, oltre ad un locale commerciale di circa 100 mq destinato alla vendita diretta al pubblico. Il piano primo ospita la zona direzionale composta da 8 uffici tutti finestrati, una spaziosa sala corsi perfetta per attività formative o riunioni aziendali, oltre a ulteriori servizi igienici. Completa la proprietà un ampio piazzale esterno di circa 1.300 mq, completamente recintato, che garantisce facilità di manovra e parcheggio per mezzi e clienti. All'interno dell'area è stata inoltre installata regolarmente una tendostruttura di circa 200 mq, ideale come ulteriore spazio operativo o deposito coperto. La soluzione si presta perfettamente per aziende di produzione, logistica, commercio all'ingrosso, showroom, attività artigianali o sedi operative con uffici direzionali. Ottima opportunità per chi cerca una struttura funzionale, pronta all'uso e ben collegata con le principali vie di comunicazione.
Dati principali
| Riferimento | 107 |
| Data annuncio | 04/04/2026 |
| Contratto | Vendita |
| Tipologia | Capannone |
| Superficie | 1050 m2 |
| Occupato | Libero |
Costi
| Prezzo | 1.800.000 € |
| Prezzo al m2 | 1.714 €/m2 |
Efficienza energetica
| Stato | Ottimo |
| Tipo Alimentazione Riscaldamento | Altro |
| Classe energetica | F |
| Indice di prestazione energetica (IPE) | 216 kWh/m2 anno |
Planimetrie
Indirizzo e mappa
Via Prenestina Nuova
307/A, Palestrina
Annuncio senza mappa,
prova a chiedere la posizione all'inserzionista
prova a chiedere la posizione all'inserzionista
Calcolo mutuo
Prezzo di vendita:
Anticipo
20,00
Mutuo
80,00
Tasso: -+
Rata: 5.148 al mese
I risultati sono una stima indicativa basata sui dati inseriti e non costituiscono un’offerta finanziaria.
Inserzionista

Effe Immobiliare s.r.l.
Piazza Europa, 11, Valmontone
Mostra Telefono
Mostra Cellulare
Chiama
CONTATTA

