Trilocale Strada prima, Segrate
€ 485.000Trilocale in vendita
San Felice - Prima Strada
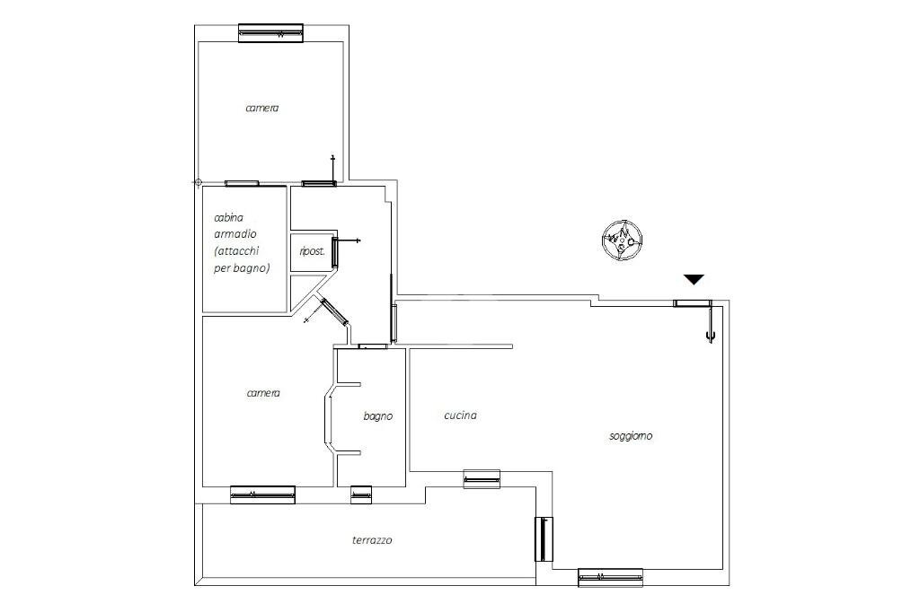
In palazzina di 4 piani, completamente ristrutturata con cappotto, luminoso appartamento sito al primo piano, composto da ingresso, soggiorno con cucina a vista, ampio terrazzo di mq. 18 camera matriomoniale con annessa cabina armadio (ex bagno), seconda camera con uscita sul terrazzo, bagno finestrato con doccia e ripostiglio. Ristrutturato con pavimenti in parquet, infissi alluminio con doppi vetri, zanzariere, tapparelle motorizzate, grate e aria condizionata. Completa la proprietà il solaio.
Disponibile box doppio nello stabile.
In palazzina di 4 piani, completamente ristrutturata con cappotto, luminoso appartamento sito al primo piano, composto da ingresso, soggiorno con cucina a vista, ampio terrazzo di mq. 18 camera matriomoniale con annessa cabina armadio (ex bagno), seconda camera con uscita sul terrazzo, bagno finestrato con doccia e ripostiglio. Ristrutturato con pavimenti in parquet, infissi alluminio con doppi vetri, zanzariere, tapparelle motorizzate, grate e aria condizionata. Completa la proprietà il solaio.
Disponibile box doppio nello stabile.
Dati principali
| Riferimento | 61200853 |
| Data annuncio | 03/04/2026 |
| Contratto | Vendita |
| Tipologia | Appartamento |
| Superficie | 120 m2 |
| Locali | 3 (3 altro), 1 bagno |
| Piano | 1 di 4 totali |
Costi
| Prezzo | 485.000 € |
| Prezzo al m2 | 4.042 €/m2 |
Efficienza energetica
| Anno costruzione | 1970 |
| Riscaldamento | Centralizzato |
| Tipo Alimentazione Riscaldamento | Metano |
| Classe energetica | G |
| Indice di prestazione energetica (EP GL, REN) | 231 kWh/m3 anno |
Planimetrie
Indirizzo e mappa
Strada prima, Segrate
Calcolo mutuo
Prezzo di vendita:
Anticipo
20,00
Mutuo
80,00
Tasso: -+
Rata: 1.387 al mese
I risultati sono una stima indicativa basata sui dati inseriti e non costituiscono un’offerta finanziaria.
Inserzionista
Chiama
CONTATTA

