Villa Bifamiliare passo soprano, Avegno
€ 180.000
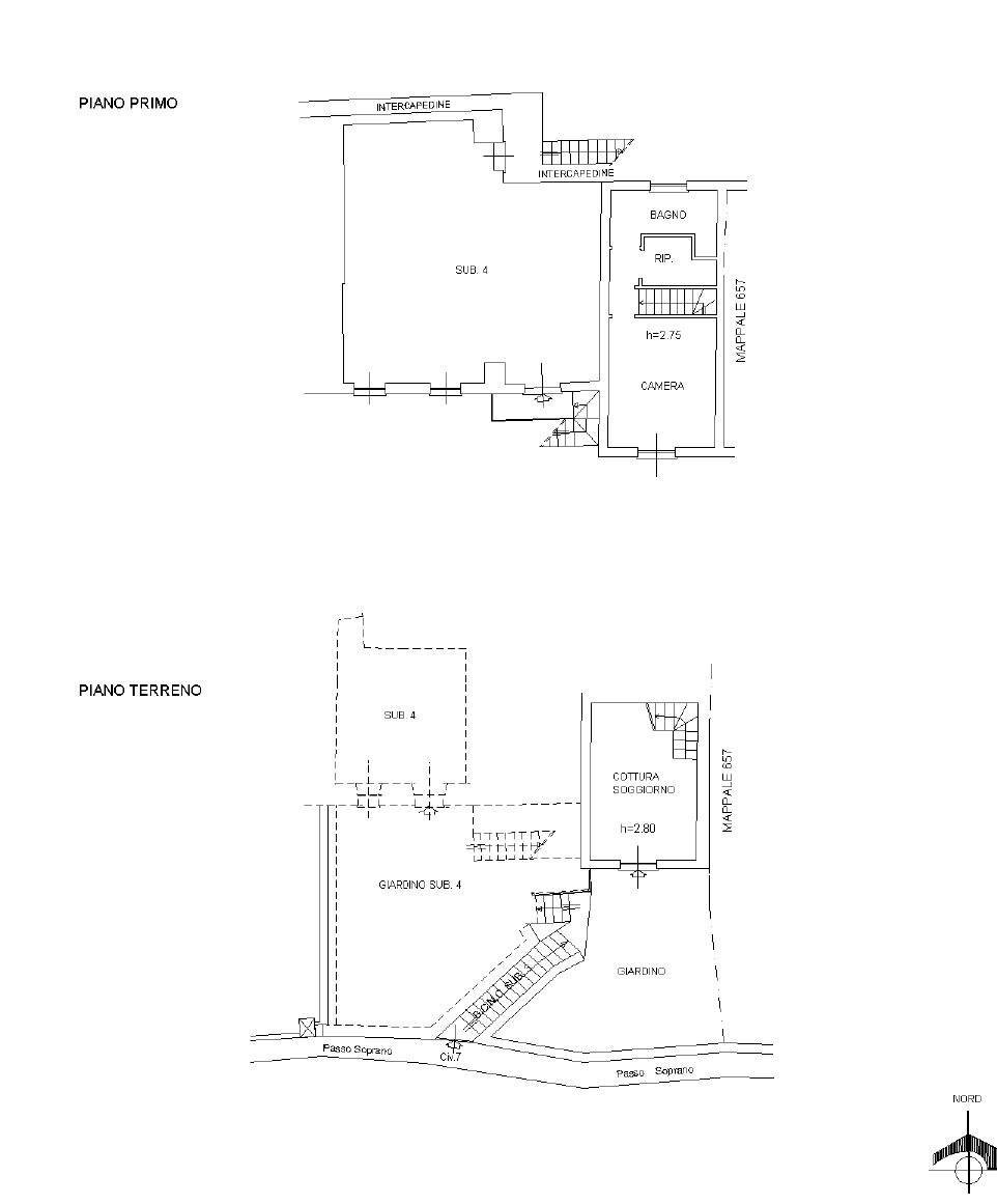
Proponiamo in vendita sulle prime alture di Recco, in una tipica costruzione in stile ligure, uno stupendo appartamento bilivello, perfetto come abitazione principale o per essere valorizzato con affitti brevi e stagionali. Limmobile gode di accesso privato su un ampio cortile di proprietà, ideale per godersi momenti allaperto in totale relax. Lingresso si apre su un luminoso soggiorno con angolo cottura, funzionale e accogliente per una vita quotidiana pratica e piacevole. Tramite una caratteristica scala interna in ardesia si accede al primo piano, dove troviamo una camera matrimoniale, una cameretta e un comodo bagno. Prezzo di vendita richiesto: 180.000. Riferimento annuncio: V1840 C.E: in fase di calcolo
Dati principali
| Riferimento | V1840 |
| Data annuncio | 03/04/2026 |
| Contratto | Vendita |
| Tipologia | Villa Bifamiliare |
| Superficie | 65 m2 |
| Locali | 3 (2 camere da letto, 1 altro), 1 bagno, cucina angolo cottura |
| Piano | Su più livelli, 2 totali |
| Occupato | Libero |
| Box auto | Assente |
| Arredamento | Completo |
Caratteristiche
Costi
| Prezzo | 180.000 € |
| Prezzo al m2 | 2.769 €/m2 |
Efficienza energetica
| Stato | Ottimo |
| Riscaldamento | Autonomo |
| Classe energetica | G |
| Indice di prestazione energetica (IPE) | - |
Planimetrie
Indirizzo e mappa
passo soprano, Avegno
Annuncio senza mappa,
prova a chiedere la posizione all'inserzionista
prova a chiedere la posizione all'inserzionista
Calcolo mutuo
Prezzo di vendita:
Anticipo
20,00
Mutuo
80,00
Tasso: -+
Rata: 515 al mese
I risultati sono una stima indicativa basata sui dati inseriti e non costituiscono un’offerta finanziaria.
Inserzionista

HABITAT IMMOBILIARE
VIA PALOECAPA 2R, Savona
Mostra Cellulare
Chiama
CONTATTA

