Rustico Via Argini, Minerbio
€ 180.000ZONA LOVOLETO/ VIA FERRARESE/ MINERBIO MINERBIO
tipica casa colonica con ampio giardino/ terreno privato
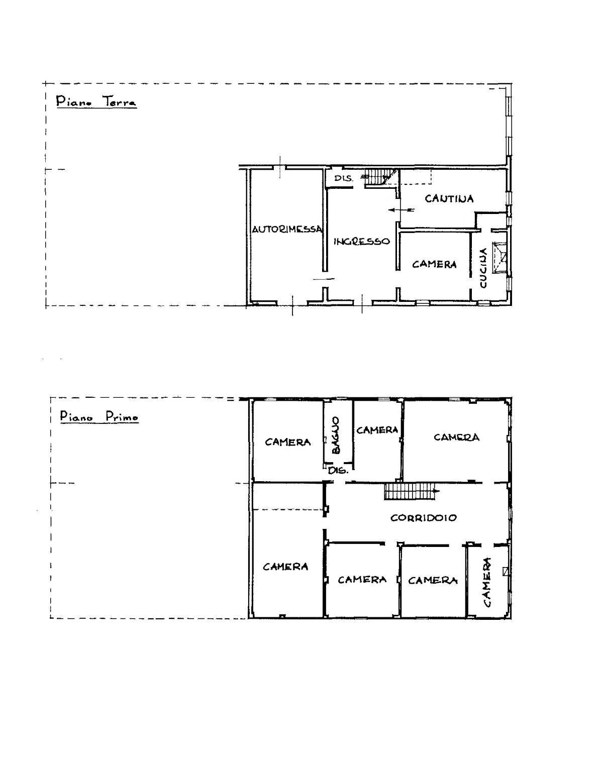
caratteristica casa colonica completamente indipendente di mq. 350 circa, da ristrutturare, con annesso fienile/ porticato e stalla originale con soffitto a volta.
l'immobile si trova a pochi minuti da bologna, adiacente alla via ferrarese, ma in posizione leggermente ribassata alla strada, quindi comoda, tranquilla e immersa nel verde circostante di circa mq. 1500, ed e' cosi' disposta: al piano terra ingresso/ soggiorno, sala pranzo, cucina e ripostiglio, il tutto collegabile a fienile/ porticato e stalla; al primo piano: ampio corridoio, bagno e sette camere (con tipiche travi a vista) che si presentano ad essere disposte e sfruttate in svariati modi a seconda delle proprie esigenze.
autorimessa di mq. 40 circa e cantina.
piccolo rudere riedificabile.
soluzione adatta ad abitazione singola o genitori/ figli o attivita' varie.
€ 180.000
caratteristica casa colonica completamente indipendente di mq. 350 circa, da ristrutturare, con annesso fienile/ porticato e stalla originale con soffitto a volta.
l'immobile si trova a pochi minuti da bologna, adiacente alla via ferrarese, ma in posizione leggermente ribassata alla strada, quindi comoda, tranquilla e immersa nel verde circostante di circa mq. 1500, ed e' cosi' disposta: al piano terra ingresso/ soggiorno, sala pranzo, cucina e ripostiglio, il tutto collegabile a fienile/ porticato e stalla; al primo piano: ampio corridoio, bagno e sette camere (con tipiche travi a vista) che si presentano ad essere disposte e sfruttate in svariati modi a seconda delle proprie esigenze.
autorimessa di mq. 40 circa e cantina.
piccolo rudere riedificabile.
soluzione adatta ad abitazione singola o genitori/ figli o attivita' varie.
€ 180.000
Dati principali
| Riferimento | ID3014135 |
| Data annuncio | 02/04/2026 |
| Contratto | Vendita |
| Tipologia | Rustico |
| Superficie | 1100 m2 |
| Locali | più di 5 (7 camere da letto, 3 altro), 1 bagno, cucina abitabile |
| Piano | Terra, 1 totali |
| Numero box | 2 |
Caratteristiche
Costi
| Prezzo | 180.000 € |
| Prezzo al m2 | 164 €/m2 |
Efficienza energetica
| Anno costruzione | 1930 |
| Riscaldamento | Autonomo |
| Tipo Impianto Di Riscaldamento | a radiatori |
| Tipo Alimentazione Riscaldamento | Metano |
| Classe energetica | G |
| Indice di prestazione energetica (IPE) | 175 kWh/m2 anno |
Planimetrie
Indirizzo e mappa
Via Argini, Minerbio
Calcolo mutuo
Prezzo di vendita:
Anticipo
20,00
Mutuo
80,00
Tasso: -+
Rata: 515 al mese
I risultati sono una stima indicativa basata sui dati inseriti e non costituiscono un’offerta finanziaria.
Inserzionista

Immobiliare Margherita Marini
Via D'Azeglio 46, Bologna
Mostra Telefono
Chiama
CONTATTA

