Capannone Via Flaminia 116, Rimini
€ 2.100.000VIA FLAMINIA RIMINI
in posizione strategica e di grande passaggio, proponiamo in vendita ampio capannone indipendente situato sulla via flaminia, una delle principali arterie di collegamento tra il centro di rimini, il casello autostradale di rimini sud e l’aeroporto “fellini”.
la posizione garantisce massima visibilità e facile accessibilità da ogni direzione.
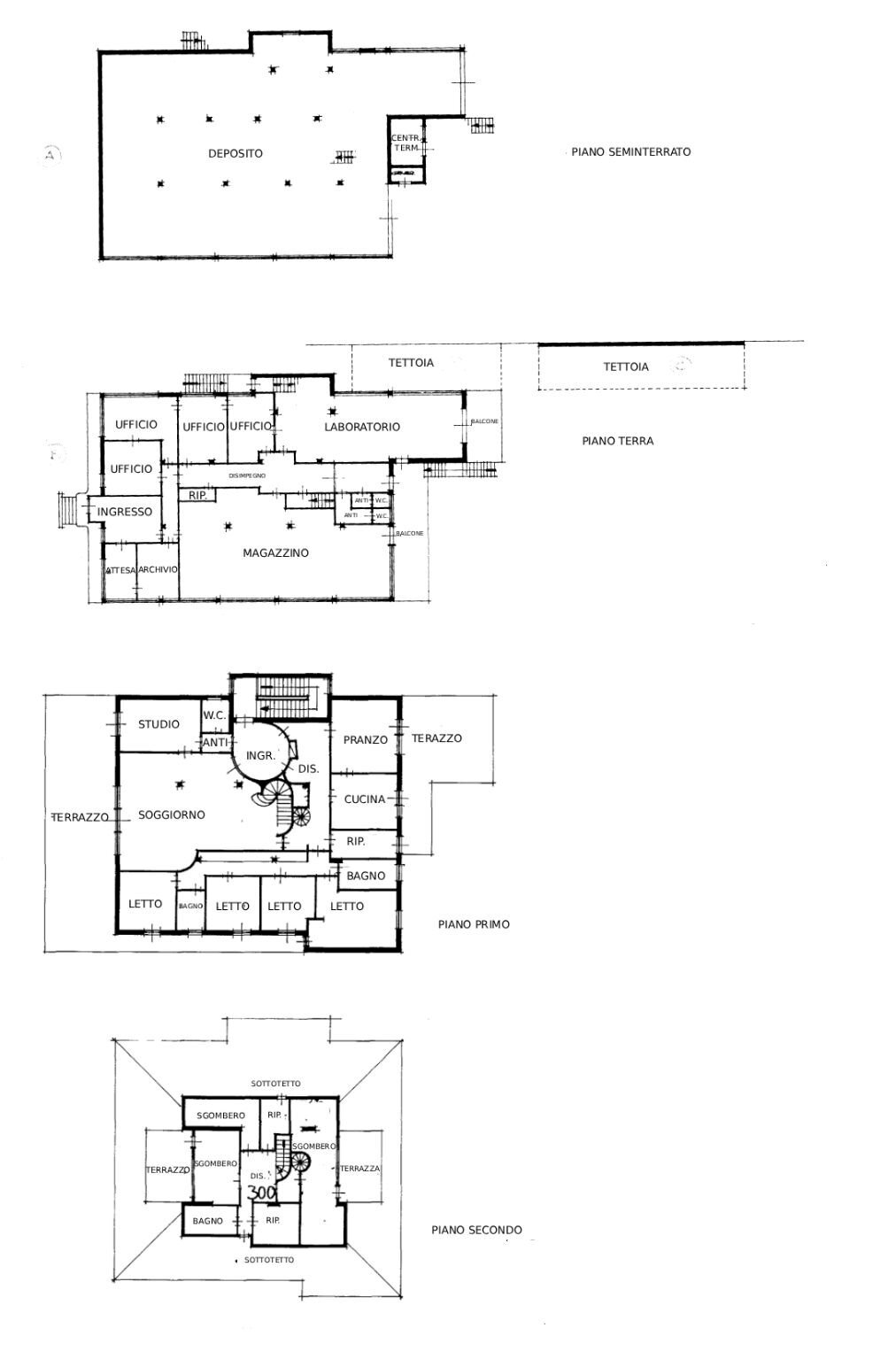
l’immobile si sviluppa su tre livelli per una superficie complessiva di 1.600 mq circa, offrendo spazi funzionali e versatili.
piano interrato ad uso laboratorio e deposito merci, mentre il piano terra è ad uso ufficio per un totale di mq. 1.050 circa
al piano superiore troviamo invece un appartamento disposto su due livelli di circa mq. 500 circa con ampie terrazze abitabili.
sul retro del fabbricato è presente un ampio piazzale, perfetto per manovre di carico e scarico o come area di rimessaggio e deposito materiali.
grazie, agli spazi generosi e alla posizione privilegiata, questo immobile rappresenta una soluzione ideale per aziende che necessitano di una sede operativa di rappresentanza, logisticamente comoda e ben collegata.
la posizione garantisce massima visibilità e facile accessibilità da ogni direzione.
l’immobile si sviluppa su tre livelli per una superficie complessiva di 1.600 mq circa, offrendo spazi funzionali e versatili.
piano interrato ad uso laboratorio e deposito merci, mentre il piano terra è ad uso ufficio per un totale di mq. 1.050 circa
al piano superiore troviamo invece un appartamento disposto su due livelli di circa mq. 500 circa con ampie terrazze abitabili.
sul retro del fabbricato è presente un ampio piazzale, perfetto per manovre di carico e scarico o come area di rimessaggio e deposito materiali.
grazie, agli spazi generosi e alla posizione privilegiata, questo immobile rappresenta una soluzione ideale per aziende che necessitano di una sede operativa di rappresentanza, logisticamente comoda e ben collegata.
Dati principali
| Riferimento | ID3013683 |
| Data annuncio | 02/04/2026 |
| Contratto | Vendita |
| Tipologia | Capannone |
| Superficie | 1650 m2 |
| Locali | più di 5 (6 altro), 3 bagni |
| Piano | Terra, 2 totali |
| Numero posti auto | 10 |
Costi
| Prezzo | 2.100.000 € |
| Prezzo al m2 | 1.273 €/m2 |
Efficienza energetica
| Stato | Ristrutturato |
| Riscaldamento | Autonomo |
| Tipo Impianto Di Riscaldamento | a radiatori |
| Tipo Alimentazione Riscaldamento | Metano |
| Classe energetica | Immobile esente da certificazione energetica |
Planimetrie
Indirizzo e mappa
Via Flaminia 116, Rimini
Calcolo mutuo
Prezzo di vendita:
Anticipo
20,00
Mutuo
80,00
Tasso: -+
Rata: 6.006 al mese
I risultati sono una stima indicativa basata sui dati inseriti e non costituiscono un’offerta finanziaria.
Inserzionista

Immobiliare Margherita Marini
Via D'Azeglio 46, Bologna
Mostra Telefono
Chiama
CONTATTA

