Trilocale Via Del Caravaggio 5, Pedrengo
€ 350.000
PEDRENGO - ZONA RESIDENZIALE
Atmosfera Case propone in Esclusiva, in palazzina recente, strepitoso appartamento Trilocale posto a piano terra che gode di un'ottima esposizione e di un ampissimo giardino privato su tre lati con porticato esclusivo e riservato.
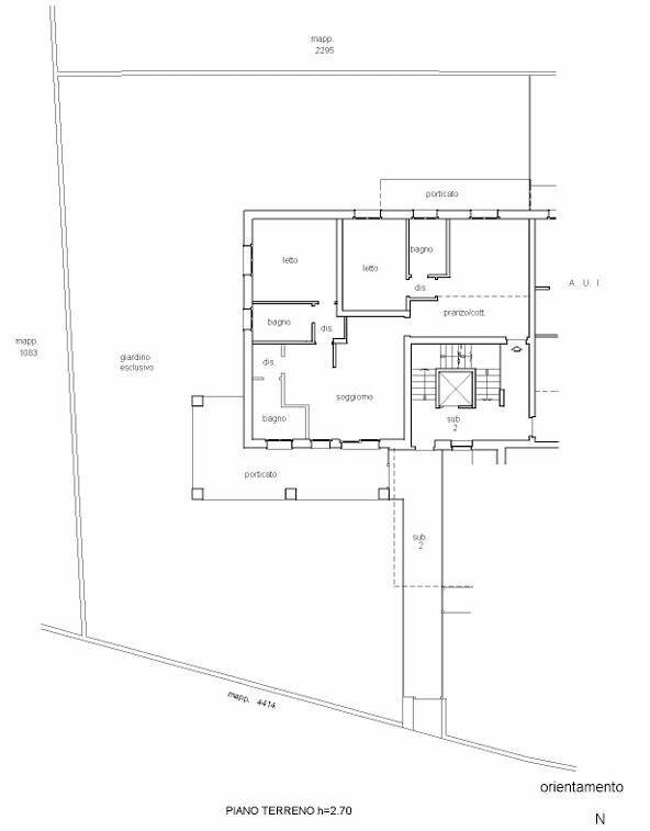
La soluzione è così disposta: ingresso su sala da pranzo con cucina a vista, grande e luminosissima zona giorno a living con accesso diretto all'area esterna, disimpegno zona notte, primo bagno di servizio finestrato con doccia, due camere da letto matrimoniali entrambe con bagno privato finestrato e con doccia.
Riscaldamento a pavimento, pannelli fotovoltaici, impianto aria condizionata già installato, Ventilazione Meccanica Controllata, impianto allarme, controllo della temperatura da tutti gli ambienti e videocitofono.
Completa la proprietà una cantina e la possibilità di acquistare n. 3 autorimesse nello stesso complesso.
L'immobile oggi presenta con n. 3 camere da letto in quanto adibito a servizio B&B già avviato.
Atmosfera Case propone in Esclusiva, in palazzina recente, strepitoso appartamento Trilocale posto a piano terra che gode di un'ottima esposizione e di un ampissimo giardino privato su tre lati con porticato esclusivo e riservato.
La soluzione è così disposta: ingresso su sala da pranzo con cucina a vista, grande e luminosissima zona giorno a living con accesso diretto all'area esterna, disimpegno zona notte, primo bagno di servizio finestrato con doccia, due camere da letto matrimoniali entrambe con bagno privato finestrato e con doccia.
Riscaldamento a pavimento, pannelli fotovoltaici, impianto aria condizionata già installato, Ventilazione Meccanica Controllata, impianto allarme, controllo della temperatura da tutti gli ambienti e videocitofono.
Completa la proprietà una cantina e la possibilità di acquistare n. 3 autorimesse nello stesso complesso.
L'immobile oggi presenta con n. 3 camere da letto in quanto adibito a servizio B&B già avviato.
Dati principali
| Riferimento | 1043 |
| Data annuncio | 02/04/2026 |
| Contratto | Vendita |
| Tipologia | Appartamento |
| Superficie | 160 m2 |
| Locali | 3 (2 camere da letto, 1 altro), 3 bagni, cucina abitabile |
| Piano | Terra, 2 totali |
| Tipo di costruzione | Signorile |
| Occupato | Libero |
| Box auto | Triplo |
| Arredamento | Parziale |
Caratteristiche
Costi
| Prezzo | 350.000 € |
| Prezzo al m2 | 2.188 €/m2 |
Efficienza energetica
| Stato | Ottimo |
| Riscaldamento | Semi-autonomo |
| Tipo Impianto Di Riscaldamento | a pavimento |
| Classe energetica | Immobile esente da certificazione energetica |
Planimetrie
Indirizzo e mappa
Via Del Caravaggio
5, Pedrengo
Annuncio senza mappa,
prova a chiedere la posizione all'inserzionista
prova a chiedere la posizione all'inserzionista
Calcolo mutuo
Prezzo di vendita:
Anticipo
20,00
Mutuo
80,00
Tasso: -+
Rata: 1.001 al mese
I risultati sono una stima indicativa basata sui dati inseriti e non costituiscono un’offerta finanziaria.
Inserzionista

Atmosfera Case
Via Bianzana, 3, Bergamo
Mostra Telefono
Chiama
CONTATTA

