Bilocale via Romana 56, Bordighera
€ 298.000
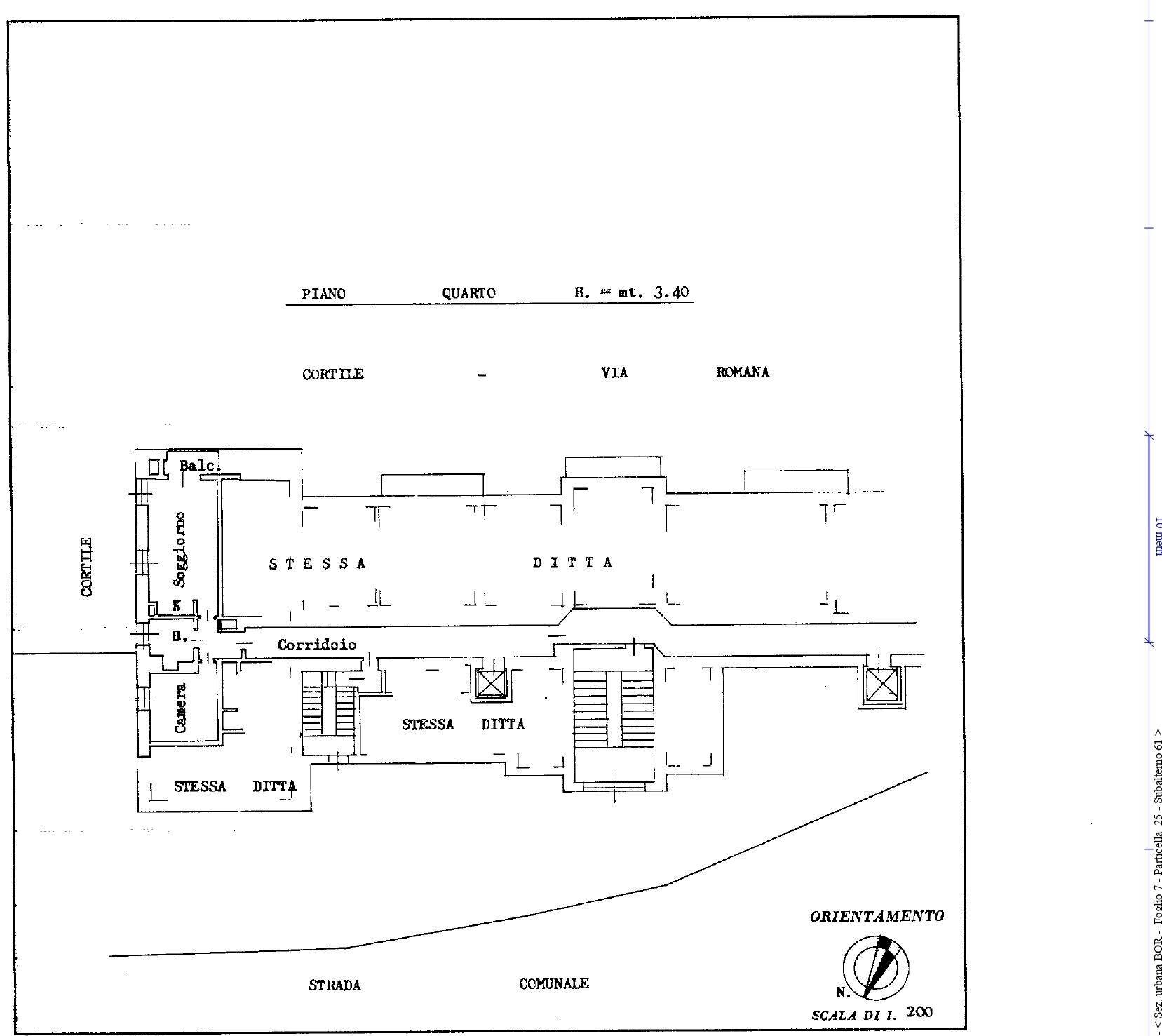
Bordighera, via Romana, in stabile molto Signorile con piscina condominiale, giardino comune e doppio ascensore, si propone in vendita interessante appartamento panoramico sito al quarto piano, con riscaldamento autonomo. Il bilocale, in discrete condizioni conservative, è composto da ingresso, ampio e luminoso soggiorno living con angolo cottura ed accesso al balcone panoramico, generosa camera da letto e bagno finestrato. Lo stabile è stato oggetto di interventi straordinari quale il rifacimento della facciata, e la sostituzione della centrale termica. L'appartamento è l'ideale sia per chi ricerca una seconda casa per le vacanze, sia per residenti in cerca di una prima casa, considerata la centralità, la comodità a tutti i servizzi e la vicinanza alla splendida spiaggia locale. Completa la proprietà un posto auto al piano interrato.
Dati principali
| Riferimento | 115910 |
| Data annuncio | 02/04/2026 |
| Contratto | Vendita |
| Tipologia | Appartamento |
| Superficie | 56 m2 |
| Locali | 2 (1 camera da letto, 1 altro), 1 bagno, cucina a vista |
| Piano | 4 |
| Tipo di costruzione | Signorile |
| Occupato | Libero |
| Box auto | Singolo |
Caratteristiche
Costi
| Prezzo | 298.000 € |
| Prezzo al m2 | 5.321 €/m2 |
| Spese Riscaldamento | € 18,00/anno |
Efficienza energetica
| Stato | Buono |
| Riscaldamento | Autonomo |
| Classe energetica | E |
| Indice di prestazione energetica (IPE) | 56 kWh/m2 anno |
Planimetrie
Indirizzo e mappa
via Romana
56, Bordighera
Annuncio senza mappa,
prova a chiedere la posizione all'inserzionista
prova a chiedere la posizione all'inserzionista
Calcolo mutuo
Prezzo di vendita:
Anticipo
20,00
Mutuo
80,00
Tasso: -+
Rata: 852 al mese
I risultati sono una stima indicativa basata sui dati inseriti e non costituiscono un’offerta finanziaria.
Inserzionista

HASTON & ASTON S.N.C.
Via Pietro Micca, 21, Torino
Mostra Telefono
Chiama
CONTATTA

