Trilocale Via San Luigi, Giaveno
€ 249.000Trilocale in vendita
GIAVENO: In Via San Luigi, in zona caratterizzata da una vista panoramica unica nel suo genere, appartamento con giardino e doppio box auto, in complesso di recente costruzione dotato di ascensore e privo di barriere architettoniche.
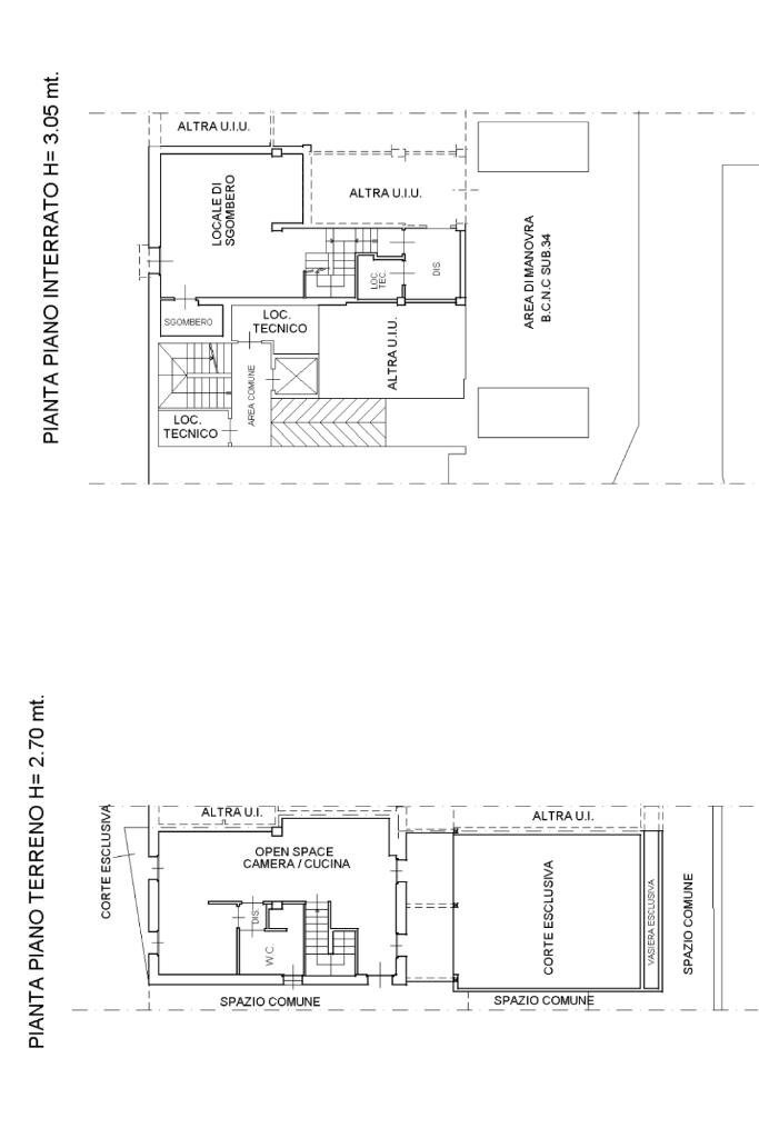
L'alloggio si dispone su due livelli, al piano terra la zona giorno composta da un unico opena space con cucina a vista e doppia aria che affaccia fronte retro sul giardino privato dell'abitazione. Sul fronte, una zona relax esposta a sud con tendaggi, mentre sul retro un'ampia veranda ed una zona barbecue. Sempre al piano vi è un bagno con doccia ed una camera singola. Al piano interrato, collegato da scala interna in muratura, un ampio locale tavernetta con bagno privato.
A completare la proprietà i due box auto da 20mq ciascuno ed il locale tecnico dove alloggia una pompa di calore alimentata da pannelli solari per la produzione di acqua calda.
Il riscaldamento, autonomo a metano, è a pavimento ed è inoltre presente l'impianto di climatizzazione.
L'alloggio si dispone su due livelli, al piano terra la zona giorno composta da un unico opena space con cucina a vista e doppia aria che affaccia fronte retro sul giardino privato dell'abitazione. Sul fronte, una zona relax esposta a sud con tendaggi, mentre sul retro un'ampia veranda ed una zona barbecue. Sempre al piano vi è un bagno con doccia ed una camera singola. Al piano interrato, collegato da scala interna in muratura, un ampio locale tavernetta con bagno privato.
A completare la proprietà i due box auto da 20mq ciascuno ed il locale tecnico dove alloggia una pompa di calore alimentata da pannelli solari per la produzione di acqua calda.
Il riscaldamento, autonomo a metano, è a pavimento ed è inoltre presente l'impianto di climatizzazione.
Dati principali
| Riferimento | 61199715 |
| Data annuncio | 01/04/2026 |
| Contratto | Vendita |
| Tipologia | Appartamento |
| Superficie | 123 m2 |
| Locali | 3 (3 altro), 2 bagni |
| Piano | 2 di 3 totali |
Costi
| Prezzo | 249.000 € |
| Prezzo al m2 | 2.024 €/m2 |
| Spese condominiali | € 83,00/mese |
Efficienza energetica
| Anno costruzione | 2016 |
| Riscaldamento | Autonomo |
| Tipo Alimentazione Riscaldamento | Metano |
| Classe energetica | Immobile esente da certificazione energetica |
Planimetrie
Indirizzo e mappa
Via San Luigi, Giaveno
Calcolo mutuo
Prezzo di vendita:
Anticipo
20,00
Mutuo
80,00
Tasso: -+
Rata: 712 al mese
I risultati sono una stima indicativa basata sui dati inseriti e non costituiscono un’offerta finanziaria.
Inserzionista
Agenzia Tecnocasa Studio Giaveno Sas
Via Roma, 54, Giaveno
Mostra Telefono
Chiama
CONTATTA

