Bilocale Corso Grosseto, 218, Torino
€ 93.000Appartamento in vendita a Torino corso Grosseto, 218
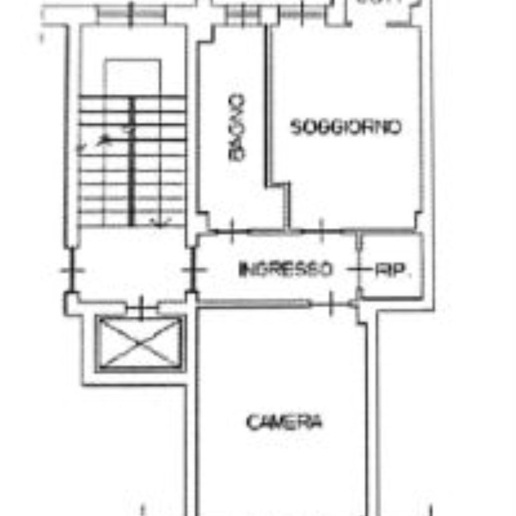
Il condominio degli anni '60 con ascensore si trova nelle vicinanze della "Stazione Torino Grosseto". L'appartamento è al sesto piano ed è caratterizzato dalle viste aperte e dalla doppia esposizione con due balconi. Si è accolti in un lungo ingresso. La zona giorno è composta da una ampia cucina dotata di un pratica zona cottura finestrata. La cucina ha un balcone chiuso con una veranda ad ante scorrevoli, regolarizzata sotto il profilo documentale. La camera da letto ha la pavimentazione in parquet ed affaccia con la porta finestra a tre ante sul balcone, dal quale si apprezza una gradevole vista aperta. Il balcone è dotato di tenda a rullo estiva. L'avvolgibile della camera è motorizzato. Il bagno ospita un ampio piatto doccia e la lavatrice. Al fondo dell'ingresso c'è un comodo ripostiglio. Il boiler a gas, recentemente sostituito, ed il contatore del gas sono installati sul balcone verandato della cucina. Gli infissi esterni sono tutti in alluminio con doppi vetri. La porta di ingresso è blindata. Il riscaldamento è centralizzato con termovalvole. C'è una cantina. Al piano interrato del condominio, comodamente raggiungibile con l'ascensore, è possibile acquistare separatamente un box auto di 14 mq. E' dotato di corrente con contatore individuale di consumo ed ha la serranda avvolgibile motorizzata. Le presenti informazioni non costituiscono elemento contrattuale. Tutte le fasi della compravendita sono seguite personalmente dai titolari di agenzia a tutela del servizio offerto.
Dati principali
| Riferimento | 127831196 |
| Data annuncio | 01/04/2026 |
| Contratto | Vendita |
| Tipologia | Appartamento |
| Superficie | 58 m2 |
| Locali | 2 (2 altro), 1 bagno |
Costi
| Prezzo | 93.000 € |
| Prezzo al m2 | 1.603 €/m2 |
Efficienza energetica
| Classe energetica | Immobile esente da certificazione energetica |
Planimetrie
Indirizzo e mappa
Corso Grosseto, 218, Torino
Calcolo mutuo
Prezzo di vendita:
Anticipo
20,00
Mutuo
80,00
Tasso: -+
Rata: 266 al mese
I risultati sono una stima indicativa basata sui dati inseriti e non costituiscono un’offerta finanziaria.
Inserzionista

Taos Immobili - Immobiliare c.d.r s.a.s.
Corso Giulio Cesare 99 bis, Torino
Mostra Telefono
Mostra Cellulare
Chiama
CONTATTA

