Appartamento Via Carso 7, Monterotondo
€ 260.000
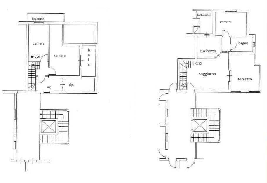
Monterotondo Scalo - via Carso, proponiamo in vendita un appartamento di 120 mq con terrazzo, posto auto coperto e posto auto scoperto. Limmobile si sviluppa su due livelli, situati al terzo e quarto piano di una palazzina in cortina di recente costruzione, dotata di ascensore. Il primo livello comprende un soggiorno con accesso a un terrazzo abitabile, un cucinotto con balcone di servizio, una camera matrimoniale e un bagno. Al livello superiore sono presenti due ulteriori camere matrimoniali, un secondo bagno e due balconi. La proprietà dispone di un posto auto coperto, raggiungibile direttamente tramite ascensore, e di un posto auto scoperto allinterno dellarea condominiale. Labitazione si presenta in ottime condizioni generali, con ambienti luminosi e dotazioni quali tende da sole, impianto di climatizzazione, grate di sicurezza e zanzariere. Lubicazione è in un contesto residenziale immerso nel verde, pur mantenendo la comodità di avere servizi e attività commerciali facilmente raggiungibili a piedi. Ideale per nuclei familiari numerosi o per chi necessita di spostarsi quotidianamente verso Roma, beneficiando della vicinanza alle principali vie di collegamento. Ape "C"
Dati principali
| Riferimento | CBI049-2946-919 |
| Data annuncio | 01/04/2026 |
| Contratto | Vendita |
| Tipologia | Appartamento |
| Superficie | 120 m2 |
| Locali | 4 (3 camere da letto, 1 altro), 2 bagni, cucina cucinino |
| Piano | Su più livelli, 4 totali |
| Tipo di costruzione | Media |
| Occupato | Libero |
| Box auto | Assente |
| Numero posti auto | 1 |
| Arredamento | Assente |
Caratteristiche
Costi
| Prezzo | 260.000 € |
| Prezzo al m2 | 2.167 €/m2 |
Efficienza energetica
| Stato | Ottimo |
| Riscaldamento | Autonomo |
| Classe energetica | C |
| Indice di prestazione energetica (IPE) | 64 kWh/m2 anno |
Planimetrie
Indirizzo e mappa
Via Carso
7, Monterotondo
Annuncio senza mappa,
prova a chiedere la posizione all'inserzionista
prova a chiedere la posizione all'inserzionista
Calcolo mutuo
Prezzo di vendita:
Anticipo
20,00
Mutuo
80,00
Tasso: -+
Rata: 744 al mese
I risultati sono una stima indicativa basata sui dati inseriti e non costituiscono un’offerta finanziaria.
Inserzionista

Coldwell Banker Eretum RE Group
Via Corsica 28, Monterotondo
Mostra Telefono
Mostra Cellulare
Chiama
CONTATTA

