Bilocale Via Alcide de Gasperi, Ivrea
€ 127.000Bilocale in vendita
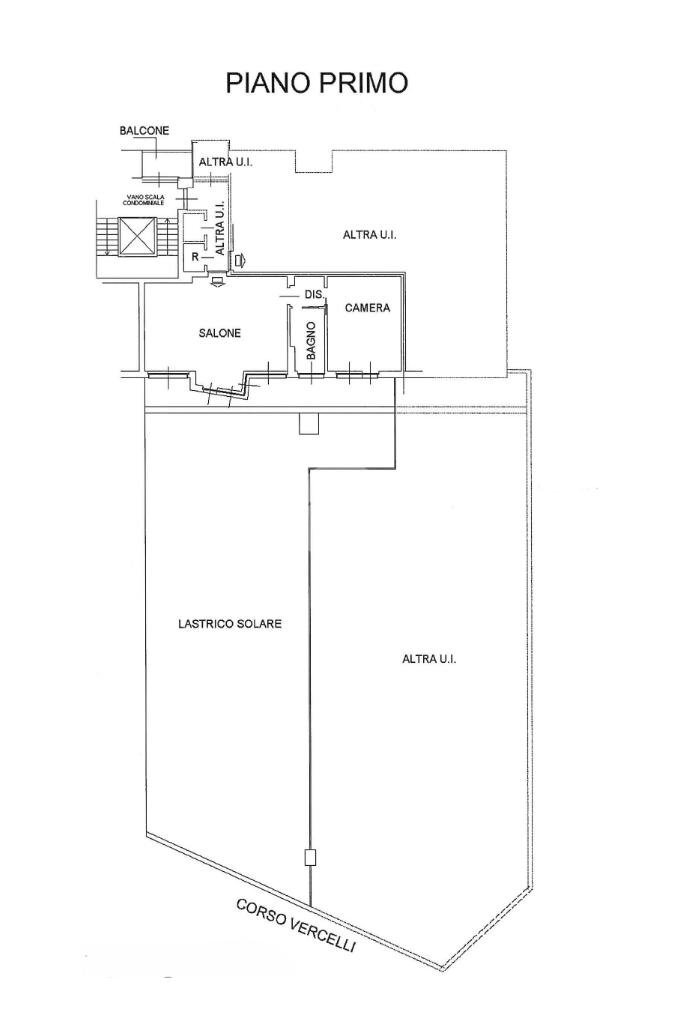
In zona San Lorenzo, comoda ai principali servizi, appartamento situato al primo piano di un contesto dotato di ascensore e privo di barriere architettoniche.
L’immobile, completamente ristrutturato nel 2014, è attualmente locato con regolare contratto, rappresentando un’interessante opportunità anche ad uso investimento.
L’ingresso, tramite porta blindata, conduce alla zona giorno composta da un soggiorno luminoso con angolo cottura; gli ambienti risultano ben distribuiti e particolarmente ariosi grazie all’ottima esposizione. Proseguendo si accede alla zona notte, dove troviamo una camera da letto e un bagno finestrato dotato di doccia.
Il vero punto di forza dell’abitazione è l’ampio terrazzo, ideale per trascorrere piacevoli momenti di relax all’aperto.
Possibilità di box auto.
L’immobile, completamente ristrutturato nel 2014, è attualmente locato con regolare contratto, rappresentando un’interessante opportunità anche ad uso investimento.
L’ingresso, tramite porta blindata, conduce alla zona giorno composta da un soggiorno luminoso con angolo cottura; gli ambienti risultano ben distribuiti e particolarmente ariosi grazie all’ottima esposizione. Proseguendo si accede alla zona notte, dove troviamo una camera da letto e un bagno finestrato dotato di doccia.
Il vero punto di forza dell’abitazione è l’ampio terrazzo, ideale per trascorrere piacevoli momenti di relax all’aperto.
Possibilità di box auto.
Dati principali
| Riferimento | 61199679 |
| Data annuncio | 31/03/2026 |
| Contratto | Vendita |
| Tipologia | Appartamento |
| Superficie | 80 m2 |
| Locali | 2 (2 altro), 1 bagno |
| Piano | 1 di 7 totali |
| Numero posti auto | 1 |
Costi
| Prezzo | 127.000 € |
| Prezzo al m2 | 1.588 €/m2 |
| Spese condominiali | € 133,00/mese |
Efficienza energetica
| Anno costruzione | 1970 |
| Riscaldamento | Centralizzato |
| Tipo Alimentazione Riscaldamento | Metano |
| Classe energetica | C |
| Indice di prestazione energetica (EP GL, REN) | 27 kWh/m3 anno |
| Indice di prestazione energetica (EP GL, NREN) | 127 kWh/m3 anno |
Planimetrie
Video
Indirizzo e mappa
Via Alcide de Gasperi, Ivrea
Calcolo mutuo
Prezzo di vendita:
Anticipo
20,00
Mutuo
80,00
Tasso: -+
Rata: 363 al mese
I risultati sono una stima indicativa basata sui dati inseriti e non costituiscono un’offerta finanziaria.
Inserzionista
Chiama
CONTATTA

