Porzione di casa Via Pacchiardo, Val della Torre
€ 179.000Porzione di bifamiliare in vendita
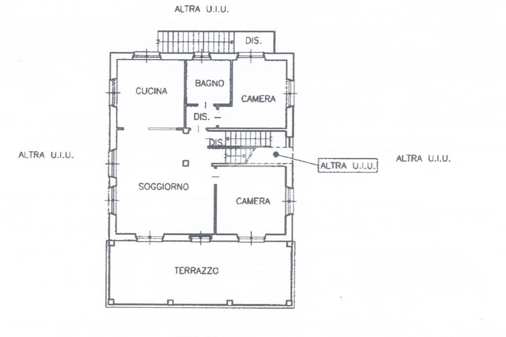
In zona soleggiata porzione di villa bifamiliare di ampia metratura, sviluppata su due livelli abitativi, caratterizzata da ambienti spaziosi e ben organizzati, con la piacevole sensazione di una soluzione indipendente.
L’ingresso introduce a un ampio e luminoso soggiorno doppio, valorizzato dall’accesso a un grande terrazzo con vista aperta e panoramica sull’intera città di Torino.
La zona giorno è completata da una cucina abitabile, mentre sul medesimo piano troviamo una confortevole camera da letto e un bagno finestrato dotato di box doccia. Al piano superiore si sviluppa la zona notte, composta da due camere di generose dimensioni e un secondo servizio. Completa la proprietà un terreno di circa 2.500 mq, arricchito da una comoda area adibita a parcheggio, ideale per chi desidera riservatezza, tranquillità e ampi spazi esterni.
L’ingresso introduce a un ampio e luminoso soggiorno doppio, valorizzato dall’accesso a un grande terrazzo con vista aperta e panoramica sull’intera città di Torino.
La zona giorno è completata da una cucina abitabile, mentre sul medesimo piano troviamo una confortevole camera da letto e un bagno finestrato dotato di box doccia. Al piano superiore si sviluppa la zona notte, composta da due camere di generose dimensioni e un secondo servizio. Completa la proprietà un terreno di circa 2.500 mq, arricchito da una comoda area adibita a parcheggio, ideale per chi desidera riservatezza, tranquillità e ampi spazi esterni.
Dati principali
| Riferimento | 61199795 |
| Data annuncio | 31/03/2026 |
| Contratto | Vendita |
| Tipologia | Porzione di casa |
| Superficie | 160 m2 |
| Locali | più di 5 (3 camere da letto, 3 altro), 2 bagni |
| Piano | 2 totali |
| Numero posti auto | 5 |
Costi
| Prezzo | 179.000 € |
| Prezzo al m2 | 1.119 €/m2 |
Efficienza energetica
| Anno costruzione | 1970 |
| Riscaldamento | Autonomo |
| Tipo Alimentazione Riscaldamento | Gpl |
| Classe energetica | E |
| Indice di prestazione energetica (EP GL, REN) | 156.56 kWh/m3 anno |
| Indice di prestazione energetica (EP GL, NREN) | 11.78 kWh/m3 anno |
Planimetrie
Video
Indirizzo e mappa
Via Pacchiardo, Val della Torre
Calcolo mutuo
Prezzo di vendita:
Anticipo
20,00
Mutuo
80,00
Tasso: -+
Rata: 512 al mese
I risultati sono una stima indicativa basata sui dati inseriti e non costituiscono un’offerta finanziaria.
Inserzionista
Chiama
CONTATTA

