Ufficio via chemnitz 5/3, Prato
€ 2.400 al mese
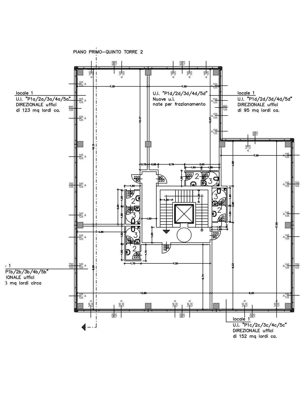
Prato, nella zona del Macrolotto, in una delle due moderne Torri di via Chemnitz, proponiamo in affitto un immobile ad uso ufficio veramente interessante ed arredato in maniera ricercata ed elegante. Siamo al quarto piano della bella torre servita da ascensore e dal pianerottolo condominiale accediamo a questo ufficio ad oggi composto da un'unica grande stanza di quasi 116 metri quadrati, dotato anche di servizio e di antibagno. L'immobile ha una superficie finestrata importante che corre du due lati perpendicolari tra loro, in una unica lunga finestra, apribile in più punti, che permette la visione di un bel panorama che si perde fin sulle montagne. Come detto oggi l'immobile è un grande open space, ma, viste le sue dimensioni e vista la sua ampia superficie finestrata, è facile dividerlo in più ambienti. L'immobile è dotato di climatizzazione e riscaldamento centralizzati ed anche l'utenza idrica è compresa nelle spese condominali. Gli impianti all'avanguardia garantiscono un ottimo efficientamento energetico, tanto che l'immobile è in classe "B"; Immobile pari al nuovo, sia da un punto di vista impiantistico che da un punto di vista di conservazione; dotato di dutto, come ad esempio porta blindata, tende elettriche alle finestre etc, è una soluzione pronta per il tuo business che non richiederà alcuna spesa di ristrutturazione. L'immobile, inoltre, dispone di due interessanti posti auto coperti di proprietà esclusiva in garage seminterrato. I due posti auto vengono affittati con l'immobile ad uso ufficio e sono compresi nel prezzo. Sono disponibili, sempre sullo stesso piano, altre 3 unità immobiliari ad uso ufficio rispettivamente di 152 mq, 95 mq e 124 mq, ognuna con due posti auto. Possibilità di affittare 'intero piano o più porzioni dello stesso. L'unità immobiliare da 152 metri quadrati è posta in affitto al canone mensile di 2400 euro, mentre quella da 124 a 2000 euro e quella da 95 metri a 1800 euro. NOTA BENE: si affitta da società e la locazione sarà soggetta ad imposizione I.V.A., per cui il prezzo indicato è da considerarsi oltre I.V.A. di legge.
Dati principali
| Riferimento | 37751001-FI124 |
| Data annuncio | 31/03/2026 |
| Contratto | Affitto |
| Tipologia | Ufficio |
| Superficie | 116 m2 |
| Locali | 1 (1 altro), 1 bagno |
| Piano | 4 |
| Occupato | Libero |
| Arredamento | Completo |
Costi
| Prezzo | 2.400 € al mese |
Efficienza energetica
| Stato | Ottimo |
| Tipo Alimentazione Riscaldamento | Altro |
| Classe energetica | B |
| Indice di prestazione energetica (IPE) | 88 kWh/m2 anno |
Planimetrie
Indirizzo e mappa
via chemnitz
5/3, Prato
Annuncio senza mappa,
prova a chiedere la posizione all'inserzionista
prova a chiedere la posizione all'inserzionista
Inserzionista

Medicea Immobiliare
Via Santo Spirito, 11/Palazzo dei Marchesi Dè Frescobaldi, Firenze
Mostra Telefono
Mostra Cellulare
Chiama
CONTATTA

