Quadrilocale Via Predosa, Zola Predosa
€ 320.000Quadrilocale in vendita
ZOLA PREDOSA: Ai piedi della collina, in zona verde e tranquilla ma al contempo comoda al centro del Paese, proponiamo appartamento al terzo e ultimo piano con ascensore all'interno di un'elegante palazzina in pietra a vista.
L'immobile esposto su tre lati gode di un'ottima luminosità e offre spazi ben distribuiti e funzionali.
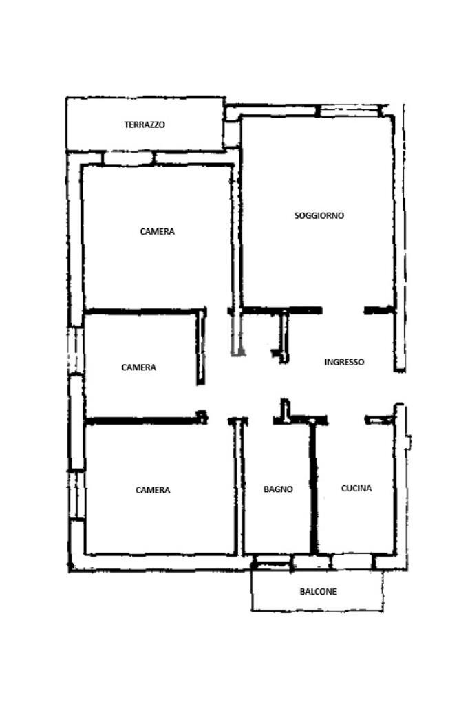
Ingresso arredabile, soggiorno dal quale si accede al terrazzo, cucina con accesso a un secondo terrazzo, disimpegno zona notte, tre camere, bagno e ripostiglio. Completa la proprietà un'autorimessa con annessa cantina.
La posizione strategica, che consente di raggiungere facilmente i principali servizi e le vie di comunicazione che collegano a Bologna, la disposizione funzionale degli ambienti interni, la luminosità garantita dall'ottima esposizione degli affacci, la facilità di parcheggio grazie ai diversi posti auto nel cortile condominiale sono solo alcune delle qualità principali della soluzione.
Per ulteriori informazioni e dettagli siamo disponibili dalle 09:00 alle 13:00 e dalle 15:00 alle 20:00 presso la nostra sede in Via Roma n°5 Zola Predosa. Per fissare una visita all'immobile ci contatti allo 051/750399.
L'immobile esposto su tre lati gode di un'ottima luminosità e offre spazi ben distribuiti e funzionali.
Ingresso arredabile, soggiorno dal quale si accede al terrazzo, cucina con accesso a un secondo terrazzo, disimpegno zona notte, tre camere, bagno e ripostiglio. Completa la proprietà un'autorimessa con annessa cantina.
La posizione strategica, che consente di raggiungere facilmente i principali servizi e le vie di comunicazione che collegano a Bologna, la disposizione funzionale degli ambienti interni, la luminosità garantita dall'ottima esposizione degli affacci, la facilità di parcheggio grazie ai diversi posti auto nel cortile condominiale sono solo alcune delle qualità principali della soluzione.
Per ulteriori informazioni e dettagli siamo disponibili dalle 09:00 alle 13:00 e dalle 15:00 alle 20:00 presso la nostra sede in Via Roma n°5 Zola Predosa. Per fissare una visita all'immobile ci contatti allo 051/750399.
Dati principali
| Riferimento | 61199023 |
| Data annuncio | 28/03/2026 |
| Contratto | Vendita |
| Tipologia | Appartamento |
| Superficie | 113 m2 |
| Locali | 4 (4 altro), 1 bagno |
| Piano | 3 di 3 totali |
Costi
| Prezzo | 320.000 € |
| Prezzo al m2 | 2.832 €/m2 |
| Spese condominiali | € 183,00/mese |
Efficienza energetica
| Anno costruzione | 1970 |
| Riscaldamento | Centralizzato |
| Tipo Alimentazione Riscaldamento | Metano |
| Classe energetica | F |
| Indice di prestazione energetica (EP GL, REN) | 3.83 kWh/m3 anno |
| Indice di prestazione energetica (EP GL, NREN) | 229.7 kWh/m3 anno |
Planimetrie
Video
Indirizzo e mappa
Via Predosa, Zola Predosa
Calcolo mutuo
Prezzo di vendita:
Anticipo
20,00
Mutuo
80,00
Tasso: -+
Rata: 915 al mese
I risultati sono una stima indicativa basata sui dati inseriti e non costituiscono un’offerta finanziaria.
Inserzionista
Agenzia Tecnorete C.v. Srl
Via Roma, 5, Zola Predosa
Mostra Telefono
Chiama
CONTATTA

