Ufficio via roma 21, Montecatini-Terme
€ 330.000
Vendesi appartamento uso ufficio a Montecatini terme-
rif.2026lu020-
In elegante contesto residenziale di pregio nel cuore di Montecatini proponiamo in vendita un immobile di ampia metratura attualmente accatastato ad uso ufficio, situato all'interno di un raffinato complesso con parti comuni come l'ingresso, il cortile per scarico merce mediante cancello esterno. L'immobile di circa 118 mq si distingue per il fascino ed il carattere unico arricchito con affreschi che conferiscono un'atmosfera di grande rappresentanza Gli spazi interni sono ben distribuirti con due servizi e ambienti luminosi ideali come studio professionale .E' presente inoltre un soppalco accatastato come magazzino, utile come spazio accessorio.
Ideale per professionisti studi associati o per chi è alla ricerca di un immobile di charme in posizione centrale
Per ulteriori informazioni rivolgersi in agenzia fornendo il codice di riferimento.
rif.2026lu020-
In elegante contesto residenziale di pregio nel cuore di Montecatini proponiamo in vendita un immobile di ampia metratura attualmente accatastato ad uso ufficio, situato all'interno di un raffinato complesso con parti comuni come l'ingresso, il cortile per scarico merce mediante cancello esterno. L'immobile di circa 118 mq si distingue per il fascino ed il carattere unico arricchito con affreschi che conferiscono un'atmosfera di grande rappresentanza Gli spazi interni sono ben distribuirti con due servizi e ambienti luminosi ideali come studio professionale .E' presente inoltre un soppalco accatastato come magazzino, utile come spazio accessorio.
Ideale per professionisti studi associati o per chi è alla ricerca di un immobile di charme in posizione centrale
Per ulteriori informazioni rivolgersi in agenzia fornendo il codice di riferimento.
Dati principali
| Riferimento | 2026Lu020 |
| Data annuncio | 28/03/2026 |
| Contratto | Vendita |
| Tipologia | Ufficio |
| Superficie | 114 m2 |
| Locali | 5 (5 altro), 2 bagni, cucina non presente |
| Piano | Terra, 2 totali |
| Occupato | Libero |
| Arredamento | Parziale |
Costi
| Prezzo | 330.000 € |
| Prezzo al m2 | 2.895 €/m2 |
Efficienza energetica
| Stato | Parzialmente ristrutturato |
| Riscaldamento | Centralizzato |
| Tipo Impianto Di Riscaldamento | a pavimento |
| Classe energetica | A2 |
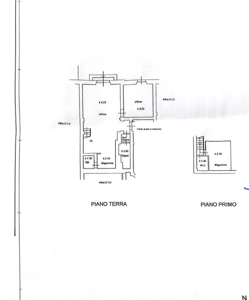
Planimetrie
Video
Indirizzo e mappa
via roma
21, Montecatini-Terme
Annuncio senza mappa,
prova a chiedere la posizione all'inserzionista
prova a chiedere la posizione all'inserzionista
Calcolo mutuo
Prezzo di vendita:
Anticipo
20,00
Mutuo
80,00
Tasso: -+
Rata: 944 al mese
I risultati sono una stima indicativa basata sui dati inseriti e non costituiscono un’offerta finanziaria.
Inserzionista

Megaron Immobiliare Lucca
Via Augusto Passaglia, 108, Lucca
Mostra Telefono
Mostra Cellulare
Chiama
CONTATTA

