Villa a Schiera Via dei pioppi 4, Bolgare
€ 196.000
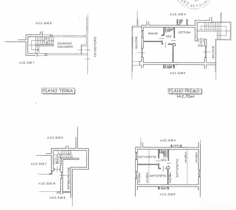
BOLGARE: COSA SAPERE SULL'IMMOBILE: Ingresso indipendente - no spese condominiali - abitabile subito - parziale mobilio compreso nel prezzo - box doppio - 2 bagni DESCRIZIONE E PARTICOLARITÀ': In zona tranquilla e soleggiata, proponiamo villetta a schiera disposta su 2 livelli in vendita nel paese di Bolgare. Al piano primo, la proprietà si presenta con soggiorno e cucina a vista, su questo livello troviamo una prima camera e un bagno di servizio; attraverso una scala interna si accede poi al piano sottotetto dove si dispone di un ulteriore bagno e due camere da letto. Entrambi i lati dell'immobile dispongono di ampi balconi, uno con accesso dalla zona soggiorno e uno dalla prima camera da letto. Attraverso la scala esterna ad utilizzo esclusivo, possiamo accedere al box interrato doppio in lunghezza. La zona residenziale dispone di parcheggi pubblici comodi difronte la proprietà; oltre a diverse zone verdi che impreziosiscono il territorio circostante. NB: Uno dei nostri annunci ha colto la tua attenzione o stai cercando casa in vendita/affitto? Scrivici Nome, Cognome ed esigenze al numero Whatsapp 3517173181 o se preferisci, un email allindirizzo [email protected] Sarà nostra premura metterci in contatto con te quanto prima. Inoltre, avvisiamo la gentile clientela che, se non volete perdere le nostre nuove acquisizioni in vendita e/o in affitto, invitiamo a salvare il numero sopra riportato al fine di visionare tutte le nostre nuove proposte.
Dati principali
| Riferimento | 1081 |
| Data annuncio | 28/03/2026 |
| Contratto | Vendita |
| Tipologia | Villa a Schiera |
| Superficie | 100 m2 |
| Locali | 4 (3 camere da letto, 1 altro), 2 bagni, cucina a vista |
| Piano | Su più livelli, 2 totali |
| Tipo di costruzione | Media |
| Occupato | Libero |
| Arredamento | Parziale |
Costi
| Prezzo | 196.000 € |
| Prezzo al m2 | 1.960 €/m2 |
Efficienza energetica
| Stato | Buono |
| Riscaldamento | Autonomo |
| Classe energetica | Immobile esente da certificazione energetica |
Planimetrie
Indirizzo e mappa
Via dei pioppi
4, Bolgare
Annuncio senza mappa,
prova a chiedere la posizione all'inserzionista
prova a chiedere la posizione all'inserzionista
Calcolo mutuo
Prezzo di vendita:
Anticipo
20,00
Mutuo
80,00
Tasso: -+
Rata: 561 al mese
I risultati sono una stima indicativa basata sui dati inseriti e non costituiscono un’offerta finanziaria.
Inserzionista

BTS Immobiliare
Via Vittorio Veneto, 4, Sarnico
Mostra Cellulare
Chiama
CONTATTA

