Villa strada Vicinale Roccazzo, Rivello
€ 149.000Porzione di villa liberty dei primi '900 con giardino – San
Immagina di svegliarti ogni mattina immerso nel silenzio di un borgo collinare, con l'aria pura della Basilicata che entra dalle finestre e, all'orizzonte, il blu del Golfo di Sapri che si intravede tra le colline. Questo non è un sogno: è la vita che ti aspetta in San Costantino, la frazione più affascinante e residenziale di Rivello, a soli 400 m s. l. m. e a circa 20 minuti di auto dalle spiagge cristalline di Sapri e dalla costa cilentina. APPcasa propone in vendita un'autentica porzione di villa storica dei primi del Novecento, un gioiello architettonico su quattro livelli che conserva il fascino d'epoca con dettagli liberty e proporzioni generose, perfetta per chi cerca una seconda casa di prestigio, un rifugio per le vacanze o addirittura la dimora definitiva lontana dal caos. Caratteristiche che fanno la differenza: Ampia porzione indipendente su quattro piani luminosi Giardino comune esclusivo, ideale per pranzi all'aperto, relax e piccoli momenti di privacy Posizione collinare tranquilla, panoramica e residenziale Borgo immerso nella natura del Parco Nazionale Appennino Lucano – Val d'Agri Lagonegrese, con sentieri come la suggestiva Gola dell'Eco a due passi Vicinanza strategica: mare Tirreno in 20 minuti, Sapri con tutti i servizi, treno e comodità San Costantino non è solo una frazione: è un angolo di paradiso dimenticato dal tempo, dove il ritmo lento della vita di paese si unisce alla bellezza selvaggia della Basilicata e alla vicinanza del mare. Palazzi storici, viste mozzafiato sulla valle e sul golfo, aria salubre e zero stress cittadino. Se cerchi una casa con anima, con storia, con vista e con quel "qualcosa in più" che distingue una semplice abitazione da una vera dimora da innamorarsi, questa villa liberty è la tua occasione. Contattaci oggi per una visita: posti così non durano a lungo sul mercato. APPcasa – Il tuo futuro inizia qui, tra le colline lucane e il mare.
Dati principali
| Riferimento | contrada roccazzo |
| Data annuncio | 17/03/2026 |
| Contratto | Vendita |
| Tipologia | Villa |
| Superficie | 297 m2 |
| Locali | più di 5 (15 camere da letto), 3 bagni, cucina abitabile |
| Piano | 4 totali |
| Tipo di costruzione | Signorile |
| Numero di terrazzi | 1 |
| Box auto | Assente |
| Arredamento | Assente |
Caratteristiche
Costi
| Prezzo | 149.000 € |
| Prezzo al m2 | 502 €/m2 |
Efficienza energetica
| Anno costruzione | 1910 |
| Stato | Buono |
| Riscaldamento | Autonomo |
| Classe energetica | G |
| Indice di prestazione energetica (IPE) | 175 kWh/m2 anno |
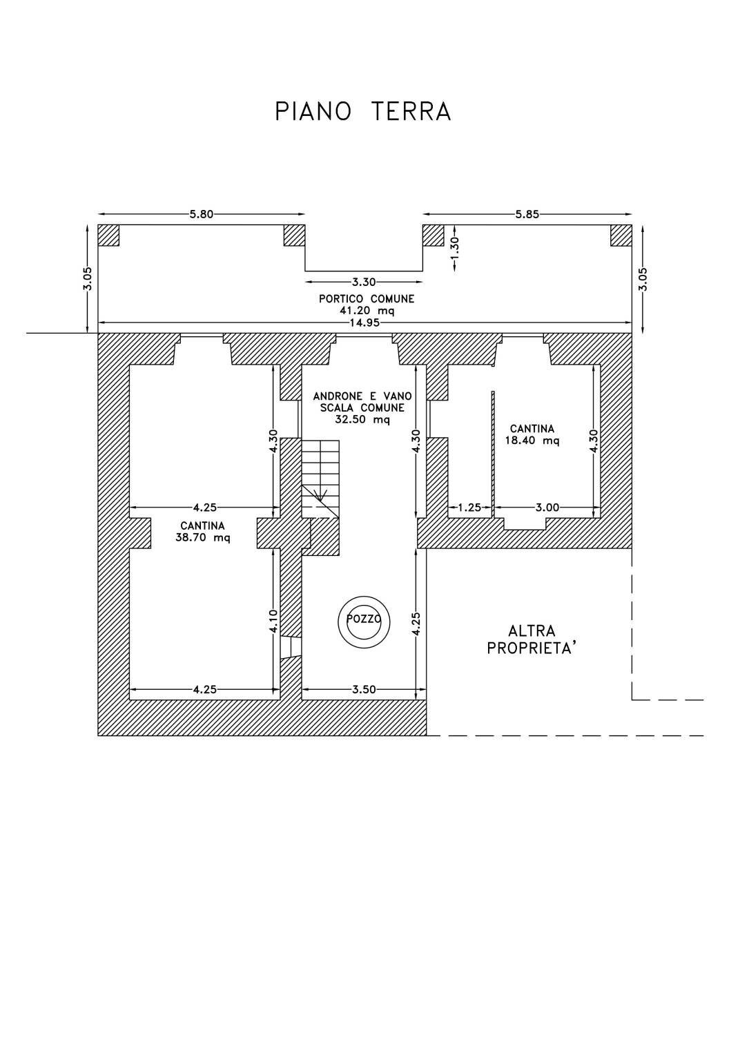
Planimetrie
Indirizzo e mappa
strada Vicinale Roccazzo, Rivello
Annuncio senza mappa,
prova a chiedere la posizione all'inserzionista
prova a chiedere la posizione all'inserzionista
Calcolo mutuo
Prezzo di vendita:
Anticipo
20,00
Mutuo
80,00
Tasso: -+
Rata: 426 al mese
I risultati sono una stima indicativa basata sui dati inseriti e non costituiscono un’offerta finanziaria.
Inserzionista

App Casa
Viale Eritrea 30 B, Roma
Mostra Cellulare
Chiama
CONTATTA

