Appartamento Via valente Faustini, Rottofreno
€ 295.000
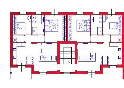
SAN NICOLO': In zona residenziale tranquilla e ben servita, proponiamo NUOVO INTERVENTO SU CARTA IN QUADRIFAMILIARE con possibilità prenotazioni. Gli immobili vantano un'architettura contemporanea e finiture di alta qualità a scelta del acquirente. L'anno di costruzione previsto è il 2026, garantendo un'abitazione dotata di tutti gli ultimi standard tecnologici e di sicurezza. Al piano primo DISPONIAMO DI DUE APPARTAMENTI i quali hanno una superficie totale di c.a.120 metri quadrati, di cui 110 calpestabili, ideali per accogliere comodamente una famiglia. L'ingresso si apre su un ampio e luminoso soggiorno, che affaccia su un balcone coperto, perfetto per godere di momenti di relax all'aperto. La cucina, divisibile dal soggiorno, è spaziosa . La zona notte è composta da doppi servizi e due/tre camere da letto, tutte ben illuminate e dotate di ampie finestre. Conclude la proprietà un box auto. L'impianto di riscaldamento è a pavimento, garantendo un comfort ottimale in ogni stagione. L'immobile si trova in una zona residenziale che garantisce privacy e tranquillità. Inoltre, non ci sono costi di condominio da sostenere. In sintesi, questo intervento è una perfetta soluzione per chi cerca una casa moderna, confortevole e di prestigio in una zona residenziale ben servita. CONSEGNA SETTEMBRE 2027. Classe Energetica A 4 Il comune di Rottofreno con una popolazione di c.a. 12.250 abitanti, presenta servizi per ogni età ed esigenza, dall'asilo nido alle scuole medie, diversi istituti di credito, farmacie, bar, supermercati e tante attività di "Bottega", negozi di abbigliamento, cartolerie, estetiste, parrucchiere, ristoranti e tantissimi altri servizi atti a far diventare questo comune e le frazioni stesse di cui la più conosciuta SAN NICOLO', la prima scelta di tanti nella ricerca della propria casa. Per qualsiasi informazione e per visite potete contattarci ai riferimenti sotto indicati: "CASA MIA "Agenzia Immobiliare Piacenza Via Emilia Est, 76 SAN NICOLO' di Rottofreno (PC) telefono 0523.79.73.51 / e-mail [email protected] Orari apertura Ufficio: TUTTE LE MATTINE dalle ore 9 alle ore 13 LUNEDI' MERCOLEDI VENERDI' apertura pomeridiana dalle ore 15 alle ore 19 SABATO e DOMENICA chiuso.
Dati principali
| Riferimento | SNI263 |
| Data annuncio | 15/05/2025 |
| Contratto | Vendita |
| Tipologia | Appartamento |
| Superficie | 120 m2 |
| Locali | 4 (3 camere da letto, 1 altro), 2 bagni, cucina a vista |
| Piano | 1 di 1 totali |
| Tipo di costruzione | Media |
| Occupato | Libero |
| Box auto | Singolo |
| Arredamento | Assente |
Caratteristiche
Costi
| Prezzo | 295.000 € |
| Prezzo al m2 | 2.458 €/m2 |
Efficienza energetica
| Riscaldamento | Autonomo |
| Tipo Impianto Di Riscaldamento | a pavimento |
| Tipo Alimentazione Riscaldamento | Fotovoltaico |
| Classe energetica | A4 |
Planimetrie
Video
Indirizzo e mappa
Via valente Faustini, Rottofreno
Annuncio senza mappa,
prova a chiedere la posizione all'inserzionista
prova a chiedere la posizione all'inserzionista
Calcolo mutuo
Prezzo di vendita:
Anticipo
20,00
Mutuo
80,00
Tasso: -+
Rata: 844 al mese
I risultati sono una stima indicativa basata sui dati inseriti e non costituiscono un’offerta finanziaria.
Inserzionista

Casa mia agenzia immobiliare Piacenza di Romanazzi Carlotta
via emilia est 76, Piacenza
Mostra Telefono
Mostra Cellulare
Chiama
CONTATTA

