Trilocale Via scarlatti, Lugo
€ 125.000Trilocale in vendita
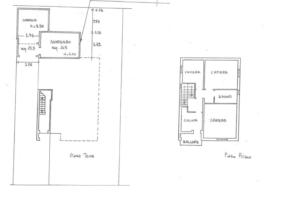
LUGO: appartamento con ingresso indipendente e corte di proprieta esclusiva. La soluzione abitativa è distribuita al primo ed ultimo piano, garantendo un ambiente accogliente e ben organizzato. L'appartamento è composto da tre locali, oltre alla cucina, il bagno e un balcone. Completa la proprietà un'ampia cantina al piano terra, un garage di quasi 20 mq e un cortile privato. La posizione centrale consente di accedere facilmente ai principali servizi e alle comodità che Lugo offre, rendendo questa proposta interessante per chi desidera vivere in una zona ben servita. ATTUALMENTE LOCATO (si libera nel 2029). OTTIMO INVESTIMENTO
Dati principali
| Riferimento | 61197660 |
| Data annuncio | 26/03/2026 |
| Contratto | Vendita |
| Tipologia | Appartamento |
| Superficie | 110 m2 |
| Locali | 3 (3 altro), 1 bagno |
| Piano | 1 di 2 totali |
| Numero posti auto | 1 |
Costi
| Prezzo | 125.000 € |
| Prezzo al m2 | 1.136 €/m2 |
Efficienza energetica
| Anno costruzione | 1966 |
| Riscaldamento | Autonomo |
| Tipo Alimentazione Riscaldamento | Metano |
| Classe energetica | G |
| Indice di prestazione energetica (IPE) | - |
Planimetrie
Indirizzo e mappa
Via scarlatti, Lugo
Calcolo mutuo
Prezzo di vendita:
Anticipo
20,00
Mutuo
80,00
Tasso: -+
Rata: 357 al mese
I risultati sono una stima indicativa basata sui dati inseriti e non costituiscono un’offerta finanziaria.
Inserzionista
Agenzia Tecnocasa Studio Lugo Srl
Via Foro Boario, 27, Lugo
Mostra Telefono
Chiama
CONTATTA

