Casa indipendente Olbia
€ 130.000
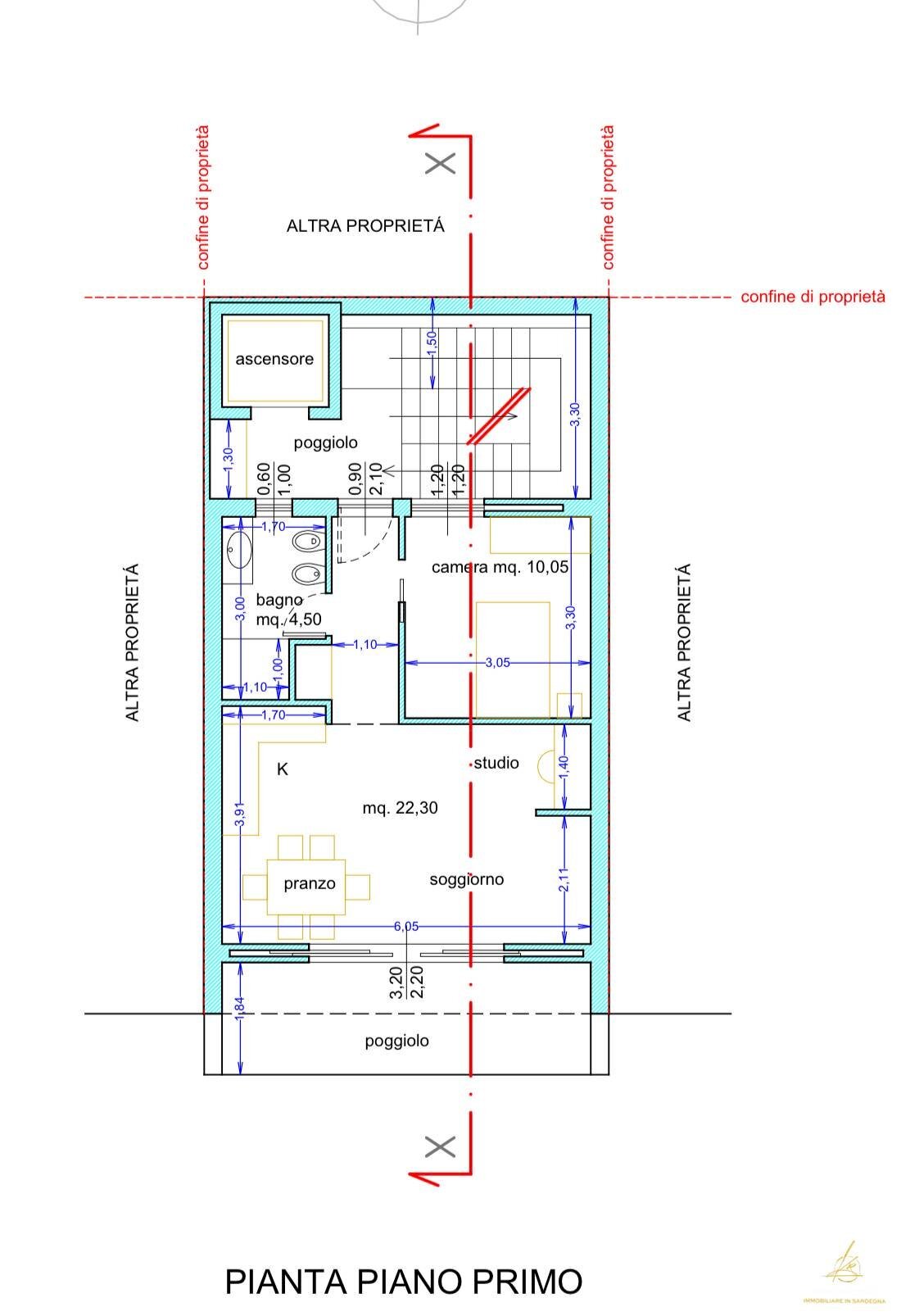
Olbia. Immobile da ristrutturare e ampliare con progetto approvato categoria residenziale. Olbia. Immobile precedentemente utilizzato come laboratorio di pasticceria con variazione catastale da esercizio commerciale a residenziale - Progetto realizzato per immobile residenziale e approvato in Consiglio Comunale come previsto dalla normativa, ora in attesa di approvazione dirigenziale da parte dell' Ufficio Tecnico Edilizia Privata. Al piano terra piano Pilotis con tre posto auto coperti e scala accesso ai piani superiori. Al Primo e Secondo piano sono realizzabili due bilocali, al Terzo piano un monolocale con terrazza piana sovrastante.
Dati principali
| Riferimento | 15 |
| Data annuncio | 26/03/2026 |
| Contratto | Vendita |
| Tipologia | Casa indipendente |
| Superficie | 125 m2 |
| Locali | 5 (3 camere da letto, 2 altro), 3 bagni |
| Occupato | Libero |
| Numero posti auto | 3 |
Costi
| Prezzo | 130.000 € |
| Prezzo al m2 | 1.040 €/m2 |
Efficienza energetica
| Stato | Da ristrutturare |
| Tipo Alimentazione Riscaldamento | Altro |
| Classe energetica | Immobile esente da certificazione energetica |
Indirizzo e mappa
Olbia
Annuncio senza mappa,
prova a chiedere la posizione all'inserzionista
prova a chiedere la posizione all'inserzionista
Calcolo mutuo
Prezzo di vendita:
Anticipo
20,00
Mutuo
80,00
Tasso: -+
Rata: 372 al mese
I risultati sono una stima indicativa basata sui dati inseriti e non costituiscono un’offerta finanziaria.
Inserzionista
Chiama
CONTATTA


