Porzione di casa Via Ermete Zacconi, Milano (zona Bovisasca)
€ 1.400 al mesePorzione di bifamiliare in affitto
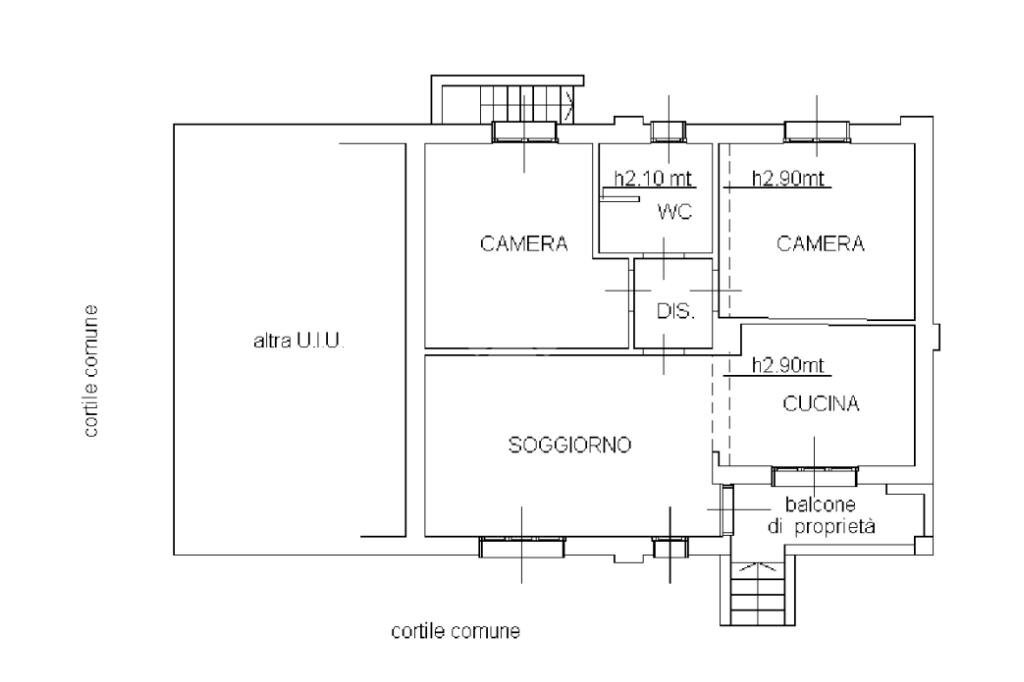
Soluzione semi-indipendente, a circa 20 minuti a piedi dalla stazione e dalla M3 di 'Affori FN' e ben fornito da tutti i servizi e dalle linee di superficie, proponiamo appartamento di tre locali sito al piano rialzato in contesto immerso nel verde e lontano dal caos cittadino.
L'immobile è composto da ingresso in ampio soggiorno con cucina a vista; nella zona notte è presente un disimpegno, bagno finestrato con doccia e due camere da letto.
L'abitazione risulta luminosa e silenziosa grazie alla doppia esposizione a est-ovest con affaccio sul cortile interno.
Frutto di una recente ristrutturazione, è disponibile da subito e verrà consegnato completamente arredato.
Contratto di locazione transitorio con durata di un anno, due mensilità di deposito cauzionale, costi di luce, gas e acqua a parte.
L'immobile è composto da ingresso in ampio soggiorno con cucina a vista; nella zona notte è presente un disimpegno, bagno finestrato con doccia e due camere da letto.
L'abitazione risulta luminosa e silenziosa grazie alla doppia esposizione a est-ovest con affaccio sul cortile interno.
Frutto di una recente ristrutturazione, è disponibile da subito e verrà consegnato completamente arredato.
Contratto di locazione transitorio con durata di un anno, due mensilità di deposito cauzionale, costi di luce, gas e acqua a parte.
Dati principali
| Riferimento | 61195942 |
| Data annuncio | 25/03/2026 |
| Contratto | Affitto |
| Tipologia | Porzione di casa |
| Superficie | 100 m2 |
| Locali | 3 (3 altro), 1 bagno |
| Piano | 1 totali |
Costi
| Prezzo | 1.400 € al mese |
Efficienza energetica
| Anno costruzione | 1965 |
| Riscaldamento | Autonomo |
| Tipo Alimentazione Riscaldamento | Metano |
| Classe energetica | E |
| Indice di prestazione energetica (IPE) | - |
Planimetrie
Video
Indirizzo e mappa
Via Ermete Zacconi, Milano - quartiere Bovisasca
Inserzionista
Chiama
CONTATTA

