Porzione di casa Via Pisanello 59, Ameglia
€ 85.000Semindipendente - Porzione di casa a Ameglia
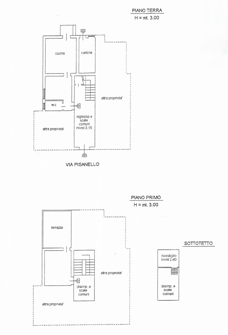
In zona comoda ai servizi, porzione di immobile disposta su due livelli per un totale di 62 mq, composta da: corte esterna, ingresso nella zona cottura, piccolo soggiorno e bagno finestrato al piano terreno. Collegata mediante scala comune, al piano superiore, camera da letto con ampia terrazza oltre a locale sottotetto. Completa la proprietà cantina al piano terreno. Ideale ad uso investimento.
Dati principali
| Riferimento | 1328 |
| Data annuncio | 24/03/2026 |
| Contratto | Vendita |
| Tipologia | Porzione di casa |
| Superficie | 62 m2 |
| Locali | 3 (1 camera da letto, 2 altro), 1 bagno |
| Piano | 1 totali |
| Numero di terrazzi | 1 |
Caratteristiche
Costi
| Prezzo | 85.000 € |
| Prezzo al m2 | 1.371 €/m2 |
Efficienza energetica
| Classe energetica | Immobile esente da certificazione energetica |
Planimetrie
Indirizzo e mappa
Via Pisanello 59, Ameglia
Calcolo mutuo
Prezzo di vendita:
Anticipo
20,00
Mutuo
80,00
Tasso: -+
Rata: 243 al mese
I risultati sono una stima indicativa basata sui dati inseriti e non costituiscono un’offerta finanziaria.
Inserzionista

Agenzia Immobiliare Migliorini
Via XXV Aprile 21, Ameglia
Mostra Telefono
Mostra Cellulare
Chiama
CONTATTA

