Villa via Appio Claudio, Mompeo
€ 195.000A Mompeo vendesi casa indipendente divisa in due unità
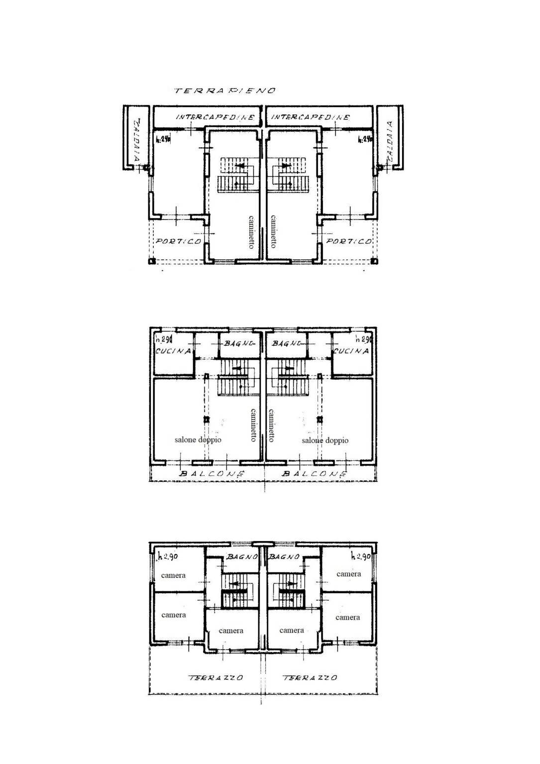
Mompeo villino bifamiliare moderno e funzionale, vialetto di accesso privato da pubblica via, a ridosso del paese in posizione appartata e dominante, ampio fabbricato completamente autonomo su 3 piani, al proprio interno suddiviso in due abitazioni indipendenti e simmetriche, ognuna provvista di ingresso indipendente, di un ampio giardino esclusivo, una zona destinata a parcheggio ed un ampio terreno con uliveto. Il fabbricato può essere concepito come ampia villa padronale oppure come bifamiliare nella quale ogni porzione è costituita da 3 livelli, doppio ingresso indipendente sia al pian terreno che al piano primo, al piano terra ogni unità dispone di una ampia taverna con caminetto e cucinino, cantina e garage, al piano primo un ampio salone doppio con caminetto e balcone, una cucina abitabile e un bagno, infine al piano secondo si trovano 3 grandi camere matrimoniali, un bagno e un grande terrazzo panoramico. La proprietà si distingue per la posizione dominante, per gli ampi spazi sia interni che esterni, per l'ottimo stato di manutenzione con facciate dove spicca il rivestimento a cortina e gli interni concepiti con ottimo gusto e materiali. La posizione è strategica anche rispetto alle principali vie di comunicazione della Sabina, dato che con pochi minuti di auto si raggiunge lo snodo ferroviario di Fara Sabina e il casello autostradale di Fiano. Un'ottima soluzione abitativa residenziale per la famiglia che desidera privilegiare la qualità della vita a contatto con la tranquillità del borgo sabino, senza rinunciare a collegarsi con le vicine aree commerciali e i capoluoghi , Roma e Rieti. Per la sua specifica conformazione la villa risulta particolarmente adatta ad ospitare due nuclei famigliari, gli ampi spazi esterni sono adatti sia alla attuale coltivazione dell'ulivo ma anche ad ospitare piscine o altri accessori. Disponibile da subito. Per visite contattare direttamente la nostra sede.
Dati principali
| Riferimento | 1006 |
| Data annuncio | 23/03/2026 |
| Contratto | Vendita |
| Tipologia | Villa |
| Superficie | 464 m2 |
| Locali | più di 5 (6 camere da letto, 4 altro), 4 bagni, cucina abitabile |
| Piano | 3 totali |
| Tipo di costruzione | Signorile |
| Numero di terrazzi | 1 |
| Numero di balconi | 1 |
| Box auto | Doppio |
| Numero posti auto | 2 |
| Arredamento | Parziale |
Caratteristiche
Costi
| Prezzo | 195.000 € |
| Prezzo al m2 | 420 €/m2 |
Efficienza energetica
| Anno costruzione | 1970 |
| Stato | Buono |
| Riscaldamento | Autonomo |
| Classe energetica | G |
| Indice di prestazione energetica (IPE) | 175 kWh/m2 anno |
Planimetrie
Indirizzo e mappa
via Appio Claudio, Mompeo
Calcolo mutuo
Prezzo di vendita:
Anticipo
20,00
Mutuo
80,00
Tasso: -+
Rata: 558 al mese
I risultati sono una stima indicativa basata sui dati inseriti e non costituiscono un’offerta finanziaria.
Inserzionista

AZ Servizi Immobiliari
Via delle Orchidee 14, Rieti
Mostra Telefono
Chiama
CONTATTA

