Pasticceria piazza 2 Giugno, 11/1, Vinovo
€ 135.000Cedesi attività di bar/pasticceria con alto fatturato
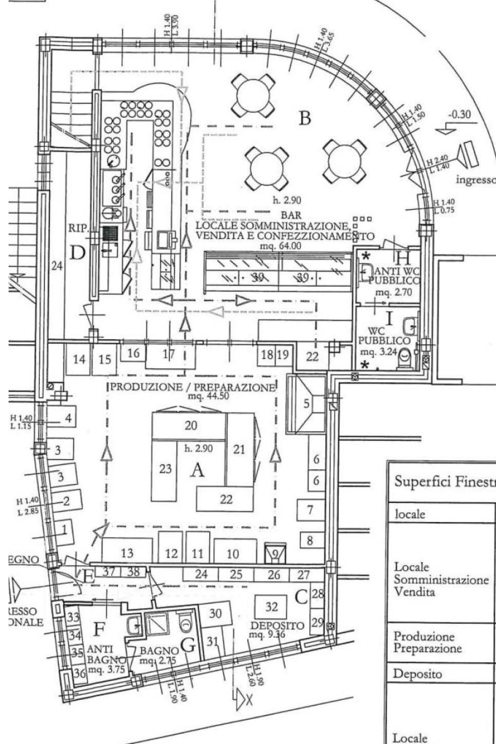
Si propone in vendita avviata attività di bar/pasticceria situata nei pressi del centro di Vinovo, in posizione strategica con ottimo passaggio pedonale e veicolare. L’attività, operativa da tre anni, vanta un ottimo fatturato dimostrabile, una clientela fidelizzata e nel tempo ha ricevuto anche riconoscimenti e premi di settore, a testimonianza della qualità dei prodotti e del servizio offerto. Il locale si presenta in ottime condizioni, completamente arredato e attrezzato, pronto per il subentro immediato senza necessità di interventi. È dotato di impianto di climatizzazione caldo/freddo, che garantisce comfort in ogni stagione sia per la clientela che per il personale. Sul retro è presente un laboratorio completo di attrezzature, ideale per la produzione interna di pasticceria e prodotti freschi, rappresentando un importante valore aggiunto per l’attività. Il bar offre servizio di caffetteria, colazioni e somministrazione, con interessanti margini di sviluppo commerciale. Completano la proprietà due bagni distinti, uno riservato alla clientela e uno dedicato al personale, nel rispetto delle normative vigenti. Si tratta di una soluzione ideale per chi desidera investire in un’attività già ben avviata, con solide basi e ottime prospettive di crescita. Per avere ulteriori informazioni o per fissare un appuntamento potete chiamarci ai numeri oppure o passare a trovarci in Piazza Mazzini n. 2. Inoltre, potete anche contattarci al nostro indirizzo email Qualora foste interessati ad una valutazione GRATUITA e SENZA IMPEGNO del Vostro immobile siamo a completa disposizione! Potete trovare questa e molte altre proposte sul nostro sito internet.
Dati principali
| Riferimento | ID3005745 |
| Data annuncio | 21/03/2026 |
| Contratto | Vendita |
| Tipologia | Pasticceria |
| Superficie | 198 m2 |
| Piano | 1 totali |
Costi
| Prezzo | 135.000 € |
| Prezzo al m2 | 682 €/m2 |
Efficienza energetica
| Riscaldamento | Autonomo |
| Classe energetica | Immobile esente da certificazione energetica |
Planimetrie
Indirizzo e mappa
piazza 2 Giugno, 11/1, Vinovo
Calcolo mutuo
Prezzo di vendita:
Anticipo
20,00
Mutuo
80,00
Tasso: -+
Rata: 386 al mese
I risultati sono una stima indicativa basata sui dati inseriti e non costituiscono un’offerta finanziaria.
Inserzionista

Immobiliare Mazzini
Piazza Mazzini 2, Carmagnola
Mostra Telefono
Chiama
CONTATTA

