Villa a Schiera Seravezza
€ 550.000
| COD: 3360 | SERAVEZZA | QUERCETA |
VILLETTA A SCHIERA RISTRUTTURATA
2 AL PREZZO DI UNA, VILLETTA DIVISA IN DUE UNITA' ABITATIVE!!
Non fatevela scappare!!
Posizionata al Confine di Forte Dei Marmi, è la soluzione perfetta per chi cerca una villetta al mare ad un prezzo d'occasione!!
Le unità sono due, la taverna che è stata convertita ad appartamento completo, e la villetta principale entrambe indipendenti con possibilità di riunirle!!
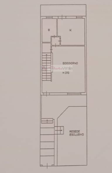
La villetta è così composta:
Piano Terra
Cucina Abitabile: Con tavolo comodo disposto al centro per pranzi e cene, ed un'accesso ad un balcone di servizio con lavanderia
Soggiorno: Zona living ampia posta a Sud luminosa;
Bagno: Posto comodamente al piano terra completo di doccia;
Veranda: Aperta e utilizzabile come zona pranzo estiva.
Ripostiglio: dove sono ancora presenti le scale del vecchio collegamento dove poter riunire la taverna;
Primo Piano
Due camere matrimoniali: Entrambe complete di armadiatura molto spaziose di cui una con balcone;
Una Camera singola: Ad oggi stanza armadi;
Bagno: Completo di tutti i servizi con doccia e finestra sull'esterno che lo rende molto luminoso;
L'Appartamento è così composto:
Ingresso indipendente
Soggiorno con Cucina a vista
Una camera da letto
Bagno completo
Ripostiglio: con possibilità di ripristinare l'accesso all'altra unità
Esterno
Completano la proprietà il Giardino sul fronte della casa ed i posti auto di proprietà
Punti di forza
Spazio
2 Unità Abitative
Alle porte di Forte dei marmi!!
Completamente ristrutturata
Prezzo super competitivo
Che Aspettate Contattateci!!
Michele +39 351*5429*448
[email protected]
VILLETTA A SCHIERA RISTRUTTURATA
2 AL PREZZO DI UNA, VILLETTA DIVISA IN DUE UNITA' ABITATIVE!!
Non fatevela scappare!!
Posizionata al Confine di Forte Dei Marmi, è la soluzione perfetta per chi cerca una villetta al mare ad un prezzo d'occasione!!
Le unità sono due, la taverna che è stata convertita ad appartamento completo, e la villetta principale entrambe indipendenti con possibilità di riunirle!!
La villetta è così composta:
Piano Terra
Cucina Abitabile: Con tavolo comodo disposto al centro per pranzi e cene, ed un'accesso ad un balcone di servizio con lavanderia
Soggiorno: Zona living ampia posta a Sud luminosa;
Bagno: Posto comodamente al piano terra completo di doccia;
Veranda: Aperta e utilizzabile come zona pranzo estiva.
Ripostiglio: dove sono ancora presenti le scale del vecchio collegamento dove poter riunire la taverna;
Primo Piano
Due camere matrimoniali: Entrambe complete di armadiatura molto spaziose di cui una con balcone;
Una Camera singola: Ad oggi stanza armadi;
Bagno: Completo di tutti i servizi con doccia e finestra sull'esterno che lo rende molto luminoso;
L'Appartamento è così composto:
Ingresso indipendente
Soggiorno con Cucina a vista
Una camera da letto
Bagno completo
Ripostiglio: con possibilità di ripristinare l'accesso all'altra unità
Esterno
Completano la proprietà il Giardino sul fronte della casa ed i posti auto di proprietà
Punti di forza
Spazio
2 Unità Abitative
Alle porte di Forte dei marmi!!
Completamente ristrutturata
Prezzo super competitivo
Che Aspettate Contattateci!!
Michele +39 351*5429*448
[email protected]
Dati principali
| Riferimento | 3360 |
| Data annuncio | 25/03/2026 |
| Contratto | Vendita |
| Tipologia | Villa a Schiera |
| Superficie | 220 m2 |
| Locali | più di 5 (4 camere da letto, 7 altro), 3 bagni |
| Occupato | Libero |
Costi
| Prezzo | 550.000 € |
| Prezzo al m2 | 2.500 €/m2 |
Efficienza energetica
| Tipo Alimentazione Riscaldamento | Altro |
| Classe energetica | C |
| Indice di prestazione energetica (IPE) | 120 kWh/m2 anno |
Planimetrie
Indirizzo e mappa
Seravezza
Annuncio senza mappa,
prova a chiedere la posizione all'inserzionista
prova a chiedere la posizione all'inserzionista
Calcolo mutuo
Prezzo di vendita:
Anticipo
20,00
Mutuo
80,00
Tasso: -+
Rata: 1.573 al mese
I risultati sono una stima indicativa basata sui dati inseriti e non costituiscono un’offerta finanziaria.
Inserzionista

Agenzia ForteVersilia Immobiliare
via Trento 124, Forte dei Marmi
Mostra Telefono
Mostra Cellulare
Chiama
CONTATTA

